坐标深圳,这是一套使用面积为54平的两居室。房子属于二手房,但是却要住一家四口,这可难倒了业主,毕竟房间只有两个卧室,普通人再怎么改也无非多加一张床,只是这样一来,就极大牺牲了空间的灵活性和隐私性。另外户型的种种弊端也是一个难题,比如收纳,刚开始可能不觉得,但是一旦日积月累,东西多了起来,一定大大折损居住的生活的品质!但是,你相信么,就是这样的一套房,却获得了新生,不仅两居改三居,还能住下一家四口人,这是这么神仙操作?难怪一般人看见了都只能感慨太厉害了,不信我们看看效果。
这是原来的居住前的实景,可以看到整体装修很普通,但不是重点,问题在于这样的房子已经不能满足一家四口的居住需求,此是其一,其二厨房的整体利用率不高,导致收纳无法得到满足,空间显得稍微有些凌乱。客厅也是如此,面积虽然大,但利用率也不高。
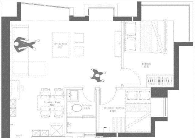
这里我们通过户型图来详解,业主属于典型的八零后,又从事着金融工作,因此对看电视的需求不大,反倒是因为经常需要办公而缺少一个可以作为书房的地方。
然后来看改造的平面布局图,因为原来结构中没有独立的玄关,开门即厨房,且厨房门距餐厅远,这样一来无形中就拉长了室内的活动动线,还不好做鞋柜,因此厨房就换了个开口方向,这样就多出了玄关;至于客厅,一分为二,左边是办公区,满足工作需求,影音娱乐则由投影仪来负责,右边抬高地面做了榻榻米,这样就多了一间多功能房,效果挺不错的,这样一来之前的问题就迎刃而解了。
我们来对比实景,这个是改造前的入户效果,开门即厨房,且业主为湖南人,经常爆炒各式菜肴,开放式的结构导致油烟很大。
但是因为厨房换了一个门洞方向,这样一来就隔出了玄关区域,然后定制一面玄关柜,效果非常不错,比如其且结构充满了人性化设计,中空和底空的部分都可以收纳东西和码放鞋子等等,很方便。做墙还挂了全身镜,方便进出门时整理形象。
反过来看另一面效果,是不是整个空间都简洁了大方了很多?
接着看厨房,这个是改造前的效果,稍微有些凌乱,且空间利用率不高,这里附带着个生活阳台。
但是因为换了门洞方向以及空间重新优化后,整个面貌就焕然一新了,比如上下都打满了橱柜,尽可能的满足收纳需求,色调尽量以浅色为主,这样有利于放大空间。

再来看看原始结构的客厅,面积还是挺大的,但利用率不高。

经过一番改造,设计师将这里隔出了两个空间,其一是左边的办公区,其二是右边的多功能榻榻米区,整体基调还是很大方的,至于飘窗则铺上软垫,改为了一个可以随时观景休憩的地方,很惬意。
推荐阅读
- 一机|你好呀,品质生活 篇三:单一功能VS一机多用,让家居环境干净整洁的秘诀也在这里
- 壁龛|头一次见卫生间这样包立管,太聪明了!省钱又实用
- |“坏”二手房难以防范,这5种房子谁买谁后悔,赶紧远离吧!
- 农村别墅|5款带院子的农村别墅,30年后,我想住在这样的房子里养老
- 柚木|定制柚木书柜,这5点需要注意
- 天津阳光力天|十年以上的老房子如何装修?看这套89㎡简美风,是真心的漂亮啊
- 原棉|别再被骗了!这一品牌工厂早已停工,只靠商标一年盈利13亿
- 客厅|颜值高、实用性强的这些家居小件,让你的生活充满仪式感!
- 南通|这类人群,其实并不适合长期贷款买房,不知道有没有你?
- 房价|买房不选13楼、14楼、18楼、24楼?内行:这3个楼层才不建议买
