▲独立的衣帽间设置了开放的衣柜、梳妆台,中间位置摆一张雀蓝色的布艺凳,简雅端庄的衣柜里整齐布置衣物,带来一个实用优雅的衣帽间。休闲厅

▲休闲厅布置休闲沙发与沙发椅,布置一张木质简洁的茶几,布置电视柜,为主人提供了一个休闲舒适的小厅。书房
▲书房布置实木书桌与斗柜,为主人提供了一个稳重端庄工作阅读空间。卧室②
▲卧室②也是以统一的蓝绿色护墙板背景墙,布置卡其色的皮艺床,米白色的床铺加入蓝色枕头与床尾凳,床头一侧床头柜+台灯的布置,营造出一种安静优雅的空间感。儿童房
▲儿童房整体蓝红配色的超级英雄主题设计,让空间充满童趣与梦幻气息。女孩房
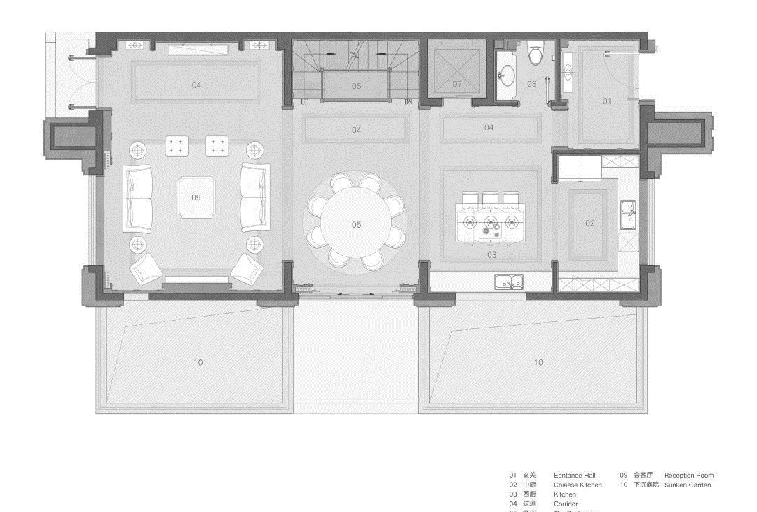
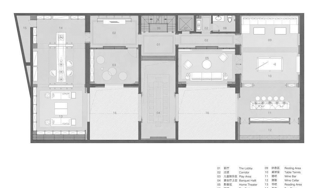
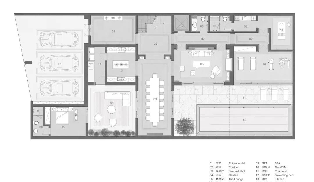
▲女孩房的墙面以绿色边框造型+格纹墙布组合,布置上卡其色的皮艺床、粉色调的床单、床头柜与小玩偶,也让空间显得更加优雅舒适而浪漫。平面布置图




设计:柏年印象,摄影:彦铭 ,点评:设计馆
推荐阅读
- 小户型|他家仅41㎡,装修效果却清爽敞亮很实用,家有小户型的可以参考下
- 书房|小户型64㎡,他坚持装一半玄关,在储藏室里做书房!太聪明了!
- 佛山|均价1.1万/㎡起,西安这些“倒挂盘”有房可售!
- 玄关|她买下42㎡单身公寓,一家三口住,客厅不放沙发,阳台当榻榻米
- 复式|小夫妻住140㎡顶复式,一楼生活,二楼休闲,生活不要太美
- 瓶瓶罐罐|去表姐家借住,一进卫生间就呆了,这样布置真高级,拍下来照着学
- 2.14-2.20扬州商品房成交313套,成交建筑面积37662㎡|市场成交 | 角度看
- 南北村|主打建面78-168㎡二至五房!佛山保利聚龙南北村回迁六大户型曝光
- 成交金额|上周贵阳成交均价10091元/㎡,远洋红星·观山天铂0.42亿元摘冠
- 老房子|夫妻的62㎡横厅小三房,格局完美简约清新,诗一样的生活让人羡慕
