坐标厦门,这是一套42平米的单身公寓改造成三口之家装修案例,面积虽然很小,但是在厦门寸土寸金的地方,拥有一套属于自己的房子已经很难得了。小户型在装修上每一平米都要锱铢必较不能浪费,原始格局已经无法满足三口之家生活,屋主提出要有小两房、客厅、餐厅、厨房的功能,外加一个男主学习办公区和一个孩子娱乐区。小编觉得已经是极限了,但装完的效果不仅满足屋主要求,连收纳空间都很大,简直太棒了!堪称小户型装修模板,我们一起来看看吧。


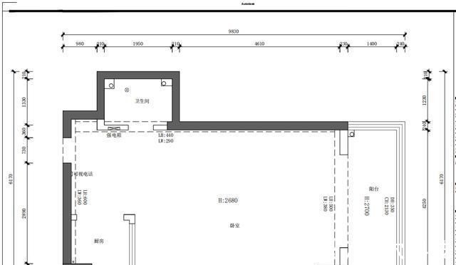
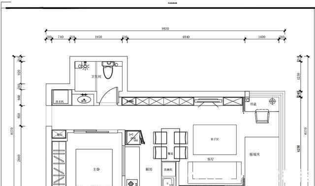
这是这套房子的平面设计图,整体结构并没有太大改变,只是做了一些改动:1.卫生间洗手盆拿到外面,不仅和洗衣区形成互动,同时也让卫生间有了单独淋浴房,设计成干湿分离。2.拆掉厨房墙体,改成主卧,在外面做成开放式厨餐厅设计,满足屋主小两房要求。3.把阳台和客厅连在一起,让公共空间更加宽敞明亮,也是孩子的小卧室。

玄关入户即是玄关,设计利用洗衣机和烘干机叠放方式,解决小户型的晾晒问题,旁边设计成洗手盆,洗漱洗衣一体,实用性大大提升同时,同时也让卫生间有了单独淋浴房,方便又实用。

玄关长度90公分的洗手盆,镜箱+台盆一体洗手柜组合,大大提升收纳空间,地面用北欧小花砖点缀,丰富了视觉层次,也把玄关和客厅区域划分开。

玄关玄关另一边是一个鞋柜,上下储物柜,中间留空放置包包、钥匙等小物件,底部悬空放鞋子。入户门两边固定一根晾衣杆,功能性也很强。【 玄关|她买下42㎡单身公寓,一家三口住,客厅不放沙发,阳台当榻榻米】

客餐厅

客餐厅从客厅看向玄关,开放式厨餐厅设计,整面墙的收纳空间,用白色家具和原木色搭配,最大化让人感受到舒适自然,宽敞明亮。

厨房

餐厅厨房和用餐区连接在一起,开放式设计,方便女主人做饭同时照看孩子学习和玩耍。一字型橱柜让空间利用率最大化,靠墙放置冰箱,灶台、和操作台,用餐区旁边是洗菜盆,墙上安装即热式热水器,中间空地上摆放厨房置物架,节约空间。

榻榻米阳台现在成为孩子的卧室,和客厅之间顶部预留窗帘位置,晚上睡觉时拉上窗帘,就形成一个单独的榻榻米房间。床下面还是储物柜,满足收纳需求。

书架床头边上是一个儿童书架,上面放着孩子看的书,细节在地上摆放2个木凳,培养自己动手能力,让孩子拿自己喜欢的看。

推荐阅读
- 全屋|同样住了6年,我家凌乱不堪,她家却干净如新,看完后:学习了
- 院子|中式庭院输了,国外院子门前台阶打造室外玄关,这才叫圈粉设计
- 新房|118㎡新房无玄关,老婆机智的砌道假墙,邻居后悔当初没想到
- 蕾丝|她说她家是“穷装修”,我看并不是这样,越简单越舒服,温暖雅致
- 设计|将玄关打造成衣帽间,这个51㎡的loft设计太有水平了!华而实用!
- 储物柜|房子再小,收纳也要做足!她家打的这三处柜子让家显大,太实用了
- 购房置业|情侣共同买房后分手,为房子而反目,男子痛斥:她一家五口全来了
- 柜体|夫妻俩买下“渣”户型,改造后让人惊叹,拥有超强收纳,还很好看
- 玄关柜|玄关只放鞋柜?落伍了!2022年流行这样设计
- 走廊|被她家的76㎡新房惊艳了,电视墙改造成收纳柜,走廊砌吧台藏冰箱
