生而为人,我们每个人的基本生活需求其实都是一样的,再没钱,也要有个遮风挡雨的窝,窝再小,也要有能满足人类吃喝拉撒睡等生活需求的各种功能。在空间比人家的小,而生活需求一样都不比别人家少的情况下,如何合理地安排空间布局,使之既能满足实用性,又能尽量住得舒适,就显得尤为重要了。本期为大家带来的就是一套小户型的装修案例。虽然这套房子的面积才41平米,但装修效果却清爽敞亮实用得很。家里有小户型的,不妨参考一下哟。

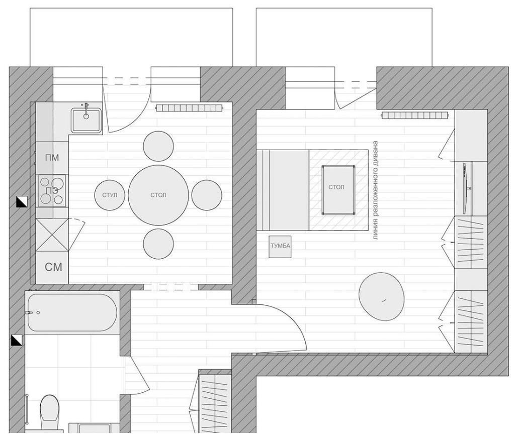
这套房子呈一个L型,整个空间被清晰地划分成了四个部分——玄关、卫生间、一体式厨餐厅以及一个灵活多变的多功能区。这个功能区既是客厅,也是卧室,也是工作区。可以说,这套房子面积虽小,但基本囊括了我们日常生活所需的各种功能。而且整个空间的设计,也很平实简单,不是那种虚头巴脑的设计,所以还是很值得借鉴的。一起来欣赏一下吧。


进门后,可以看到玄关左侧白色的墙面中藏着一扇隐形门,那是通往卫生间的,而玄关右侧则安排有一组蓝色的衣帽柜。整个玄关区的色调由白色、木色与蓝色构筑而成,一入户,便感觉十分地清爽自然。


卫生间是窄长型的,空间不算很充足,所以,屋主将洗手台和马桶都设计成了挂墙式的,这样做的好处,一是能让室内显得更敞亮一些,二是马桶水箱上省下来的空间,可以用来做储物收纳,增加实用性。再加上卫浴区内整体采用了浅色调,所以,整个空间看着还是很清爽亮堂的。

由玄关角度向前看,前方是厨餐厅,右侧是卧室兼客厅,整个空间敞亮清爽,完全没有局促压抑的感觉。

走进了看,厨餐厅是由L型厨房与圆桌相搭的,这样的设计,既实现了空间利用最大化,空间又不会显得太过拥堵,有方有圆的设计,也能使整个空间的视觉效果更圆滑,避免呆板感。
橱柜左侧的高柜里除了嵌入了烤箱和蒸箱外,还将冰箱也收纳在内了。一眼望过去,整个厨房操作区看着格外地清爽整洁。

餐桌是实木材质的,朴素自然却很温暖,餐厅侧面的背景墙上,还装了两盏简洁的壁灯,既装饰了单调的大白墙,晚上灯光亮起时,又能营造温馨的居室氛围。



多功能区内安排了一张单人沙发和一张双人沙发,两个沙发,都是可以展开的。白天,这里就作为正常的客厅使,休闲娱乐、招待朋友,都可以。晚上睡觉时,将沙发展开,就会变成一张标准的双人床,这里立即就成为一个完全独立且私密的卧室了。
推荐阅读
- 装修|三四年前自己设计装修的小家,不后悔的实木地板通铺和开放式厨房
- 铰链|小五金大学问,家中装修时,一定不要忽视五金配件
- 黑板墙|70平简约风,带有巴西的热情和爱!黑板墙设计,适合小朋友们学习
- 装修设计|张静初家里囤了好多日用品,门口还种着小番茄,一看就是持家有道
- 保护人员|为什么电源线绕了几圈再接开关老电工说细节虽小,却不能忽视
- 书房|小户型64㎡,他坚持装一半玄关,在储藏室里做书房!太聪明了!
- 家务活|建议大家:逛超市时,添置这5件家居小用品,虽然便宜,却好用
- 建筑面积|在欧式别墅扎堆的农村,建一栋中式小院,造价30万你愿意吗?
- 购房置业|全杭州的二手房东都在等小阳春的到来!买房和卖房,没有最佳时机
- 窗户|家有阁楼就偷着乐吧!斜面打通做个宽敞的大露台,凭空多处小院子
