这次分享的案例坐标在合肥,89平的三居室新房。屋主是一对年轻夫妻,风格上以北欧风为主,符合年轻人的审美,同时可以达到空间扩充效果,让空间通透不压抑。在设计师的把控和优化下,有透有隔完工后效果清新优雅,如沐春风。(图:1890设计)

89平的三居室户型,改造前空间非常逼仄,空间显得拥挤采光也不是很理想,给人感觉很憋屈。

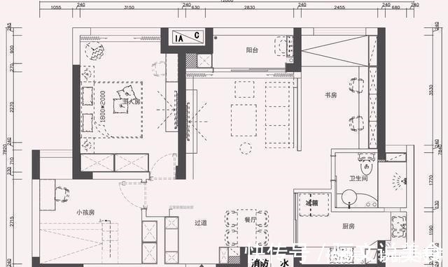
改造后平面图,把客厅与书房墙体拆除,做半高隔墙划分功能区。半开放式设计,客厅与书房相互连通空间更通透,彼此又拥有自己独立的空间。
【 拉平吊顶|89平三居室新房,进门鞋柜太满意,这么装漂亮又省空间,晒晒!】

完工宽敞明亮,不像改造前那么逼仄。没有多余的装饰,一切整洁自然。轻巧的细腿儿家具,优雅的无与伦比,让人无法拒绝。线条简洁,结构简单,使居家空间更清爽阔绰。


拉平吊顶采用无主灯设计,局部的点光源为客厅提供照明,简洁大气空间自由度高。窗帘盒暗藏灯带设计,提升视觉美感。跳脱的茶几和抱枕,表现出简洁欢快的空间感受。

木纹砖的地面,让家里显得更温馨。电视墙不做任何造型,直接挂上电视简单耐看,圆柱空调与盆栽对称摆放刚好起到装饰效果。入户鞋太满意,与墙齐平漂亮又省空间,功能齐全储物空间大,朋友狂赞!

简洁舒适的餐厅,背景墙相框画装饰,别致的配色与图案为白色的墙面增添了很多美感。壁龛设计非常巧妙,美观实用节省空间。

厨房灰白色搭配,干净简练让人觉得很舒服,白色的墙砖使得空间更为明亮。


主卧自然舒适,浅色的墙面搭配深木色床头柜,显得更加稳重。书桌代替靠窗一侧床头柜更加实用。精致的小壁灯,与窗帘相呼应的床品,让空间更具清新活力。

书房飘窗做了延伸,不仅颜值高还增加收纳。简易置物架,颜色与木纹砖保持一致,视觉效果更协调,搁上一盆小绿萝,将室内外气息很好的串联在一起。


阳台用黑色方格玻璃推拉门隔断,采光更好空间更通透,黑色线条更显几分立体感。利用墙体与推拉门凹进去空间,设计一组储物柜,实用不浪费空间。
推荐阅读
- 室房|169平现代风三居室房,收纳设计和空间机能设计完美
- 收纳|162平现代风设计功能与美感都恰到好处,冷静大气美感太好了
- 原木色|90平新房,过道、衣帽间太实用了,卫生间装折叠门,超明智!
- 一居室|71平北欧风一居室,用墨绿色、脏粉打造清新的居室
- 耐看|她家不吊顶,只走石膏线,墙面不造型,只刷乳胶漆,太简洁耐看了
- 收纳界|一平米储物间爆红网络:韩国妈妈85平的家,堪称收纳界的巅峰之作
- 平开窗|年末家居盘点:家里的各个空间适合什么类型的门窗?
- 大产权|双拼别墅压轴产品,面积222.37平,院子234平,超大开间10.8米
- 均价|2月第2周北京二手房挂牌均价68610元/平 环比上涨0.05%
- 房地产|杭州:“十四五”房地产开发总规模不少于8000万平方米
