哈喽,大家好!我是您的爱家装修解说员,希望通过小编之手,让你更加彻底的了解家装的世界!难道是疯了?她居然把150㎡大户型,三室改两室,不过效果真大气只见过装修增功能房的,没见过缩减功能房的。今天要解说的这套案例,业主反其道而行之,正如她所说“自己的生活自己过,怎么舒适怎么来,何必在乎别人的看法呢?”业主买下150平的三居室,原本空间还算宽敞舒适,装修的时候,业主却把三室改造成了两室,让之前的功能空间更加宽敞,不得不佩服业主的这份勇气与胆识!一、客厅设计特点:1、美式装饰格调,家具多以大体量、厚重的款式;2、色调上多以“大地色系”为主,质朴又充满质感的材质,通过色调的深浅不一,营造出更显活跃的环境。


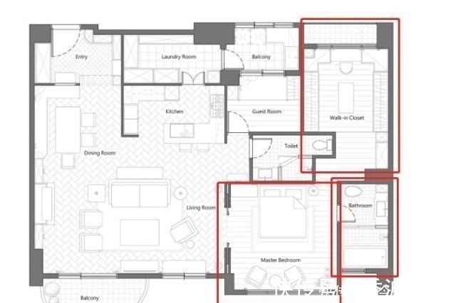
二、平面图
【 收纳|难道是疯了她居然把150㎡大户型,三室改两室,不过效果真大气!】

设计特点:1、三室改两室,让空间更宽敞舒适;2、原本的书房被改造成了衣帽间,满足了女主人的需求,空间得到了更好的利用。

三、衣帽间设计特点:1、面积不算大,狭长型的空间,一字型的衣柜布局形式,使用更便捷;2、浅绿色的墙面装饰,白色的衣柜设计,多抽屉式造型,让收纳更为有序。

四、卧室主卧设计特点:1、独立的衣帽间,成为了主卧的加分项;

2、纱帘让光线更为温柔,遮光帘保证了房主人的睡眠更有安全感;3、墙面线板和软装的应用都颇为清雅简约;4、靠窗摆放两把亚麻布休闲椅,非常惬意的休闲处。



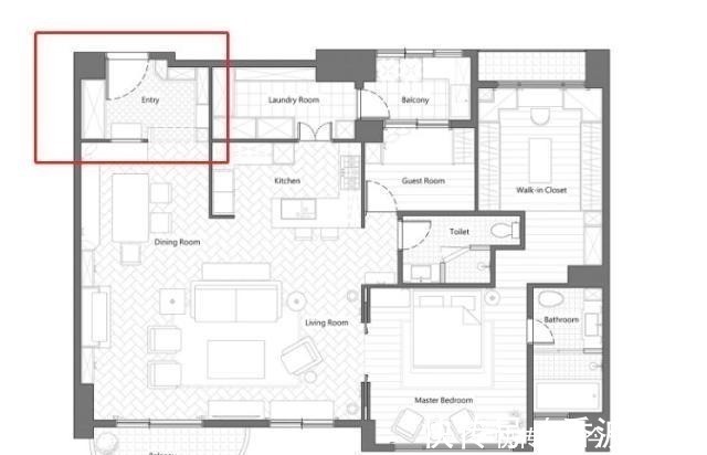
五、玄关设计特点:1、巧用轻质墙,围合成独立入户玄关;2、靠墙设计的收纳柜,让此区域的收纳功能大大提升,而且空间也不会显得压抑;


3、灰色系的复古地砖,空间显得高级又有格调;4、百叶窗的柜体设计,让空间通透又轻盈。

六、餐厅设计特点:1、巧用转角空间,打造出卡座的形式;

推荐阅读
- 富豪|240平私人顶层复式,住在这里的人,才是真正的富豪!
- 谷金|海南一男子租房8年,发现房东是妻子后崩溃:“你坑我的钱”
- 厨房|不管家里多有钱,3个位置不能放地垫!不是迷信,要记住
- 收纳|10个一直舍不得换的家居小件,换了之后觉得超值,方便又干净!
- 卫生间|现在干湿分离的设计已经落伍了,卫生间这样设计才是王道
- 收纳|丹麦一家5口,女主把家布置得温馨精致,生活品质满分,太羡慕了
- 租赁|开发商都是怎么把自己作死的?
- 中西厨|客厅放弃电视,用一整面墙做收纳,快来跟这个神仙小户型学收纳!
- 好处|“房产证”加子女名字?这3个好处你要知道,不仅仅是省钱!
- 瓷砖|房子装修一时耍帅装逼!12个装修坑扎堆,真是不作不会死!脑残呀
