采光和收纳一直都是老学区房业主的需求重点,我们今天要介绍的就是一个老小区改造的案例,业主家里有两个上学的小朋友,生活物品肯定少不了,这就对了初始面积只有86㎡的房子提出了收纳的挑战;而在家里的风格色调上,业主希望家里可以有温馨的氛围,设计时选择了木色和白色,并且把空间重塑,解决了业主的需求。

案例来源 |住小帮APP@壹石空间设计

房屋信息????户型:二居室????房屋位置:南京市????使用面积:86㎡????装修预算:44万????装修风格:现代简约风

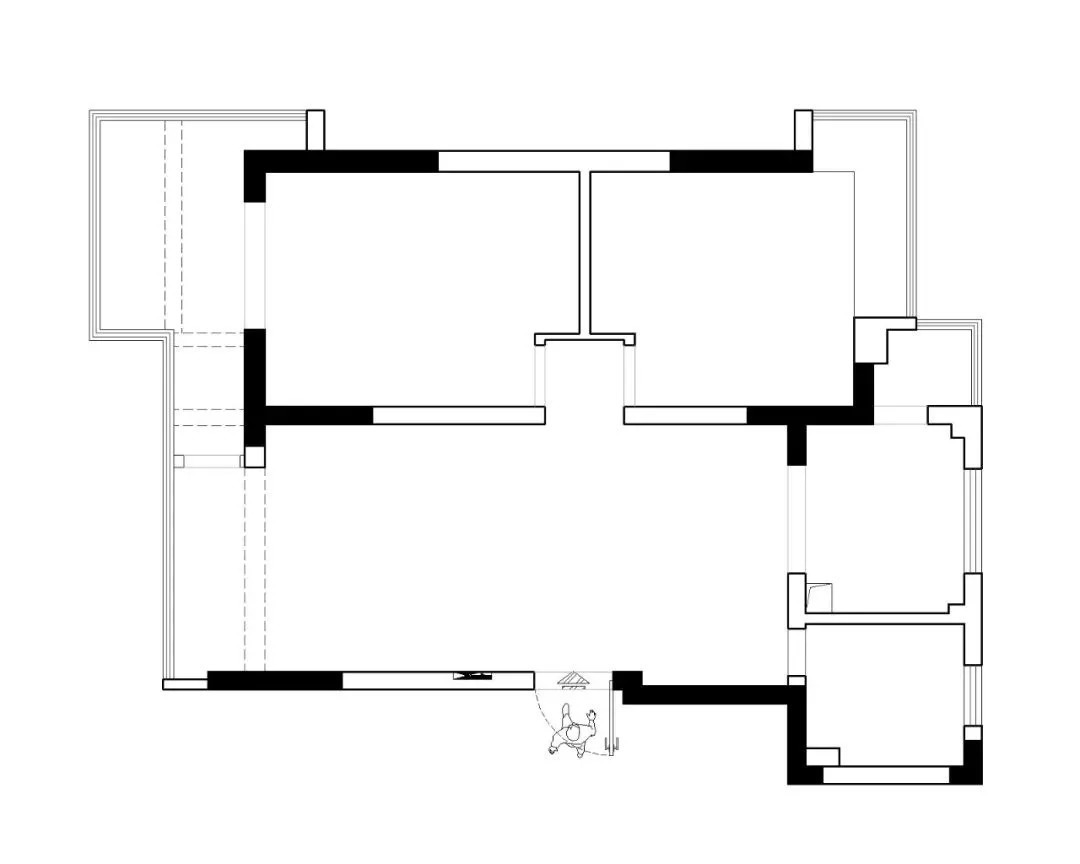
户型图

原始户型比较方正,可缺点也很明显:
- 二手房位于3楼,采光受限
- 入户没有明显的玄关收纳空间,缺少鞋子的换放的位置
- 卫生间也不大,洗手台淋浴房马桶等一体很拥挤,洗漱体验感不佳
- 餐厨位置小,整体显的拥挤
- 原来的卧室空间也不算大,整体都缺少收纳

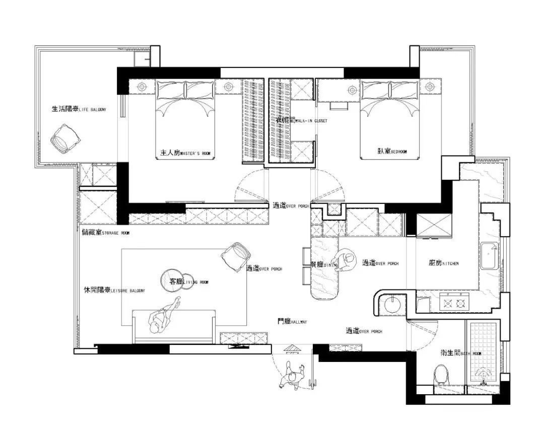
虽然原户型较为简单,设计师还是根据业主的需求做了不少改动:
- 入户增加鞋柜,虽然空间不大,但尽可能的考虑其舒适度,进出家门,可以在门口换鞋;右手边加洞洞板,既作为装饰,也可以补充入户收纳需求,挂包包口罩,放放钥匙小物等
- 客厅阳台并入客厅,优化客厅采光,取消传统的电视机,这样可以拥有一整面收纳墙。预留投影幕槽,满足家人偶尔的观影需求
- 厨房空间不大,直接做开放式,中西厨结合,把原来餐厅墙边做了一整面餐边柜,满足其功能的需求,视野也开阔了
- 卫生间原来很拥挤,将下水移位,干区外置,做干湿分离式,这样原来的淋浴空间,也不拥挤了
- 孩子们的房间本来也不大,但是小朋友衣物都挺多的,于是借了大人房一些空间,做了一个步入式衣帽间,收纳问题也解决了
- 卧室里的生活阳台比较大,这里可以晾晒也可以是休闲区域,除了洗衣机干洗机的嵌入,在转角的地方也不浪费,做了一个清洁角,在这里可以清洗抹布,拖把

客厅

客厅取消电视机,暗含一整排收纳墙,可以用来给孩子收纳玩具,手办,书籍。取消主灯,用点光源、线型灯满足采光需求。入户的悬挂式鞋柜,柜子里可以放鞋子,而悬空下方,可以放一些拖鞋和常穿的鞋子,下面暗藏感应灯带,作为补充光源,也更有设计感。不装电视可以尽量减少孩子看电子产品时间,但留有投影仪可以满足家人偶尔的观影需求。投影幕布槽与吊顶刚好做成一个好看的弧度,功能和美观,相互成全,投影幕实用也方便,需要看的时候,放下就可以。

一整排的收纳柜,顶天立地,简约流畅的线条,白净的色调,好看更耐看。柜体里暗藏感应式灯带,开门的时候亮起,倍感温暖,体验感十足。在保证充分的收纳上, 在柜体里设计了感应式开门灯带,来做空间使用时的补光。
推荐阅读
- 推拉门|厨房别再装推拉门了,我家装之前没听劝,入住才知吃大亏了!
- 装修|客厅“这3处”的装修,不建议太费心思,装得好了反而显鸡肋!
- 台面|厨房这18条装修经验,非常重要,一不小心容易装错!
- 客厅|客厅不可有三见,一见败三代,代代没出息,一代比一代穷!
- 小姐姐|这套76平小房子,上了年纪却充满人情味!狭窄的厨房,一丝不苟!
- 占地|一见钟情的5种厨房用品,买时“心疼”,用后“真香”!建议备齐
- 地柜|这是我见过用起来“最顺手”的厨房布局,再买房建议照着装,干货
- 凹槽|厨房装推拉门早就过时了,聪明人都用这2种隔断,后悔没有早知道
- 客厅|看完他家130㎡明白了,档次在舒适面前一文不值,越极简越受欢迎
- 刀具|橱柜多留10公分,厨房柜子能少买好几个,后悔我家没这样装
