前言
据业主说,夫妻是一对70后夫妻,自己有一套房子,另外一套是留给自己还在上高中女儿的礼物。
希望我们设计师设计出时尚并且不过时的房子,想着自己女儿即使再住几年也依然设计感十足。
于是我们设计师考虑用温和的木皮、皮革与石材、金属进行搭配点缀,达到刚柔并济的时尚感,色调选择米色、蓝色,冷暖交织流露优雅大气的质感。对于设计师来说,设计一个家,就是描绘一个家的生活轨迹,探寻生活的真谛与惬意。

原始结构图

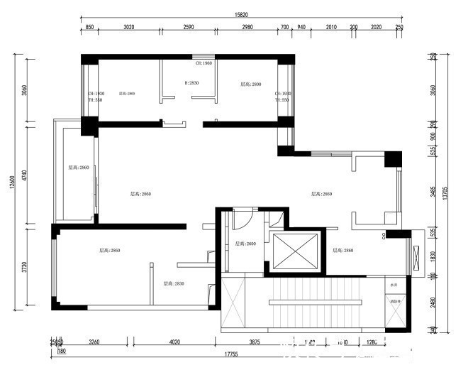
平面布置图
在进门处我们设置了一个玄关的区域,进门后就可以看到完整的内部空间。并且在玄关的背面空间做了一个半开放式的多功能室,和客厅形成互动。


我们入玄关后映入眼帘的就是U型的玻璃展示柜,上边可以放置手办、书籍,右侧柜子兼具美观收纳功能,整体银白、黑色和茶色玻璃的融合,塑造个性独特的风格,能感受到轻奢的调性。



客厅主色调银白灰,不管是地毯、墙布、沙发还是电视背景墙、茶几,色彩搭配稳重儒雅,透露出不拘一格的潇洒。顶部无主灯设计满足正常光线需求,引入的自然的光线,进入客厅的一瞬间,给人视觉感官非常享受,情绪更加稳定了。


蓝色的单人沙发,莫兰迪色的窗帘,金属色的展示柜搭配黑色的线条感设计,为整个空间增添率性洒脱的个性。


运用大理石其自然的花纹,搭配素雅的墙布,营造寂静开阔之意,搭配不规则茶几,简约不失大气。


餐厅整体的风格极简,银白色和黑色线条的搭配,简洁明了,尽显大气格调。圆形的餐桌让家人一起就餐聊天,凝聚温馨之感。


厨房空间采用回型设计,白色的定制柜、大理石地板和墙面,加上黑色质感的厨具家电,整体空间感十足,空间还宽敞,可以和家人一起享受做饭的乐趣。
推荐阅读
- 庭院|48岁的大叔,砸掉老房子,盖了一座四合院,完工后全村人都惊艳了
- 北京市|福州晋安区二环内融侨云津分析
- 合同|中南建设2022年1月合同销售额减少66.1%至46.1亿元
- 预售额|合景泰富1月预售额41.6亿元
- 储藏室|“中西合璧,天下无敌”,农村建房热门户型推荐,工头看完也想建!
- 组合架|老公坚持次卧不装“衣柜”,亲戚都说他疯了,完工后效果却很赞!
- 说唱歌手|招合租招来一个博士后, 产生了如下“灵魂对话”, 我国人才真不少
- 房贷|开盘快讯|合肥前两周5盘421套房入市,整体开盘去化62%
- 合同|旭辉2022年1月合同销售金额84.4亿元 均价约1.74万/平方米
- 白云|快讯:白云兴庆御苑7栋楼房屋备案价格公示,楼幢均价17163元/㎡
