可以说大城市的房价对于任何一个时代的人来说都是不容易的,不然白居易初到长安也不会感慨居大不易了。本案从某种意义上来讲也是如此,不过业主还是通过自己的努力在六朝古都南京买下了一套90㎡的房子,只是买房不易,她家的户型和格局并不是太好,但通过合理的设计却实现了华美逆转,效果出来非常迷人,就忍不住晒晒。

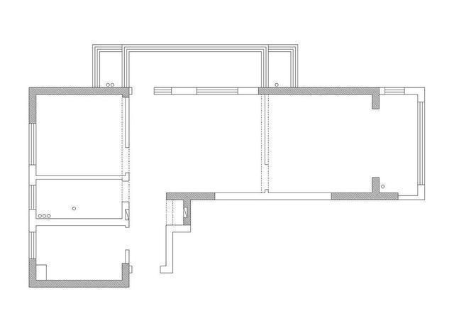
原始结构图原始户型两室一厅一厨一卫。
【 沙发|她家90㎡的房子,既不买沙发,也不买餐桌,完工却实用倍增!晒晒】
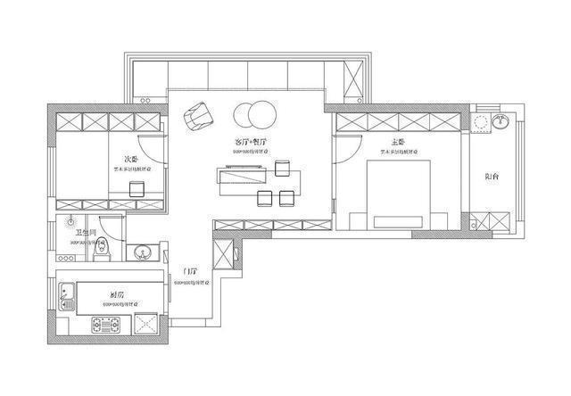
平面布局图为解决餐厅的问题,打通客厅阳台,不买沙发,这样能释放不少的空间,此是其一;其二在于客厅重新砌一堵半高的墙,看电视和吃饭的地方都有了,这样的创意无疑发挥了一物两用的效果非常机智!话不多说,我们看实景。

这是入户走廊,左侧的第一道空间是厨房,安装了谷仓门具有耳目一新的效果,另外就是门板上的黑板墙,无论是用来给孩子涂鸦或是作为备忘录都是可以的,它能够让家显得更有生活气息。至于右侧是唯一的卫生间,为了提高使用效率,特意将洗漱台挪至卫浴的房门外,这样洗脸刷牙和上厕所两不耽误。

来到客厅。如前所述没有买沙发,为了解决落座的问题,在打通了的阳台处设有可储物的卡座,然后以此为基础铺上布艺坐垫以及靠上抱枕就能充当临时沙发的作用了。


由于没有餐厅,为了解决吃饭的问题舍弃了电视墙,再砌一堵半高的墙然后挂上电视机,影音方面的需求也就解决了,而且不影响采光,堪称一举两得的设计。


当然,这只是这堵墙的其中一个妙用,另一个妙用就是提高利用率,在墙的基础上不买餐桌,直接砌这么个石台,就餐区也就有了,加上背面的柜子,功能十分强大。

而这也是为什么业主既不买沙发也不买餐桌的原因,毕竟完后真的实用倍增!右侧的话是入户走廊,能够发现左侧贴墙而设的穿衣镜以及嵌入式的玄关柜等等。

厨房为U型格局利用率高,只不过考虑到结构上比较狭长,右侧没有定制橱柜,否则会显得很压抑,而雅士白的墙砖就是为了放大视觉空间特意铺贴的,效果也好看。不过虽说橱柜不能装,但置物隔板还是要有的,至少放些使用频次高的餐具和调料,烹饪时能够一目了然地拿取。

一共两间房,这间是主卧,由于客厅的阳台扩容为卡座,就把这里的阳台设为晾晒衣物的地方,于是左侧洗衣机加上右侧的家政柜,很实用。床头墙的话,为避免只刷白显得单调,就在半高以下的区域做了木质护墙板,这样富有层次感多了,而且充当了床头靠背堪称一举两得的操作。
推荐阅读
- 轻奢风|120㎡现代轻奢风,简约新生活,不一样的体验感
- 改造|她买下学区房,76㎡挤出8个房间,一层爆改两层,邻居都看呆了
- 上海市|南江公寓(海悦台)项目173套房源备案 备案均价16748元/㎡
- 公共资源交易网|绿园区5495㎡商务金融用地成功出让
- 卫生间|60㎡老房改造 | 一居变两居,做出了80平的感觉!
- 三亚|三亚当代艺术馆项目912套房源备案 备案均价58598元/㎡
- 地暖|面积段约89-130㎡?!仙林湖中海·观文澜猛料来了
- 轻奢|君豪新城100㎡3室1卫轻奢风格干净利落高级感和可塑性强
- 二手房|东西又多又乱,122㎡二手房拿到手改造下,现场不比样板间差吧!
- 沙发|跪服!35㎡小公寓却拥有30㎡收纳空间,堪称小户型改造典范!
