一到孩子上学的年纪,许多父母都为孩子就学操心,一套位置绝佳的学区房,不仅让孩子方便学习,还能接受一流学校的教育,但动辄百万的学区房,让许多囊中羞涩的父母,更是焦心不已。济南的这个妈妈,买下78㎡学区房,和丈夫自己改造房子,利用层高,将一层楼房改成两层,小空间硬是挤出了8个房间,堪称教科书级改造,周围的邻居都看呆了。

▼设计图纸

▼ 原始户型布局图本案设计坐标山东济南,是一套建筑面积99㎡的小公寓学区房,但实际使用面积仅有76㎡。且原有户型,是标准的两室一厅格局,仅有1个卫生间,同时没有厨房,这对爱好烹饪的女主人来说,的确是硬伤。因此夫妻两个人,决定自己改造这座公寓学区房,从布局再到调整,历经了1年时间,终于完成这套小公寓的改造。

改造后的平面-一楼▼改造重点:层高3.75米虽然户型布局少了厨房,但是户型的层高却拥有天然的优势:3.75米的层高。夫妻两人也依照了层高,进行了巧妙构思,将原本只有一层的空间,改造成了2楼格局。原本的小公寓,砸了两面墙,又重新置入了一个二楼空间,硬生生地将原有的户型,改造成了拥有8个房间的格局。

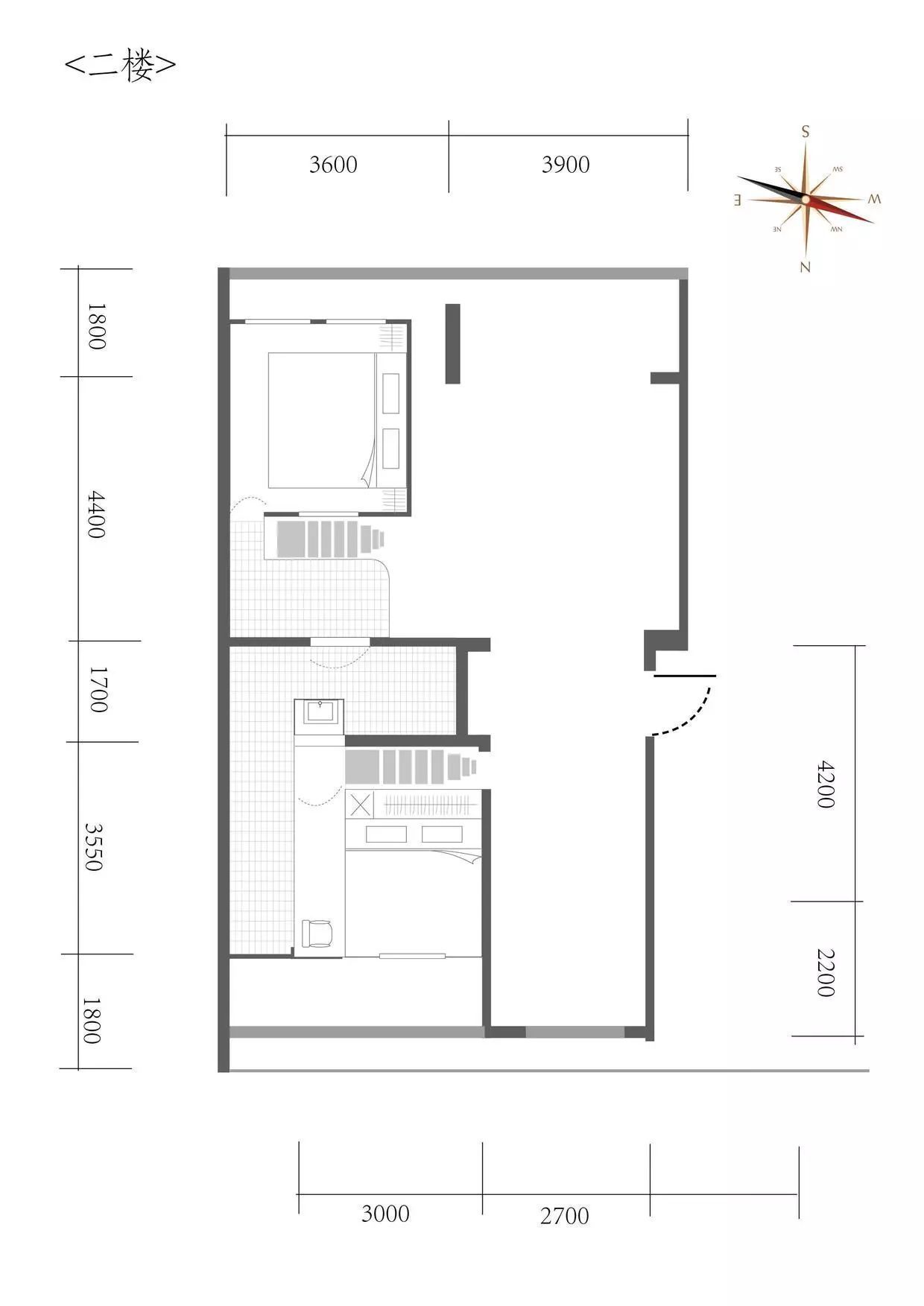
改造后的平面-二楼▼玄关步入玄关的第一眼,就有一派宜人的北欧情调。一组来自宜家的白色玄关柜,替换了黄铜把手,瞬间有了轻奢的格调。并且玄关左右两侧,均是两个楼梯,能够通往二楼的主卧和次卧。

▼楼梯楼梯空间的设计,显得简约雅致,铁丝网的扶手以及原木风的地板,显得简单又有高级感,再点缀一盆绿萝,沿着铁丝网蔓延垂落而下的叶脉,似乎象征着生命的磅礴。

▼客厅而客厅取消了电视背景墙设计,在上方加入了一组自动升降式的幕布,配合家里的投影仪,能够拥有影院级的观影效果。而电视背景墙则被改造成了一整面墙的收纳柜。

▼打开柜门之后,你会发现这个收纳柜的储物能力简直太强,不仅收纳日常不用的衣物、打扫工具,甚至还藏着一台小小的电视机,而且家里的三只泰迪的小窝,也被嵌入在柜体之中。客厅

▼打开电影幕布,就可以坐在客厅里观影,这种惬意的生活,让人甚至怀疑这不是学区房,而是一个大平层空间。

▼布局在客厅空间的设计之中,夫妻俩接连砸了2道墙,连通了原户型里的阳台和卧室空间,这让客厅足足达到了40㎡的大小,如此开放式的客厅,再搭配一组米灰+浅绿的沙发,简直不要太惬意。

▼小花园而阳台空间,则被改造成了一个小小的花园。一道拥有3.75米高的落地窗,让整个客厅采光感十足,也让这里满满绿色的植物能够进行光合作用,绿萝、吊兰、琴叶榕等植物,成为了清新房间空气的小助手。
推荐阅读
- 住房公积金贷款|耗资超17亿的大楼:因太丑花9000万用布盖住,却被人花106亿买下
- 卫生间|60㎡老房改造 | 一居变两居,做出了80平的感觉!
- 二手房|东西又多又乱,122㎡二手房拿到手改造下,现场不比样板间差吧!
- 沙发|跪服!35㎡小公寓却拥有30㎡收纳空间,堪称小户型改造典范!
- 客厅|她家49㎡,一个人生活,储物空间每一处都有,不拥挤还美观,真赞
- 改造|迎接新生宝宝改造52㎡家,一间卧室玻璃隔出儿童房,不浪费1㎡
- 软装|她家与豪华不沾边,可满屋子的温馨感却藏不住,网友:挑不出毛病
- 洞洞板|小厨房越用越大!只因增加了这7个小改造,弥补了不少装修遗憾
- 生活环境|入住两年,她家依然简洁大方,喜欢照着装,你家也能一样温馨美好
- 瓷砖|她家130平米,精心设计被夸美得像样板间,惹得邻居天天排队参观
