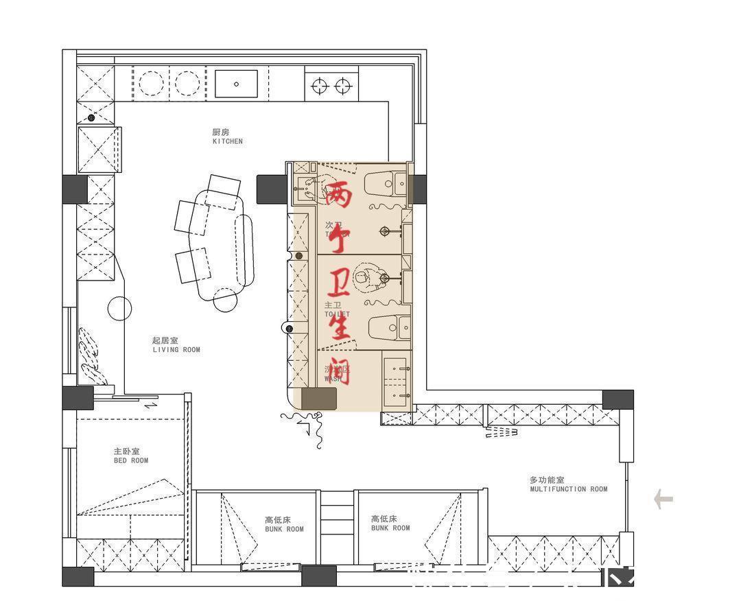
竟然还有两个卫生间



55平方米有“4居室”,竟然还有两个卫生间,不得不说他们太牛了。为了孩子定制了双盆双龙头,台面定制的人造石一体盆,非常好打理。


另一个卫生间,虽然洗手盆是小了些,但好用,甚至在墙上还制作了几块小层板,收纳和颜值都有了。
说在最后
到这里,这套案例就分享完了,虽然是一套迷你的小户型,但功能可以说不比大空间差,重新改造后的房子,
有着美丽的外表,实用的功能,有着图书馆氛围,甚至还有游乐场的惊喜
,整个空间开阔明亮,色彩搭配自然得体,确实是一套完美的小户型改造案例,真的很佩服,祝福他们生活幸福。如果你也喜欢这样的改造,可以参考一下。
我是沐宸谈装修,一直以来专注于帮助和我一样的年轻人住得更好,我会定期分享装修案例、家居生活知识与生活好物种草,欢迎关注一起探讨美好的家居生活!吴晨/何雨晴设计
想了解更多精彩内容,快来关注沐宸谈装修
推荐阅读
- 二胎|家有二胎别做上下铺,一个柜子分成2张床,上方打个吊柜完美收纳
- 收纳|幸亏没人要一楼,他们家126㎡有前后院做水泥地,日子幸福滋润
- 收纳|小屋显大的9招精髓:宽敞又通透,我拍手叫绝!
- 免钉胶|送几款家居收纳必备,10块钱不到的免打孔神器,你值得佣有!
- 收纳|70㎡北欧两室,客厅不设收纳柜,随孩子任性玩耍!
- 存放|衣帽间可学日本这样的,一分为二的设计,方便的同时还不愁收纳!
- 收纳|5年前的审美,现在能看吗?63㎡虽小,但保持的整洁有序实属不易
- 柜子|90后小夫妻,因太会布置而走红,把95㎡小家装得堪称收纳教科书
- 收纳|小户型收纳成难题,装修时这4处装上柜子,不再担心房间凌乱
- 购房置业|这也太秀了吧!她把农村老房子改成“豪宅”度假屋,真想搬进去!
