。

要说温馨,两口子下足了功夫,在高低床里装上暖暖的灯光,每一个功能又是相对独立着。

就连侧面也不放过,定制出一块黑板墙,用来绘画与涂鸦,这里俨然成为儿童乐园,满足儿童的各种需求。
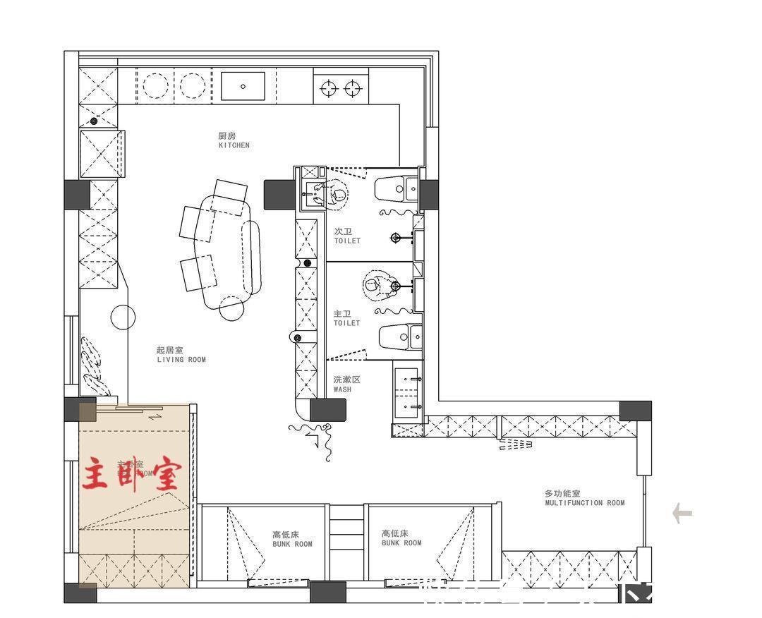
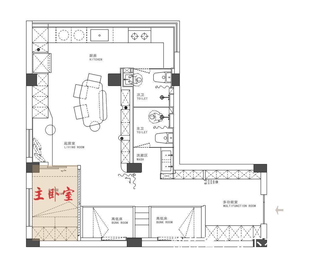
主卧室


“主卧室”连着高低床,形成休息区在一排的设计,里面仅仅就是一张床的摆放,虽然看起来十分有限,但我强烈感觉到幸福的家庭生活。

两个主人在里面放上舒适的床品,甚至在床头还有个小衣柜,用来收纳贴身衣物,可以说把实用性做到了极致。


尽管卧室之间离得很近,私密性不怎么好,但对他们而言,这是最优的解决方案
,如今的卧室规划可以容纳7到8人休息,而且并不觉得很挤,甚至全利用PVC折叠门隔开,墙上挖洞造窗,让光线自由引入。
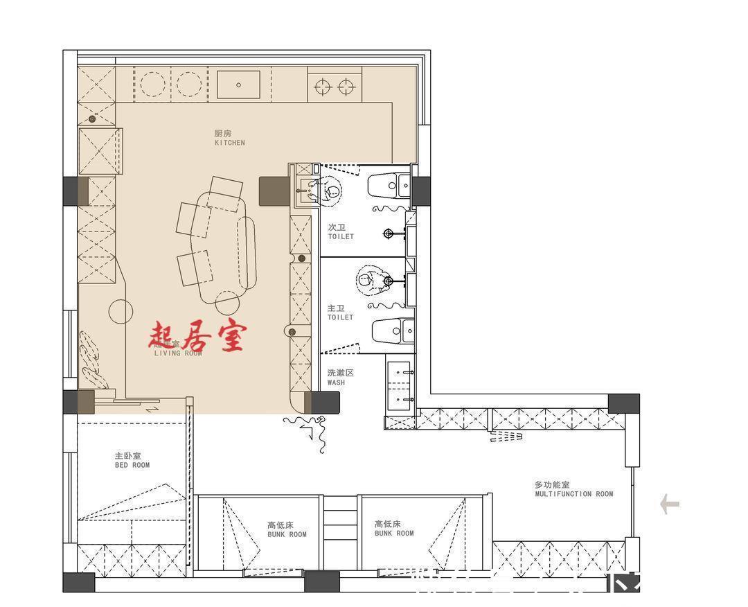
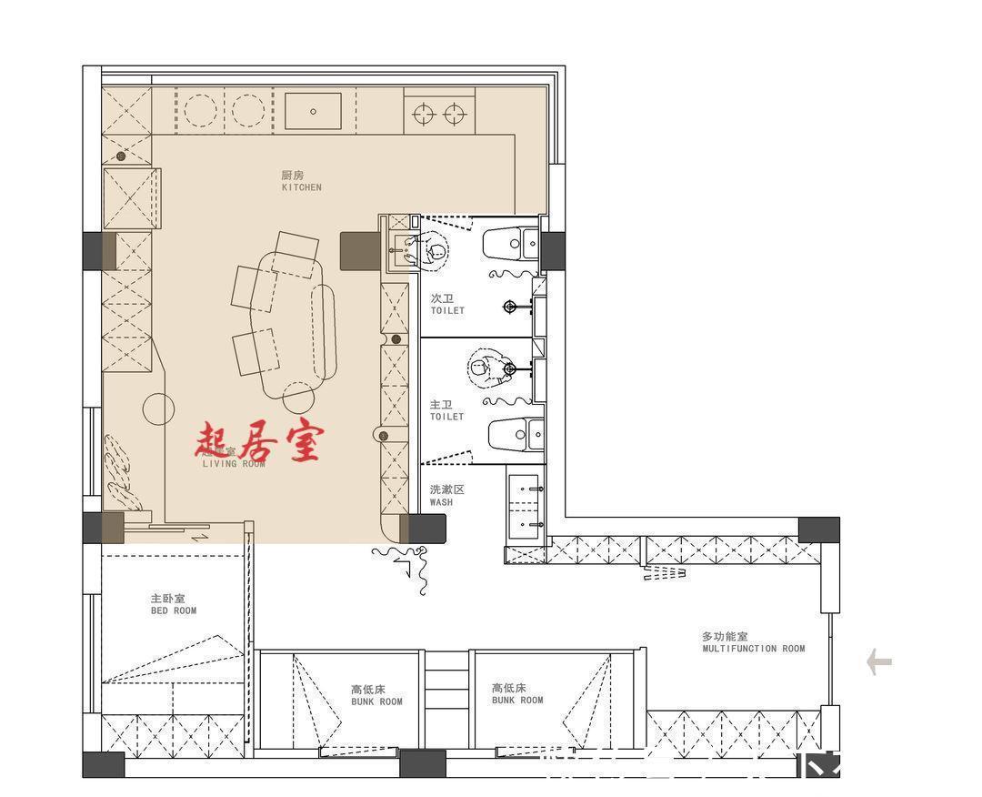
完美的起居室


这里是一家人最大的活动区,把原来的阳台和厨房全打开,形成开放式设计,整个空间豁然开朗,在中间位置摆放大长桌,以它为“C”位,四周形成无障碍的洄游动线,让居家生活更加便利。

比起传统客厅的布置,长桌替代沙发和电视更加实用,它既是一家人的用餐区,还是阅读的书房,甚至还是亲子互动与辅导作业的地方,他们更愿望称之为这是起居室,比起客厅一板一眼,起居室更加温馨,更有人性味。
就像他们说的,没有必要把家里的功能固定化,只要合理实用,贴合自己的生活习惯,舒适度并不亚于大豪宅。

但他们还是靠窗定制了小卡座式沙发,人多的时候还是很方便的,虽然没有电视功能,但坐在这里玩手机也很惬意。

卡座沙发边上就是大高柜,家里的收纳集中统一,把一些零散的生活物品存在里面,干净整洁。


灰色大高柜对着的就是多彩的书架,两个小孩小学期间,有大量的书,而这里就是最会好的收纳空间,加上玄关处的多功能房,家里的收纳十分充足。
无敌采光的厨房

打通后的厨房,台面有6米,在这里洗菜做饭,还能看见外面美丽的风景,因为没有了阳台,他们把洗烘机都嵌入进橱柜里,功能很丰富。再加上选择的集成灶,就算是小空间的开放式设计,油烟也不会到处乱飘。
推荐阅读
- 二胎|家有二胎别做上下铺,一个柜子分成2张床,上方打个吊柜完美收纳
- 收纳|幸亏没人要一楼,他们家126㎡有前后院做水泥地,日子幸福滋润
- 收纳|小屋显大的9招精髓:宽敞又通透,我拍手叫绝!
- 免钉胶|送几款家居收纳必备,10块钱不到的免打孔神器,你值得佣有!
- 收纳|70㎡北欧两室,客厅不设收纳柜,随孩子任性玩耍!
- 存放|衣帽间可学日本这样的,一分为二的设计,方便的同时还不愁收纳!
- 收纳|5年前的审美,现在能看吗?63㎡虽小,但保持的整洁有序实属不易
- 柜子|90后小夫妻,因太会布置而走红,把95㎡小家装得堪称收纳教科书
- 收纳|小户型收纳成难题,装修时这4处装上柜子,不再担心房间凌乱
- 购房置业|这也太秀了吧!她把农村老房子改成“豪宅”度假屋,真想搬进去!
