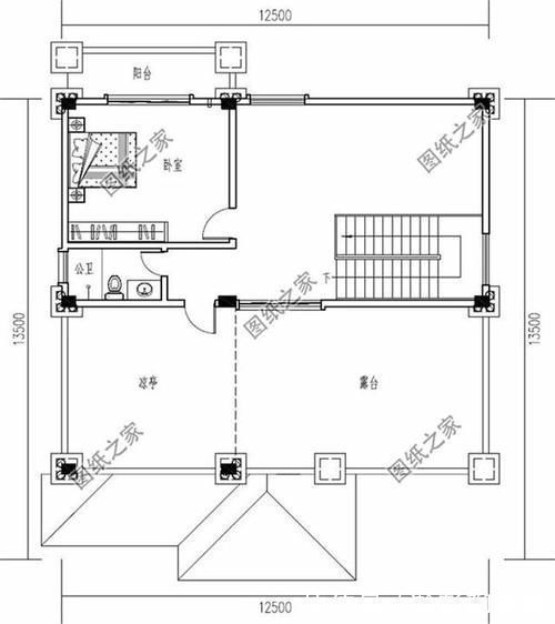
别墅二层户型图展示

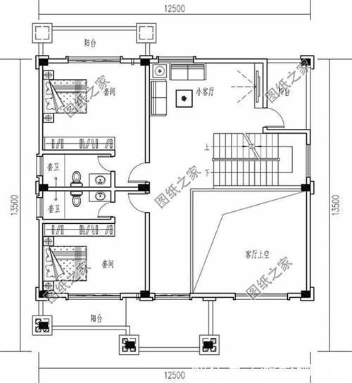
别墅三层户型图展示

别墅三层户型图展示
设计功能:
一层户型:门厅、客厅、厨房、餐厅、娱乐室、卧室(带卫生间)、卫生间;
二层户型:客厅、主人房(带卫生间)、卧室、卫生间、阳台;
三层户型:客厅上空、小客厅、卧室(带卫生间)x2、阳台;
四层户型:卧室、卫生间、凉亭、露台;
以上就是农村独栋三层别墅图片,是真正的好房子,不打算收藏以后回家建一栋吗?
推荐阅读
- 户型|房子要是有这些特征,就是“黄金户型”了,你家占了几条?
- 实用|占地97平,这样设计的小户型漂亮又实用,8×11米二层别墅分享
- 购房置业|为啥越来越多的人选小户型?背后是这5点原因
- 家居|这种户型的房子记得别买,有钱人白送他都不要,大家别买错了
- 客厅|售楼闺蜜偷偷告诉我,买房户型学会这7看,一准挑到好户型!
- 户型|住一梯一户的房子真爽!出电梯就进屋,公摊面积做玄关谁也管不着
- 住宅|内行人给出3个买房技巧不选大户型,远离高层住宅,不买低楼层
- 房价|为啥越来越多的人选小户型?背后是这5点原因
- 洗手台|阳台这样设计,洗衣机摆放整洁实用,不占用空间,适合大小户型
- 痛点|小户型的3大痛点,这样做实用性大大提升,而且很美观
