农村建房最在乎的无非就是颜值要高、功能要实用、造价还得低,每个人都建个好房子,一般来说家人多就要建个三层的别墅,一是房间多够住,二是宽敞,好不好打扫先放一边,先说房间不够的话,住当街吗。今天小编就给大家带来了几款独栋三层农村别墅,现在农村最流行的别墅户型,你确定不来看一眼吗?
户型图一:旋转楼梯挑空独栋二层简欧小别墅设计图
农村旋转楼梯挑空独栋二层简欧小别墅设计图,二楼布置三间卧室,让家中的每个成员都有各自的私享空间,大面窗采光效果好,居住舒适满意,娱乐室室让是家庭成员共同活动的空间,方便一家人联络感情。
占地面积:16.5m*11.6m,189.26平方米左右;
建筑层高:二层;
建筑高度:10.668米(含屋顶);

别墅效果图展示

别墅一层户型展示

别墅二层户型图展示
【 户型|独栋三层农村别墅图片,实用多一点,适合农村的自建房】设计功能:
一层户型:客厅、厨房、餐厅、土灶房、卧室x3、卫生间;
二层户型:客厅上空、娱乐区域、卧室x3、卫生间、阳台、露台;
户型图二:面宽10米独栋三层别墅自建房设计图纸
农村面宽独栋三层自建房设计图,复式客厅旋转楼梯,一层有两间卧室,南向主卧可用作老人居住,二三层均设置3间卧室,二层中间是一个客厅,适合自家人休闲娱乐;三层则是设置小书房,可用于主人日常办公或者孩子读书写作业的地方。西南角是一个开放式露台,可打造成一个屋顶花园,非常惬意,当然也适合用于农村晾晒粮食干菜。
占地面积:10.02m*12.76m,131.08平方米左右;
建筑层高:三层;
建筑高度:10.42米(含屋顶);

别墅效果图展示

别墅一层户型图展示

别墅二层户型图展示

别墅三层户型图展示
设计功能:
一层户型:客厅、厨房、餐厅、卧室(卫生间)x2、卫生间;
二层户型:客厅上空、小客厅、卧室(卫生间)x2、卧室、卫生间;
三层户型:棋牌室、书房、卧室(卫生间)x2、卧室、露台;
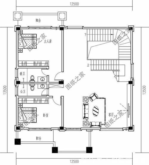
户型图三:四层独栋欧式住宅设计图纸
四层欧式独栋住宅设计图纸,多处阳台,不仅使得房屋造型更加丰富,同时也优化了居住感受,是一套适合大家庭居住的高品质别墅。
占地面积:12.5m*13.5m,138平方米左右;
建筑层高:四层;
建筑高度:16.43米(含屋顶);

别墅效果图展示

别墅一层户型图展示

推荐阅读
- 户型|房子要是有这些特征,就是“黄金户型”了,你家占了几条?
- 实用|占地97平,这样设计的小户型漂亮又实用,8×11米二层别墅分享
- 购房置业|为啥越来越多的人选小户型?背后是这5点原因
- 家居|这种户型的房子记得别买,有钱人白送他都不要,大家别买错了
- 客厅|售楼闺蜜偷偷告诉我,买房户型学会这7看,一准挑到好户型!
- 户型|住一梯一户的房子真爽!出电梯就进屋,公摊面积做玄关谁也管不着
- 住宅|内行人给出3个买房技巧不选大户型,远离高层住宅,不买低楼层
- 房价|为啥越来越多的人选小户型?背后是这5点原因
- 洗手台|阳台这样设计,洗衣机摆放整洁实用,不占用空间,适合大小户型
- 痛点|小户型的3大痛点,这样做实用性大大提升,而且很美观
