本案是一套142㎡现代轻奢风装修,空间家具整体采取深色搭配,加入一些鲜艳配色的细节软装,使得空间显得稳重又活泼有趣,彰显高品质的当代生活方式,休闲、轻松,符合年轻人的调性。
【 轻奢风|现代轻奢风三居-最自然的高级感】
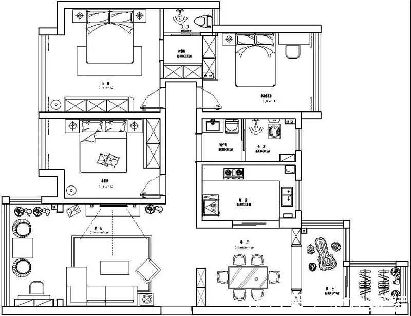
户型:3房2厅
大理石高级灰的纹理地砖,光线从阳台照射进明亮的客厅,一盆盆大小绿植点缀整个空间,让客厅空间显得自然优雅又活力舒适。

电视墙整体以大理石为基础,柜体与墙面色调协调、完美搭配,最后加上颜色明亮的盆景做点缀,让整个空间呈现出简洁大方的优雅视觉感。

灰色皮质沙发搭配鲜艳活泼的抱枕,沙发上方一组富有意境的装饰挂画,茶几的岩板台面上布置上金属小摆饰、杂志,为空间带来一种优雅与舒适的高级感。

胡桃木色的餐桌,结合棕色皮艺餐椅,配合造型灯饰凸显吊顶空间,与餐桌上的插花相呼应,使业主感受到明亮活泼的用餐氛围感。

主卧,选用淡蓝色作为空间的主色调,墙面与沙发凳、床品色彩统一而协调,白色定制衣柜轻奢优雅,无主灯的设计使得空间简约不失设计感。

次卧,舒适简约的搭配风格,大大的落地窗让房间光线通透,灰色床头搭素蓝色的枕头床单,整个空间显得格外的简约温馨而舒适。

面积:142平方
户型:3房2厅
风格:现代轻奢
推荐阅读
- 金融机构|一位房地产基金资深从业人员对近期形势的思考丨风云榜·大咖面对面?
- 购房置业|楼市风向基本明确,近两年准备买房的家庭,看看以下两个建议
- 别墅|给爸妈盖了小别墅,还宴请亲朋好友来喝酒,家人说从未这般风光过
- 装修|90㎡北欧风装修3室2厅,整体很舒适,榻榻米和书房绝配
- 安装|人生第一套新房,全屋家具进场晾着通风中,期待入住后的新生活
- 收纳|“去客厅化”最近很火,业主123㎡的家也跟风尝试,住起来确实舒服
- 装饰物|101平现代风,简单纯粹之美,在日光中静享退休人生
- 阳台|一家三代人住180㎡新家,全屋清新诗意风,越住越舒服,叫人羡慕
- 电视柜|90后夫妻坚持自律,新房住三年依旧一尘不染,装修风格引人学习
- 墙壁|通风三个月,终于入住了,晒晒,装修花12万,很满意入户玄关
