现在网上流传着这么一个段子,说是当代年轻人跟父母住,生活质量五颗星,但精神质量的话只有却一颗星,其实想想也不难理解,虽然吃穿用度什么的都被安排好了,可两代人不同的生活习惯,以及观念还是会造成一地鸡毛满天飞的现象,比如起床被子没有铺好,哪里没有收拾干净,哪里没有做好以称他们的心意等等,都会遭到各种嫌弃白眼,或者是数落唠叨,在这种背景情况下,确实有很多人希望与父母分开住。而今天要分享的案例就是如此,屋主一位事业有成的90后男主,因为受不了父母安排的相亲和各种逼婚,就贷款百万买下了一套35㎡的老破小,就是为了分开住。不过相比较这些,个人更喜欢的是他家非常富有特色的设计,即坚持将卧室抬高至半空,获得了储物空间翻倍的效果,真的太实用了!而这也是笔者分享这套案例的初衷,希望给广大小户型的朋友提供一个参考和借鉴。


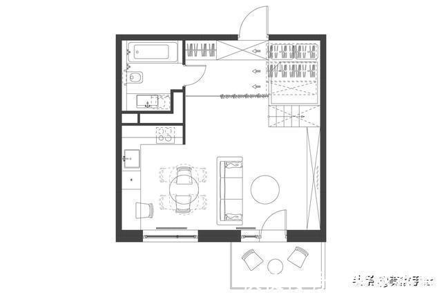
这是房子平面图,由于整体结构一目了然,这里就不再赘言了。


现在看实景。左侧可以看到入户门,由于正对客厅不利于隐私,屋主就安装了布帘作为隔断缓冲。储物方面,为了提高利用率,门顶上方定制了一排吊柜,加上图左做旧的成品柜,以及用于遮掩电表箱的镜子和下方的白色鞋柜,满足基本的收纳需求问题不大。


接着来说道此次的改造重点,也就是对面抬高至半空的卧室,对于北上广这种紧凑的老破小户型来说,这样可以充分盘活高度空间的利用率,不然实在没有多余空间定制衣柜,而像他家这么设计,至少下面的空间可以作为拉篮式的储物间。【 储物区|90后男主坚持把卧室抬高至半空,35㎡家储物空间翻倍,太实用】


右侧的话,我们可以看到电视墙,同样为了增添更多的收纳机能,定制了白色的整体柜,然后中间预留足够的位置安装电视机,如此既满足了影音方面的需求,干净利落的免拉手柜门看着美观大方的同时也不会压抑。


补充一下卧室内景,这种设计自然不用买床,铺上床垫即可。另外,这种狭小的空间有些人觉得压抑,但也有些人觉得这种浑身被包裹的感觉反而更有安全感。另外就是电视墙整体柜朝向卧室的一侧,预留了开放式的储物区用来藏书。

回到客厅。硬装方面,这里很简单,吊顶拉平配上白色的背景墙,显得简洁大方,当然软装家具也一样,无论深色的布艺沙发还是轻巧的木质茶几。其它的话可以看到通往阳台的玻璃门。
推荐阅读
- 广州市|晒晒我在广州10平米的出租房,改造后房东硬要给我减租金!
- 开发商|高层洋房混搭的小区,真的好吗内行人道优缺点,别等入住再后悔
- 别墅|1980年,农村娃考上北大全村凑路费,38年后每户获赠一栋别墅
- 北大资源|房子降价后想退首付,开发商同意却拖时间,湖北男子住进售楼部
- 房地产税|浙江杭州,花298万买房后,再花24万买车位,却得知邻居车位是送的
- 一字型|入住之后才发现:餐边柜的存在很有必要,看看你家装了没
- 楼市|安居客90%的房源是假的,背后暗藏套路
- 房价|今年不买房,5年后是“宝”还是“草”?马光远说透了
- 素雅|101㎡新房,简约素雅的装修格调,完工后的效果却也是出奇的好看
- 二手房|先刑后民!六六老师答疑,万达房产案没有结果?小熊诈捐没人问?
