▲周末宅家时光,两口子一起看看电影聊聊天,日子浪漫而悠闲。


▲靠窗位置摆上一堆盆栽绿植,与窗外的自然树木相呼应,让空间充满自然清新的氧气感;摆上休闲沙发与小茶几,坐在这里看书阅读或刷手机,晒晒太阳也是一种别样的惬意。
过道

▲过道有一个开放的书架,书籍刚好可以放在这里。
多功能房

▲电视墙后方做成多功能房,定制榻榻米上布置茶台,成为一个品茶闲谈的空间。偶尔工作加班,也可以在这里、来客人也可以作为临时卧室,功能多样实用。
卧室

▲简约舒适的卧室以灰色的墙面空间,床头墙挂上灰粉色配的装饰画;在浅木色的木地板基础布置一张实木床,床头加入布艺靠背,加上条纹床单,结合实木床头柜的设计,提供了一个简约轻松、安静舒适的卧室。

▲文竹与小灯具布置在床头柜上,结合淡雅的装饰画,也让卧室空间充满自然轻松的优雅与禅意气质

▲窗外的树木让室内有着一种丛林般的自然感,以木质飘窗台的设计,坐在飘窗上也拥有了一片森林般的体验。
卫生间

▲卫生间以灰色地面与墙面砖,墙上加入壁龛设计与吊柜,洗手盆靠窗安装,洗手盆下加入两层的收纳,方便澡盆等用具的收纳。
次卧

▲次卧以米白色的墙面,床头墙挂上两幅圆形的诗意山景装饰画,布置实木床、灰色皮艺靠背与灰色床单,整体空间也充满简约舒适的氛围感。入墙式的衣柜里加入了一列开放格,也是方便主人的收纳储物需求。

▲床头柜上淡粉色花瓶,与后方墨色的山景挂画相呼应,也在细节上营造出了一个简约的禅意气质。
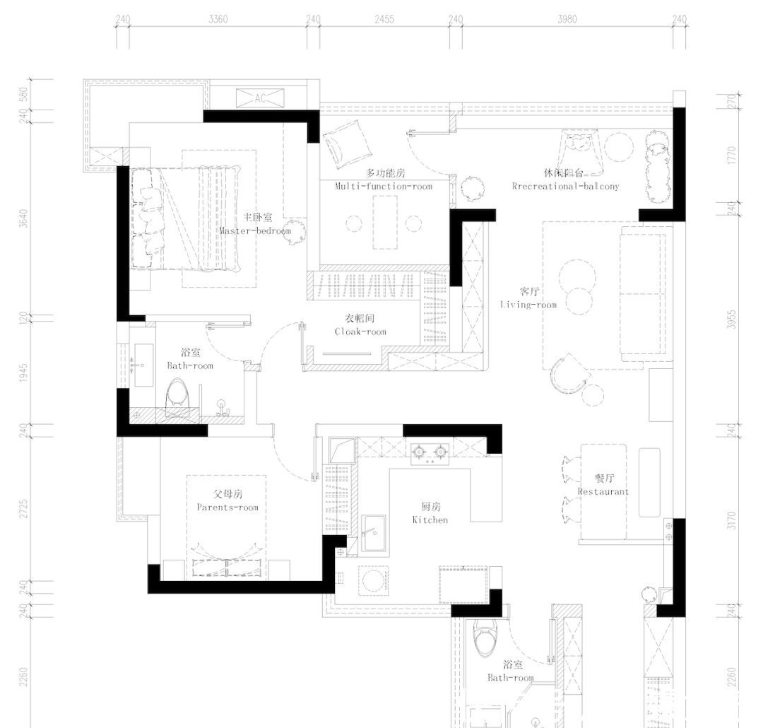
平面布置图

设计:
致物设计
,点评:设计馆
推荐阅读
- 法拍房|7381元/㎡!濮阳东方花园二期法拍房成交!
- 购房置业|洋房均价1.87万/㎡,新站区招商奥体公园新增备案
- MUJI风|121㎡日式MUJI风3室2厅,好的设计就是处处有惊喜
- 搭配|87㎡现代简约家居,一整面沙发墙做书柜,真心漂亮又实用!
- 墙面|110㎡简约风,花费10W做橱柜,全屋“空无一物”,太舒适了
- 空间|270㎡精装房软装设计,简洁、纯美的温馨轻法式风
- 贴瓷|69㎡小户型的“逆袭”,变身3室2厅阳光房,色彩搭配精致出彩
- 美式|贵族心态,轻松生活丨现代美式250㎡
- 销售金额|越秀地产2021年全年合同销售额1151.5亿元 完成年度目标103%
- 日常工作|85㎡3室2厅,辣眼睛老式装修改头换面,风格照搬都不会错
