今天分享一套建筑面积125平米的现代三居室案例,设计师在现代简洁的硬装基础上,加入了优雅、精致的软装,构造出了一个轻奢风的居住空间。还把入户的玄关和餐厅、厨房给连通,让整个空间显得更为宽敞明亮。

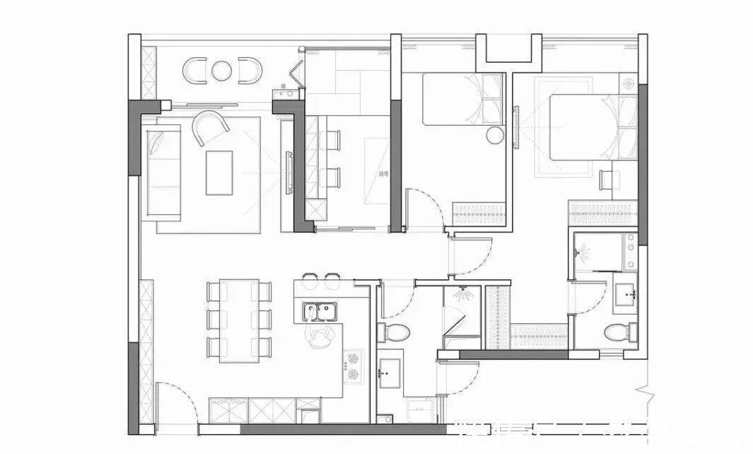
平面布置图
入户&餐厅

入户门的左右两侧都被设计师利用起来做个柜子,一侧是到顶的鞋柜,另一侧是餐边柜,冰箱也被整合进了柜子当中。
厨房

在餐厅的另一侧就是开放式的厨房,灶台被放在了靠近转角的地方,U字型的橱柜布局搭配餐厅和玄关的收纳设计,储物空间非常充足。
客厅
【 电视背景墙|125平三居室,入户和餐厅的收纳柜好能装,蓝色背景墙也超惊艳】

客厅的电视背景墙做了蓝色的布艺硬包造型,也和单椅、抱枕等相互呼应,浅色调的沙发和窗帘搭配白色的地砖,整个客厅显得格外明亮。

客厅的电视背景墙做了留空的设计,在电视柜上摆放一幅装饰画来代替电视,在弧形吊顶上加上了筒灯,给客厅带来不同的灯光。
主卧

主卧室的设计也比较简洁,整个墙面都刷上了白色乳胶漆,搭配蓝色系的床品和窗帘,在床尾还有着一个几何线条地毯,简洁而又大方。

卧室的床头背景墙上用挂画作为点缀,床头一侧摆放床头柜和台灯,另一侧摆放一个梳妆台,方便屋主每天化妆打扮。
儿童房

儿童房在简洁的背景色下,搭配了粉色调的床品和软装,儿童房把床靠着窗户来摆放,留出更多的空地给孩子玩耍,方便后续添置家具。
书房

屋主还在书房内做了一个榻榻米,这样工作累了也能直接躺在榻榻米上休息。书桌上方的书柜非常有设计感,让人感觉趣味十足。
卫生间

卫生间内通铺灰色调的瓷砖,搭配一个木质感的浴室柜和台上盆的设计,在淋浴区内还做了壁龛收纳,满足收纳的需求又不会占用本身就迷你的卫生间空间。
推荐阅读
- 背景墙|97㎡现代风,以时尚打造空间,以新颖突出特点
- 限购|哈市125家房企将列入重点监管范围,详细名单→
- 她家148平米,进门就被玄关迷住,不做吊顶跟背景墙,阳台超漂亮
- 乳胶漆|看她家装修,比样板房还漂亮,电视墙特别实用,值得做参考!晒晒!
- 餐厅|这套新房真有创意,客厅改主卧,电视背景墙后面设吧台!
- 乳胶漆|等买了房,就照他家这么装,全屋不吊顶,不做背景墙,越看越耐看
- 地台|丢掉电视柜?电视墙这样设计,很有意思
- 飘窗|学她家装修,电视墙很大气,过道打柜子太实用了,全屋都很喜欢
- 电视背景墙|这5款电视墙的设计,不仅拍照好看,还收获上万人关注,值得学习
- 玄关柜|去客厅化有多爽?摒弃电视墙打造整面书柜,双胞胎女儿房也是亮点
