50㎡的房子,既要做到完整的功能分区,又要显得空间宽敞不局促,这样的要求怎么看都有点异想天开吧!但当我看到她家的房子,才发现原来小户型还能这样设计,不仅可以「五脏俱全」,还能「宽敞通透」。今天,为大家分享的是一套面积约50㎡的「现代轻奢小户」,屋主是一位单身女性,喜欢自由开阔的居住空间。根据屋主的要求,设计师将户型进行了重新设计,将如此小巧的户型赋予了豪宅既视感,一起来看看吧!

//基本信息//户型:一居室面积:60㎡风格:现代轻奢

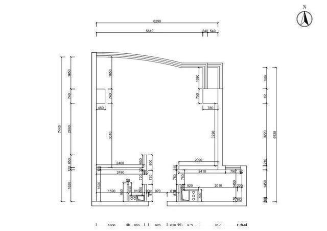
//原始户型//原户型结构是典型的框架结构,除了卫生间和厨房区域有隔墙,其它房间都没有隔墙。不过,这对于设计师来说也是好事,既可以少拆除一些多余的隔墙,也拥有了更大的发挥空间。【户型缺点】①厨房空间较小;②全屋仅一面采光。

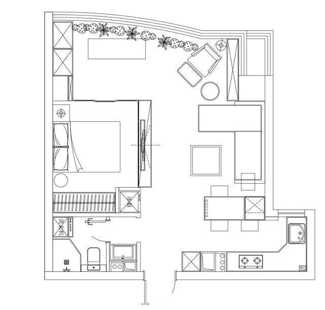
//设计亮点//①拆除厨房隔墙,做开放式结构,增加空间感;②用黑框玻璃分隔卧室空间,提高卧室采光;③保留独立阳台空间,观景视野更加开阔。

>>>厨房、餐厅与客厅,采用一体式设计对于小户型来说,每一平米的面积都至关重要。为了提升整体空间感,设计师拆除厨房原有的隔墙,打通厨房、餐厅与客厅之间的界限,做开放式设计。

▲灰粉色橱柜设计,高雅有质感设计师选择用灰粉色做橱柜设计,既契合了整屋的轻奢风格,又能在视觉上划分出厨房空间。

▲意式岩板背景墙与餐桌,完美搭配餐厅背景墙选用了意式岩板结构,并延伸出来做四人位餐桌,腿部则用透明玻璃做支撑,让整个空间看起来有一种高级的轻盈感。

▲L式沙发设计,搭配100寸电视,极致享受设计师用两张双人位沙发,打造半包围式客厅格局,与阳台空间进行区分。值得一提的是,客厅里摆放了一台100寸大电视,屋主在家就能享受极致的观影体验。因为整个空间设计得非常合理,所以这么大尺寸的电视房子客厅,居然毫无拥挤感。

>>>近6米长独立阳台,享受豪宅视野全屋仅一面采光,既是缺点,也是优点。这一面落地窗近6米长,拥有无敌观景视野,考虑到这一点,设计师保留了独立的阳台,也能为室内带来充足的自然光源。

>>>巧用玻璃隔断做卧室,颜值高、空间大卧室的入口在阳台旁边,两侧用玻璃隔断代替水泥隔墙,这让室内的采光率增加了不少。


推荐阅读
- 春节|如果能重来,阳台一定“9不装”,并非迷信,是过来人的经验教训
- 灰尘|家中阳台不要装推拉门了,装这种更实用个性,不得不感叹太聪明了
- 花花草草|10款高颜值阳台,你该看看!
- 她家148平米,进门就被玄关迷住,不做吊顶跟背景墙,阳台超漂亮
- 铝合金|封阳台不要傻傻用铝合金窗,聪明人都装这种替代,懊悔才发现!
- 占地方|家里阳台不要装推拉门了,不实用又占地方,聪明人都装这种代替
- 装修|越来越多人阳台不装推拉门了,如今流行将阳台包进客厅,太聪明了
- 阳台上|装修时当“甩手掌柜”可不行,这5处细节,再忙也要去把关验收
- 阳台|央行降息了,你能省多少房贷利息?
- 组合柜|在阳台打了一组洗衣机组合柜,邻居们看到了,表示非常羡慕
