伸展感|236㎡大平层,黑白灰诠释极简主义
本期业主一家人口众多,但是长期居住在外面,只偶尔过年、还要节日回乡小憩一段时间。因此从空间的本身形态、结构以及功能布局上,设计师没有进行大刀阔斧的调整,在设计时重点考虑空间的耐久度和易打理,让业主只偶尔回家每次也能眼前一亮。


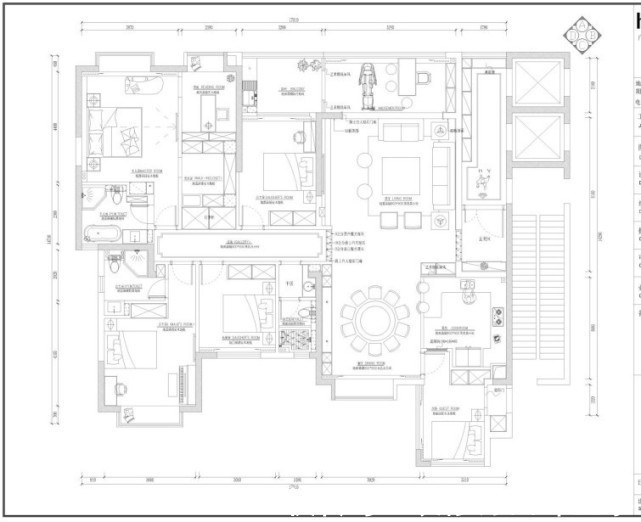
1、房屋整体色调打造上追求现代时尚,开阔的空间里黑白灰色系大面积铺陈,中间一点亮色的点缀,让略显沉闷的空间鲜活起来。定制的灰色护墙板白色瓷砖的组合取代墙面,深化了空间的同时也便于打理。
2、中西餐厨一体化的设计,日常的美食烹饪和茶水间都可以兼顾。既增添了视觉效果,又增加了几分生活情
3、卧室的整体风格转换,床头背景和窗帘的粉色系搭配,彻底扭转整体空间氛围,让卧室变得更加温馨柔和。
客厅

黑白灰极简的空间中,跳跃出一抹明媚的奶黄色,随着阳光逐渐洒落,室内愈发清简开阔。

电视背景墙柜的设计整个视觉观感都立体了,各种装饰品使得空间语言浪漫、高雅流动着整个室内。

定制的灰色护墙板白色瓷砖的组合取代墙面,深化了空间的同时也便于打理。舍弃含糊繁琐的设计元素,让空间大面积的留白,仅仅在飘窗一角做了一个挂墙书柜,对于界面的视觉处理,连贯统一,彰显极简大气空间感。

客厅以暖灰色为基调,彰显高雅精致的空间话语,时尚雅致的家具和灰色瓷砖的搭配,让人的视觉焦点一下子就为吸引了,而几何图形的圆形顶灯,又将视觉焦点不自觉的往上。就这样上下之间,来来回回,各有亮点。

整个室内高度是固定的,但是视觉宽度是可以延伸的,将公共区域打造成一个分割线,把客厅和餐厅、厨房划分为两个区域,让整体连贯、视觉通透开阔,空间伸展感大大提升。
餐厅

橙色餐椅搭配规则圆形白色顶灯,侧方还有一排酒柜,加上餐桌上透明玻璃瓶的黄色插花,给简约的餐厅在用餐时又增加一丝自然气息。
厨房
厨房定制L型橱柜中西厨合并设计,满足了两代人的用厨需求。嵌入式冰箱的设计,方便拿取。

中厨拥有完善的厨房设备,使其各种菜系都能轻车熟路的驾驭;西厨吧台的设计让中式厨房空间小的缺点得到填补,日常的无油烟烹饪和茶水间都可以兼顾。既增添了视觉效果,又增加了几分生活情趣。
主卧


根据主体色调的配搭,卧室背景墙做了粉色乳胶漆处理,与紫色被单仅仅跟随。就好像翩翩起舞的少女,羞涩、纯粹。床尾电视的设计让平时休闲时光更添趣味。

推荐阅读
- 现代风|168㎡现代风,带着浓郁的归属感与愉悦感
- 施工者|不管家多大,装修时做好这12处细节,美观与舒适并存,幸福感提升
- 混淆感|146㎡北欧经典白色三居室,诠释令人心醉的优雅
- 灰尘|家中阳台不要装推拉门了,装这种更实用个性,不得不感叹太聪明了
- 简单感|现实的平衡取舍,才是生活之道!143平现代风格设计欣赏!
- 木纹板|装修案例欣赏:小北欧风格的居家设计,简洁的同时又不失温馨感!
- 香港|好住 全新体验!住在景区里是什么样的感受?
- 全屋|164m2现代简约全屋简洁大方,有质感!
- |远嫁3000公里,看到农村婆家给我准备的婚房,我感觉我快要哭了
- 楼层|为何劝一楼带院的高层住宅不要住过来人说出真实感受!太实用
