装修不再选择单一的布局,成为很多人的选择,在空间里结合自己的生活方式,打造不同的功能设计,让居住更加便利,更加舒适。下面这对夫妻,
客厅里不要茶几和电视,77平方米的家真是越住越大
,或许说这是因为空间太小的无奈之举,但出来的效果真的把人深深迷住。


看完他们的新家后,真的发现
温馨舒适的空间绝不是豪装,反而越简单越能打动人。
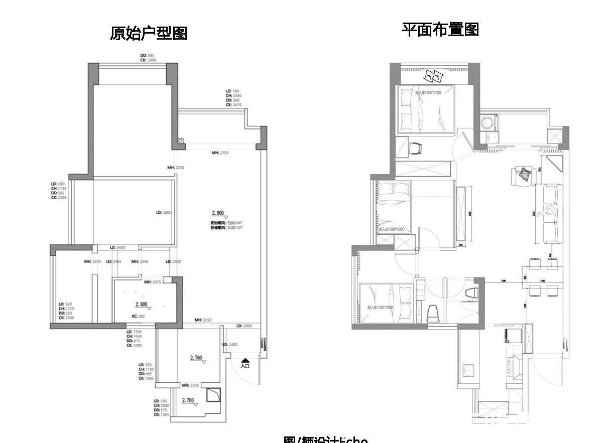
户型结构与布置说明
原始空间
77平方米
有两间卧室,还有一个赠送的迷你卧室,每个空间不大,但小也有小的装法,常住人口是一个二胎家庭,父母偶尔过来帮忙带小孩,所以需要有三间卧室,还要充足的收纳和开阔明亮的空间才能满足这一家人的基本需求
。
改造亮点

图/栖设计Echo
原来只有3米跨度的客厅,非常压抑,一家人加上父母共6人在客厅里实在太显挤,
所以压缩卧室,扩大客厅
;
一卫改成两卫
,虽然其中一个卫生间没有淋浴区,但拥有两个马桶,可以缓解早上高峰时的压力;
这样一改,空间功能更加丰富,再通过装修,
干净清爽的空间实在太叫人喜欢了。
玄关

和所有家庭一样,入户的左手边是鞋柜,中间镂空+藏灯的设计,美观又实用。但与之不同的是,这个鞋柜底部
留了两层开放格
,以前见到的鞋柜都是一层,而他们家设计成两层,使用起来更加方便。
最低下一层是懒人踢,回家后的鞋子直接踢到里面,而上面一层开放格,用于收纳家居鞋,不用开柜门就可以直接拿取,非常方便。
“越住越大”的客厅

来看客厅,如今的效果你很难想象原来这个家只有77平方米(客厅只有不到30平方),开阔的空间有50平方的视觉感。这是因为他们做到了这几点:
不要茶几和电视:
对于二胎家庭来讲(两个小孩都很小,其中一个刚出生),需要一个开阔的空间,来增进家人间的互动,而客厅是最好的区域,但奈何原来的面积有限,想要住得舒适,势必要放弃一些功能。所以他们
不要茶几,也不装电视
,茶几只会增加杂物的堆放,电视不常看,买了也是浪费,倒不如直接去掉,让空间显大。

选择简约的家具:
为了增加舒适感,地面铺着木地板,方便在地上爬行或者一家人就地而坐。而且家具也是小脚款,简约的沙发离地十几公分,当小朋友的玩具不小心滚到下面,很快就能找到,同时也方便清洁工具自由穿行。

靠着角落的边柜,复古大方,扩容了空间收纳。
利用玻璃增加室内开阔感:
没有装电视,墙体用一整片的大玻璃窗来取代,视觉得到很好的延伸,让空间更显通透。
就这三点,让客厅效果焕然一新,不再是纯粹的三件套布置,取消传统的单一布局,让客厅成为多功能空间,当然没有装电视机装了隐藏式的大幕布,坐在地上或者沙发,都能观影。
推荐阅读
- 灰尘|家中阳台不要装推拉门了,装这种更实用个性,不得不感叹太聪明了
- 客厅|参观向华强和陈岚的豪宅,房子层高太矮了,住着不压抑吗
- 购房置业|为什么买房不要买靠边的房子?这些问题要注意,开发商不会告诉你
- 收纳|去邻居家参观才知道,卫生间不装柜子这样设计,防潮耐脏好清洁
- 垃圾桶|家庭主妇:厨房地柜不要全打满,空一格更实用!后悔我家装太早了
- 收纳|打柜子不是越多越好,6个地方别随便装,多装一个都闹心
- 汽车|即使价格便宜,这6类房子也不要购买,很多问题都无法解决
- 亮点|等了6个月终于能晒晒新房了,都挺满意的,客厅是最大的亮点
- 烂尾楼|有3类房子,未来千万不要购买,内部人士透漏:未来最少贬值20%
- 武汉|男友花130万在上海买20㎡新婚房,闺蜜劝我不要嫁,太丢脸了
