农村自建房,卧室需要独立卫生间吗?
有的人说需要,因为卧室有个卫生间更加隐私,使用起来也方便,着急的时候也不用排队等着了。有的人说不需要,因为卫生间有异味,和卧室在一起心里怎么也不舒服。其实,农村自建房是个个性化的事,要不要卫生间还得看自己的需求,今天带来的6套图纸,有设计独卫的,也有公卫的,满足不同家庭需求!
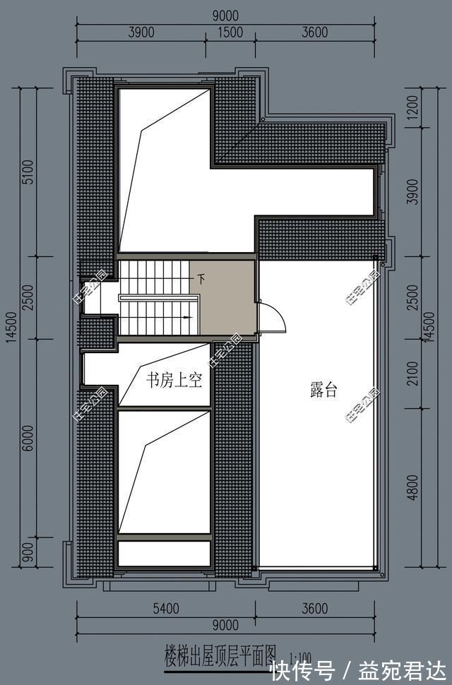
【 自建房|回农村自建房,厕所应不应该设置在卧室内这6套户型给你答案】第1套:9米面宽布局合理,两层半户型带屋顶露台,实用美观,毛坯造价29万起

占地尺寸:9.24m*14.74m
占地面积:132㎡
建筑面积:274㎡
总 高 度:9.55m
建筑情况:共设3室 3厅 2厨 3卫 1茶室 1书房1储藏室 1阳台 1露台



第2套:豪华欧式别墅,挑空客厅配旋转楼梯,圆你别墅梦,毛坯造价37万起

占地尺寸:17m*8.69m
占地面积:130㎡
建筑面积:358㎡
总 高 度:12m
建筑情况:4室 3厅 4卫 1厨 1起居室 1活动室 3阳台 1露台



第3套:三代同堂也够住,起居独立,生活互不干扰,毛坯造价45万起

占地尺寸:12.24m*15.2m
占地面积:176㎡
建筑面积:516㎡
总 高 度:13.7m
建筑情况:共设8室 6卫 4厅 2起居室 2厨 4阳台 1玄关 1棋牌室 1书房



第4套:大落地窗才够透亮,享受型住宅,适合8、90后,毛坯造价35万起

占地尺寸:12.64m*12.64m
占地面积:136㎡
建筑面积:328㎡
总 高 度:13.35m
建筑情况:共设6室 3厅 5卫 3书房 2阳台 1露台



推荐阅读
- 房产证|婚前财产婚内可以自行处理吗
- 房价|房地产要变回支柱产业,你知道吗?
- |最高暴涨70万!宁波二手房市场即将回暖?
- 中间商|出租房屋可以不用中介,打造自助门店,同样收租金
- 安置|上城区紫阳街道加速回迁安置 焕新美好家园
- |“最惨购房者”相关话题登热搜榜首,到底是怎么一回事?
- 中海珑悦府|中海珑悦府好不好?置业顾问从项目现场发回新组图
- 武汉市自然资源和规划局|确定了!白沙洲将新添一所高中
- 施工|面宽均为12米的两栋自建房,简单施工易,造价25万上下
- 融创中国|融创手握1600亿现金,回笼资金超300亿元,孙宏斌有牌可打了?
