对于许多年轻人来说,大城市是他们梦想开始的地方。无数人怀揣着梦想,在大城市里打拼,可房价却成为了许多人的“绊脚石”,有一部分人为了梦想,选择租房度日,也有一部分人选择买小户型的家,似乎有了家,才算在这座城市扎根。今天分享一位90后小伙,与大多数在大城市打拼的年轻人一样,@严先生大学毕业后,就在北京白手起家,靠自己打拼,买了一套16㎡的小宅,屋子虽小,甚至连张床都没有,他们一家三口人却说住得舒服。
▼房屋概要以及户型布局这是一套位于北京的小公寓,套内面积仅有16㎡,屋子虽小,却比租房好太多了,打拼了好几年,@严先生也算是带着妻儿过上了有房的“理想生活”。仅有16㎡的小公寓,如何容纳一家三口人,又如何让每一个家庭成员都住得舒服,这是本案设计的难题。
▼改造前的小公寓与其说这是一套房子,不如说,就是一个房间+一个卫生间,改造前的小公寓,户型布局极为简单,如同一个16㎡的小盒子一般,小而拥挤。好在层高将近4米,这位设计师的改造设计,提供了便利。
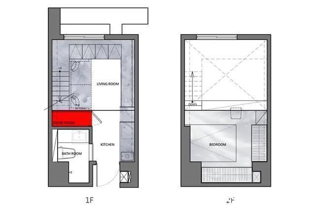
▼户型改造方案尽管房屋小到仅有16㎡,但原始户型结构还算合理,并且还拥有一个小阳台,足够满足洗衣晾晒。而设计师的改造思路在于:4米的层高。利用现有的层高,为空间置入了一个2层空间。改造后的户型,由1层变为2层,且厨房被移动到过道空间,高挑空的客厅空间,空间布局紧凑却足够温馨,一起随我来看看。
▼改造后的厨房空间入户之后,可以直接看到厨房空间。在厨房空间之中,设计师以一字橱柜为焦点,打造了一个集厨房和洗衣机为一体的空间,同时还置入了冰箱、油烟机,功能区域井井有条的同时,还拥有丰富的开门柜和抽屉,满足日常厨房收纳。
▼从客厅空间,望向过道中的厨房,自然清新的原木墙面,还有白色烤漆的橱柜门,在吊顶射灯的衬托之下,小巧却简洁明亮,拥有小家的温馨感。
▼改造后的客厅空间客厅面积尽管不是很大,但是将近4米的挑高空间,一扫了空间的局促和拥挤感,搭配简洁干净的大白墙,再利用嵌入式的灯带+射灯,整个客厅空间素简之余,多了一份通透之感,视觉效果也显得舒适。
▼客厅里的收纳设计而电视柜一直沿着窗户,延伸到楼梯下方,形成了一个超大的U字型柜体,既能满足客厅的生活杂物收纳, 而这些柜体又能充当卡座,虽然只有一组两人座的沙发,但是家里来访客人的时候,还是拥有卡座可以坐人。
▼悬浮式的楼梯而通往二层空间的楼梯,以悬浮式的设计为主,看起来就像是悬浮在半空的阶梯一般。实际上,是采用了5mm的铁板做成的踏板,一头嵌入墙体之中,另一头则以钢索加固。
▼看似轻飘飘的悬浮式楼梯,却拥有充足的平衡性,而且从天花板上垂落而下的钢索,也能充当扶手使用。
推荐阅读
- 屋主|56㎡小户型老房改造,小而美的设计!
- 棚户区改造|开盘预告|合肥又有6盘要加推,均价1.39-2.54万/㎡全都有
- 旧城改造|5万亿旧改来了,20年以上的老房子再度吃香?这两类人有福了!
- 棚户区改造|对房地产态度有新变化, 央行等释放了哪些信号?
- 王石|低价捡漏一套28㎡小公寓,花5万块整体改造,这效果都舍不得出租了
- 购房置业|夫妻俩大胆改造老房,坚持把3房改为1房,过于舒适了
- 棚户区改造|预制板楼房成危房?旧改政策实施,预制板楼房还会被拆除吗?
- 智睿|老装修升级计划 篇九十五:魔都二手房全屋灯光改造,给自己一个明亮智能的家!
- 负增长|未经业主同意,新房被二次改造!南充女子:给我恢复原样
- |农民们请注意:农村要开始“大改造”了,你的房屋会有新情况
