一直以为,装修一定要非常豪华或者非常大气,这才是真正的装修。也一直以为,电视墙,吊顶是家的必备,也是必须要做的项目。原本以为大白墙不是那么好看,但是自从看了屋主他家才知道,原来我这些想法是错误的!屋主他家这套新房,在考虑储物功能和舒适度的同时,全屋刮大白,没有粉刷其他的颜色,没有安装吊顶,更不做电视墙。可能说到这些,大家都觉得这样的效果不好看,但是实际上,这样的效果极简又耐看,以后入住后才深有感悟,家里这样装修过的话,才会感同身受。虽然装修过程比较漫长,一家人看到完工后的效果,都非常期待入住,太喜欢了,给大家晒晒,希望能给大家带来好的装修灵感!(图源屋主:Chion_Fong)户型图

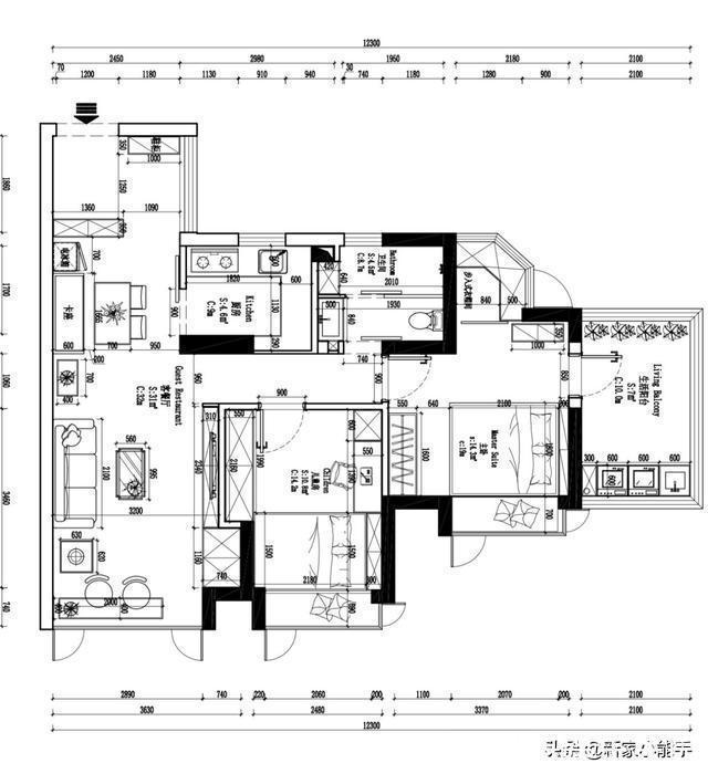
原始户型图两居室的房子,建筑面积80平,属于比较常规的户型了!入户与客餐厅之间没有隔断,一眼看到底,缺乏一些隐私感。并且卫生间特别小,而且主卧室不是那么方正,基本户型缺点就是这些了。

改造之后的户型根据需求,为了使得卫生间面积更大一些,把厨房和卫生间共用的墙体打掉,并且往厨房区域推了油烟管道的位置,可以扩大卫生间区域;入户大门设计了玄关,既可以起到入户隔断的作用,同时增加储物空间;全屋设计无吊灯,挂大白墙,扩大了全屋的空间感。入户玄关


设计了一个上下两层玄关鞋柜,可以提供蛮不错的储物空间,还可以挡住入住直接看到客餐厅直到阳台的尴尬,显得更有隐私感,而且还可以划分空间,形成一个独立的玄关。鞋柜不单单仅仅收纳鞋子,还包括日常的纸巾或者其他的杂物,中间摆放一些装饰,让人进来眼前一亮。白色的柜门搭配白色的柜体,真心不错,特别美,给人的感觉温馨极了。餐厅


餐厅与客厅以顶面的横梁和冰箱作为隔断,划分两个空间。餐厅空间有限,布置一张方形餐桌,以后入住了,更灵活可以根据心情,调整餐桌的摆放位置,不管是横竖都可以很随意。餐桌上套着餐布,更显得有家的味道,真心不错。布置了一张长方形的凳子,方便坐着用餐。客厅

客厅与阳台打通,增加了很多室内面积,显得空间宽敞很多。考虑到实用性,屋主安装了非常实用的风扇吊灯,可以有三种灯光颜色可调节,尤其是暖色灯光或者白色灯光,可以根据自己的心情,选择不一样的灯光颜色。风扇灯,既可以起到照明的作用,可以当风扇使用,真心太棒了。

客厅是不做电视墙,直接刷了白色的墙体,显得非常干净,非常简洁。电视机直接挂墙上,可以为电视柜节省一些空间,更安全一些。电视柜底下可以放扫地机器人,刚好可以把空间利用起来,真心不错。右边放着小猫柜,相当于小猫的窝,还可以当展示柜使用呢。

推荐阅读
- 大门|房子大门万万不能朝这地方开,师傅看了摇头,怪不得我家越住越穷
- 洗衣房|这三款农村四合院设计图让不少城里人羡慕,父母看了也欢喜
- 万科|看了塔吊安装和拆卸的费用,难怪烂尾房开发商直接跑路啥都不管了
- 华侨城|CO-LAB丨极简主义自然酒店
- 乳胶漆|等买了房,就照他家这么装,全屋不吊顶,不做背景墙,越看越耐看
- 石材|2022年室内家装新趋势,极简风或成“冷门”?
- 装置物|卫生间别再傻傻装置物架了,聪明人都这样做,老师傅看了点头夸好
- 户型|通过后期户型改造可以大大地提高生活品质,看了她家方案,学习了
- 白色系|她家玄关太好看了,一进门就被美到,喜欢这样务实不花哨的装修!
- 简约|超现代极简别墅top50中最经典的款型
