这栋位于墨西哥的住宅则是将「简朴」风格发挥到极致的项目。
由事务所 Taller HectorBarroso 设计,将浅土颜色的泥砖与木材完美融合,营造出别具诗意的居住空间 ▼

建筑外立面就能感受到这种静谧的空间感 ▼
室内充满了一种原始的气息,泥砖与木材不加修饰的美感体现得很好,家具也同样如此 ▼


在走廊的尽头,能看到独特的艺术摆饰 ▼


主卧室的窗户则是设置了百叶窗,更好地过滤光线 ▼

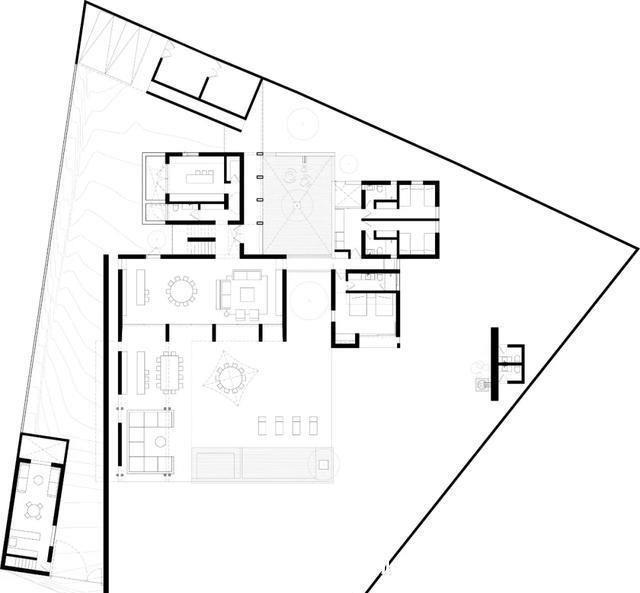
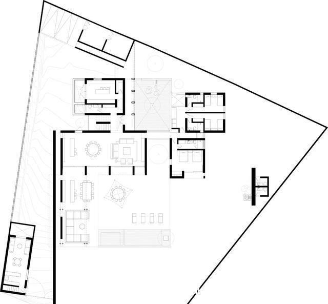
平面图



04.
Casa Sierra Fría

同样位于墨西哥,同样也是用砖,但这栋房子不同的是色彩。它由 Esrawe Studio 设计,房子的外立面采用的是纯粗的红砖材料。
大门的设计非常独特,采用了旋转门,一眼望去能够看到楼梯和中庭的设计 ▼

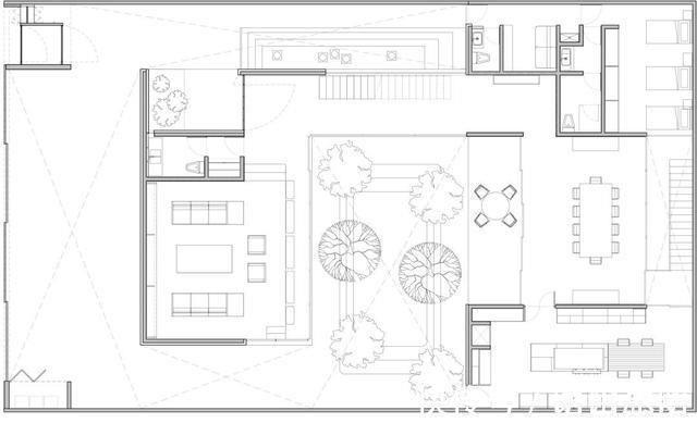
房子围绕着中庭的庭院景观而建,并用玻璃窗模糊内外空间的分隔 ▼

入口处的右方通过下沉式的阶梯可以来到一个独特的休息空间,柜子的设计很有意思 ▼

一边楼梯边上则是用搁架组成了一个具有储藏和展示作用的前面,楼梯的设计也是相当简 ▼

楼上的走廊与楼梯空间之间用玻璃窗相隔 ▼

书房定制的书桌与墙面搁架都有着最为简单的设计语言,视觉中心非常明确,并且具有极简主义带来的沉静感 ▼

卫生间则是能看到大理石材料,灰色的大理石与绿色的植物形成一种补充和对比,同时还设置了玻璃天窗 ▼

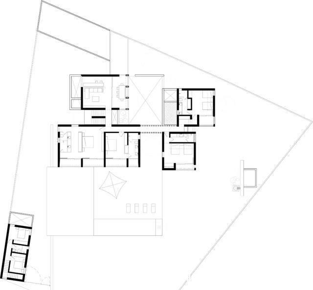
平面图

推荐阅读
- |最高暴涨70万!宁波二手房市场即将回暖?
- |“最惨购房者”相关话题登热搜榜首,到底是怎么一回事?
- 上海市|上海今日10盘同日摇号,市区4盘日光!最高认购比392%
- 郑州|买房月供曝光!郑州最新平均工资8694元,撑得起房贷么?
- 三栋镇|最高8.48万/亩!要征115亩地!涉及三栋、河南岸!
- 建房子|面宽11米, 进深16.5米的农村三层别墅, 前后有花院还带车库, 完美!
- 别墅|参观亲戚上海的豪宅,别墅硬是住成农村房,真是糟蹋了好房子
- 购房置业|今年起,农村老家的老房子,统统按照“新规”处理,子女提前知晓
- 修建|精选10套三层户型图纸,占地面积均不足百平,尤其适合新农村修建
- 增值税|距离朝鲜最近的民居,歌声都传过去了,看看是啥样?
