业主喜欢中式风格的稳重,又喜欢简约风格的时尚自由。整体家具与色彩搭配要简约时尚又不失稳重。
客厅几乎是整个家庭当中的最核心的部分,该区域的装修主要以开放性为主。多种风格元素的运用有助于塑造客厅的氛围。沙发应该算是客厅的重点家具,除此之外,一个好的电视背景墙也是必不可少的。

安静朴雅的色彩搭配,简洁时尚的金属线条,贴合居者对生活的需求、对美学的向往,赋予品位生活细腻的优雅。

整体设计着重于设计背后所表达的居住体验,以传统的湘绣与手绘交织出湖色的空灵。

本案装饰用材的选取以趋于自然的色泽构筑,将空间情调归于安宁与晴暖
餐厅讲究所谓的“秀色可餐”,作为主人,无论是整体布局,还是软装搭配,都需要追求细节的完美。倾心打造的餐厅不仅凝聚了主人的心血,也会留给朋友一个深刻的印象。
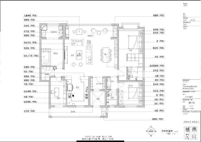
【 中式|180平现代中式四居室,既有中式的稳重,又有简约风的时尚自由】

材质包括铂晶、实木,金属、石材与不锈钢

而设计风格于简约中糅许东方元素,打造具有精睿品质的理想之所。
新时代的厨房从来少不了洗碗机等解放劳动力的“神器”,这些电器在厨房设计之初就必须被充分考量,就算一时没有考虑购买,也要预留出位置和插座,以防不时之需。

多种材质并携掩映斜阳,墙面便投映出反射光线

推荐阅读
- 饱和度|173㎡轻奢新中式,古典和现代的碰撞,唯美浪漫!
- 卫生间|129平现代美式三居室,打造出一个舒适又温馨的美式家
- 三居室|118平现代风三居室,一个简单而纯粹还原生活色彩的家
- 郑州|买房月供曝光!郑州最新平均工资8694元,撑得起房贷么?
- 石家庄|144平的面积,无人值守棋牌室,这是如何做到的?
- 简单感|现实的平衡取舍,才是生活之道!143平现代风格设计欣赏!
- 她家148平米,进门就被玄关迷住,不做吊顶跟背景墙,阳台超漂亮
- 修建|精选10套三层户型图纸,占地面积均不足百平,尤其适合新农村修建
- 南通|拍卖成功!江苏南通一处197平住宅192万成交!
- 灵魂深处|全屋定制案例|儒雅新中式,展现灵魂深处的东方情怀
