有钱买房,却没钱装修,大概是许多人都会面临的“囧状”,尤其是新婚夫妻一族,在新房装修上,大多会选择“穷装”。但穷装就一定难看么?本期分享一套仅花了7万装修的北欧风之家,入户简单感十足,但是越住却越温暖,随我一起来看看这个极简风的家。

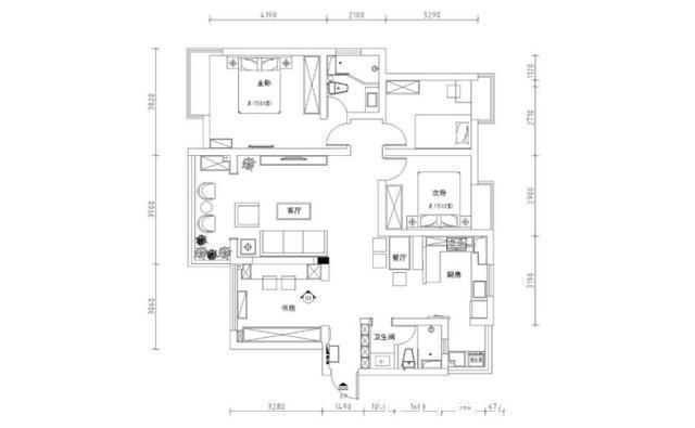
▼设计图纸这是一套102㎡的家,在平面布局上设置了三室一厅,因为是高楼层,因此每个窗户外还安装了防护网。同时在风格设计上,以北欧为风,融合极简元素,打造了一个干净又简约的家,入户的第一眼便有简单美。

▼简约玄关入户玄关的设计,更显简约之感,一侧是灰色的乳胶漆,另一侧则是白墙,同时加入了一组悬空式的玄关柜,方便收纳的同时,也让家更显温馨感。一幅挂画将蓝天白云的姿态,赋予在玄关之中,入户感素净又雅致。

▼雅致客厅而步入客厅之中,可见一派浪漫的氛围,蓝色的电视背景墙,搭配原木电视柜,还有琴叶榕等植物的点缀,整个空间自然又有情调。客厅与阳台之间的隔墙,被打通之中,让空间功能区域更显开阔通透之感,同时一组白色收纳柜,被置入在阳台空间,增强了空间功能感。

▼客厅细节因为是穷装,因此客厅去吊顶式的设计,就连地面和墙壁上都没有太多的装饰,仅以材质为主,整个空间给以清新朴素的氛围。而家里的灯具、沙发以及各种配饰植物,都是网购回来的,搭配上也显得十分合理。

▼餐厨设计餐厅与厨房之间,以一道半墙进行隔断,这个半墙也算还是一个小小的吧台空间,让两个空间之间,缩减了距离,视野也更为开阔。浅灰色的餐厅设计,与白色的厨房形成了鲜明的对比,也让家更有层次感。

▼主卧设计主卧空间的设计更显简约明了,一组网购的灰色大床,搭配灰蓝色的乳胶漆,还有定制式的衣橱,让整个空间显得质朴又明朗,小家也能如此温馨。


▼小小的飘窗空间,还有角落里莫兰迪绿的柜子,以及天蓝色的窗帘,都让主卧有了温暖的点缀。

▼放眼主卧空间,并没有精巧的设计,也没有豪华的点缀,但是色调与家居的完美融合,让整个空间似乎更具一派温馨之感。

▼女儿房设计女儿房的空间设计,更显清新浪漫之感,卡通感十足的元素,还有曼妙的色调,都为家里的小公主,打造了一个完美又梦幻的成长空间。

▼次卧设计次卧空间的面积较小,除了飘窗之外,还就加入了一组衣橱设计,整体与空间感形成了统一之态,十分拥有雅致感。
推荐阅读
- 薄荷蓝|走进她家,才知什么叫美观与实用并存,全屋温暖又清爽,太舒服了
- 插头|老公花了100块钱把家里插座装成这样的,再也不用拔插头了,真是太机智了
- 硬装|90平米硬装花了8万,自己特心疼,还好朋友都夸装修的漂亮
- 断房|有人手握3套房却卖不掉,还有157万人选择“断供”,楼市怎么了?
- 广州市|广州这座新城房价7万+,却住得密密麻麻,游客:好像穿越到了香港
- 柜门|人生中的第一套,80㎡花了24万,不豪华,却被邻居夸赞装修界的榜样
- 恒大|恒大上月交房3.7万套,少于承诺的3.9万套
- 上海|上海新房均价破7万!豪宅成交大增,过半楼盘拼积分
- 异形|141㎡二手房改造,这样如秋般温暖的家,太舒适了
- 中产家庭|预计新增2400万中产家庭,除去吃喝年入7万才达标,超45岁也不算
