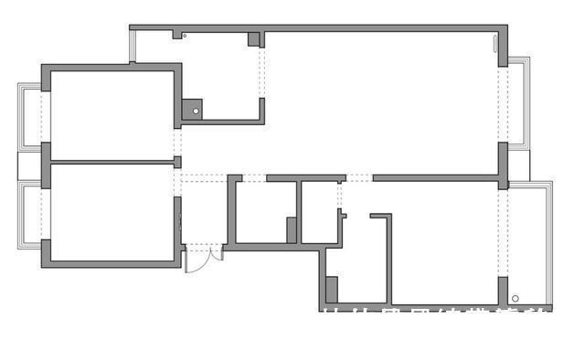
很多人在给新房装修时,都会考虑墙面的造型该如何设计,比如常见的端景墙、电视墙、餐厅墙、床头墙面等等。事实上,给墙面做造型,确实能提高整个空间的效果及档次。但对于主张实用的家庭来说,这也不是必须的。毕竟给墙面做造型,装修成本也会随之增加的。比如本案中的屋主,就希望以实用性来定位新房。因此,不仅放弃了墙面造型设计,甚至客厅连沙发也不打算配置。或许这样处理,会让人感觉太过简单,但其实通过巧妙的色彩搭配,以及各种元素利用,反而让空间显得更加清爽实用。平面结构图

新房套内面积103㎡,三室两厅的户型,屋主一家三口。对于新房的期待,除了要有足够多的收纳空间,也希望能给孩子营造出舒适、宽敞、清爽的居住环境。所以在空间风格的定位上,也是以北欧风为主的。而从原户型来看,整体也较为方正,且采光十分不错。因此,在空间改造上,也只是做了些微调整。平面方案图

整个空间布局,将原有的三个房间都保留了下来,两间为卧室,一间为书房。从而在满足基本生活需求的情况下,也能方便父母过来小住。而在墙体结构改动上只有两处。一处是借用书房的空间,为儿童房规划出了一组内嵌式衣柜。另一外则是将主卧里的卫生间做了缩小处理,使空间看起来更加的工整。玄关

玄关处的色彩搭配,看起来十分的清爽。墙面刷上低饱和度的绿,地面铺上实木地板,再搭配上原木元素,一进门就奠定了北欧小清新的基调。鞋柜与换鞋凳设计在右边,可以解决入户收纳需求。而正对面端景墙上的圆形装饰,则凸显出了一抹禅意。餐厅

原木饰面的餐桌居中摆放,既不会影响到空间动线,用餐时也十分的宽敞。餐边柜采用上下分体的结构来设计,既实用又弱化了柜体的厚重性。同时,柜体内嵌上烤箱设备,还实现了部分西厨的功能。

餐厅另一面墙体,也就是主卧与卫生间之间,则是做了一面磁性黑板墙,不管是用来记录生活,还是给孩子乱涂乱画,都非常的实用。并且该黑板墙的存在,也起到了丰富空间的作用。客厅

客厅放弃沙发配置,并给地面铺上一块超大的地毯,则让孩子有了舒适的玩耍区,并方便了亲子互动。由于该位置是主要活动区,杂物比较多,所以采用延伸的方式,设计一组收纳柜,既与餐边柜形成了一体,也方便了收纳。

电视墙的设计与沙发墙一样,都是放弃了墙面造型,并配置了一组柜子。而像这种放弃常规功能的处理,也保留了空间的灵活性。说得通俗一点,就是等到孩子长大了,该空间也是可以很方便地做二次布局调整的。厨房

厨房延续了外面的原木元素,让空间保证统一。在橱柜设计上,由于空间尺寸比较尴尬,所以不仅部分橱柜做了切角处理,右边的灶台深度,也做了一定的限制,从而让空间充分利用起来。同时,厨房内部还配置了一台洗衣机。主卧室
推荐阅读
- 装修|乔迁新房3月以泪洗面!当初的不理智,连犯15个极品装修坑!作孽
- 装修|淋浴房还可以坐着洗澡,一开始很不理解,装修后才发现太实用了!
- 施工者|不管家多大,装修时做好这12处细节,美观与舒适并存,幸福感提升
- 灰尘|家中阳台不要装推拉门了,装这种更实用个性,不得不感叹太聪明了
- 心塞|5个月装修一套房,硬装让我喜出望外,结果家具一上全废了!心塞
- 客厅|参观向华强和陈岚的豪宅,房子层高太矮了,住着不压抑吗
- 装修|空调外机万万不能这样挂墙,若不是师傅提醒,我家都装错了!
- 洗头|崩溃现场:装修的10条坑,我都替你踩扁了,请你一定要避开
- 购房置业|为什么买房不要买靠边的房子?这些问题要注意,开发商不会告诉你
- 抽油烟机|婆婆抠出新境界,5万装修婚房还带家电,如此寒酸真让人不想嫁了
