细节控的家有多“强大”?那必须得收纳到位、颜值在线,还能充分将缺点转为优势,就像本期案例这样,你很难挑出毛病。本期,甜茶为大家分享的这一套120㎡的家装案例,看似装修简洁,实则处处藏着“小心机”。讲真,我几乎是全程张着大嘴巴看完她家装修,惊叹设计师的想法独到,有太多值得学习的地方。

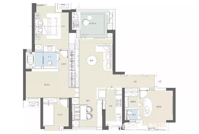
▲装修实拍图//户型分析//先来一起看下这套户型,面积约120㎡,格局还算方正。优点:有四个卧室,承重墙少。缺点:每个房间都比较小,部分区域采光较差。//设计亮点//设计师根据屋主一家三口的居住需求,结合户型的优缺点,对其进行了以下改造:①拆除屋内部分非承重墙,打通公共区域之间的界限,提升空间感和室内采光;②厨房与餐厅之间开“室内窗”、做吧台,增加交互性;③主卧与儿童房之间做收纳间,省略走廊空间,提高利用率。

▲装修平面图—■玄关■—一走进玄关,就能感受到满满的惊喜感,“白色 原木色”的搭配,给人一种温馨的归属感。玄关左侧是嵌入式玄关柜,用来存放鞋子和杂物;右侧墙面做了“柜格 挂钩”的组合,可摆放装饰品或放置随身小物品,很有生活氛围感。

▲玄关实拍图—■客厅■—客厅面积不大,但收纳功能满分。设计师利用电视背景墙,做了整面高柜,兼具书柜、展示柜、收纳柜和电视柜等多重功能。柜子的中间预留出电视机的位置,搭配白色移门,可根据需求推拉开关,使用起来非常方便。

▲客厅实拍图客厅内的软装,都围绕着整屋装修风格,浅灰色沙发、原木时钟、北欧风圆桌和装饰画等,为家里增添了一份温馨的生活气息。

▲客厅实拍图客厅与阳台之间,有了一扇小窗户,设计师把窗框换成了原木材质,更贴合整体装修风格;并从底部延伸一部分做置物隔板,用来放装饰品。

▲客厅实拍图—■餐厅■—餐厅做了时下非常流行的卡座设计,可容纳4-6人同时用餐。卡座的后面为嵌入式收纳组合柜,造型独特,既有储物功能,又能起到装饰空间的作用。

▲餐厅实拍图考虑到卡座的位置,可能会影响到屋主从柜内拿东西,所以设计师在柜子里做了“抽拉装置”,只需轻轻一拉,就能拿到想要的东西,太方便了!

▲餐厅实拍图餐厅与厨房之间,开了一扇小窗户,并做了吧台的设计,很有“深夜食堂”的感觉,提升了生活成员之间的互动性。

▲餐厅实拍图—■厨房■—厨房入口处是烟道的位置,为了减少这个“大柱子”带来的尴尬,设计师围绕它做了木质移门和侧面收纳,化缺陷为亮点,超棒!

推荐阅读
- 混淆感|146㎡北欧经典白色三居室,诠释令人心醉的优雅
- 厨房|一居室也能如此精彩,展现单身人士的高端生活,享受生活的乐趣
- 地板|160㎡四居室,玄关比我家卧室都大,这才是真正的低调奢华有内涵
- 床头柜|95后姑娘的“穷装”卧室火了,环保又精致,软装的力量真强大
- 卫生间|129平现代美式三居室,打造出一个舒适又温馨的美式家
- 三居室|118平现代风三居室,一个简单而纯粹还原生活色彩的家
- 石家庄|144平的面积,无人值守棋牌室,这是如何做到的?
- 她家148平米,进门就被玄关迷住,不做吊顶跟背景墙,阳台超漂亮
- 薄荷蓝|走进她家,才知什么叫美观与实用并存,全屋温暖又清爽,太舒服了
- |龙吟师傅教你在卧室找到自己的桃花位
