现在很多人想要逃离城市回到乡村,好好享受生活,现在的农村建新房,已经不是只为了有个栖息地,能够遮风挡雨就足够了的;而是好好享受生活的地方,所以很多年轻人对房子的外观和户型有了更多的需求了。今天小编就给大家介绍三款农村三层自建房平面图,建一栋大气好看,多少兄弟姐妹都能够住下。
三层自建房图一:漂亮的农村三层小楼房设计图
图纸介绍:漂亮的农村三层楼房设计图,简单大气,带车库,在有条件有能力的情况下,大多数人都会在故乡建个像样的好房子,故乡是我们永远的眷念。
占地面积:14.3m*11.5m,一层占地150平方米左右;
建筑层高:三层;
建筑高度:12.7米(含屋顶);

别墅效果图展示
设计功能:
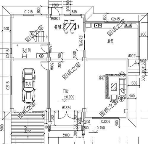
一 层:客厅、厨房、餐厅、卫生间、车库(不需要车库可以做成卧室);
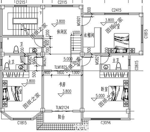
二 层:休闲区、卧室(带卫生间)×2、卧室、书房、卫生间、阳台;
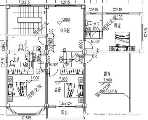
三 层:休闲区、卧室(带卫生间)x2、客房、卫生间、大露台;

别墅一层户型图展示

别墅二层户型图展示

别墅三层户型图展示
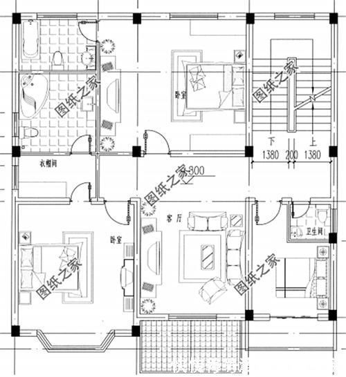
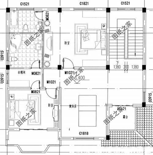
三层自建房图二:三层独栋别墅设计图纸
图纸介绍:户型为三层独栋别墅,带地下车库,色彩鲜明,本户型采用平屋顶与坡屋顶相结合,外观、造型简洁大方,色彩明快,整体平面布局紧凑、功能分区合理,房间尺度设计适宜,空间利用率高。
占地面积:12m*12m,140平方米左右;
建筑层高:三层半;(带地下车库)
建筑高度:11.7米(含屋顶);

别墅效果图展示
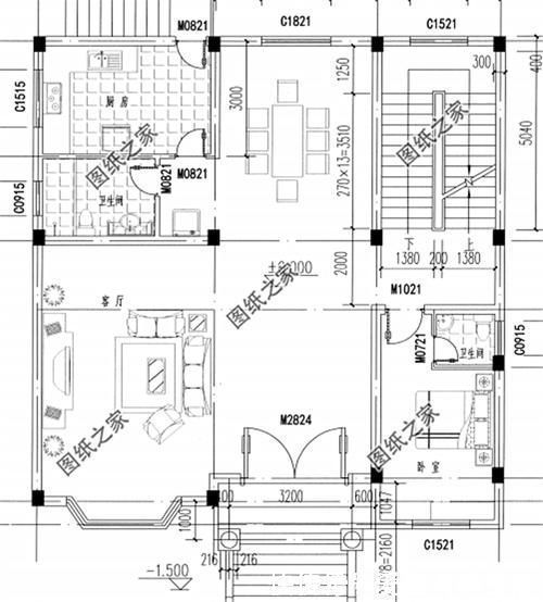
设计功能:一层设有客厅、餐厅、厨房、卫生间、一卧室带卫生间;
二层设有客厅、卧室2间、卫生间、游泳池、衣帽间、1儿童房带卫生间;
三层设有卧室2间、卫生间1间、健身房、衣帽间、一个大露台;

别墅一层户型图展示

别墅二层户型图展示

别墅三层户型图展示
三层自建房图三:150平左右新农村自建房设计图
图纸介绍:本户型为150平左右新农村自建房设计图,含效果图,外观经典、好看,户型实用、房间多,空间利用高。
占地面积:11.88m*12.88m,150平方米左右;
建筑层高:三层;
建筑高度:12.03米(含屋顶);

别墅效果图展示
户型设计:
一层户型:玄关、客厅、餐厅、厨房、棋牌室、主卧(带卫生间)、卧室、卫生间;
二层户型:客厅、主卧(带卫生间)、主卧(带衣帽间和卫生间)、卧室x3、卫生间、阳台x2;
推荐阅读
- 建房子|面宽11米, 进深16.5米的农村三层别墅, 前后有花院还带车库, 完美!
- 别墅|参观亲戚上海的豪宅,别墅硬是住成农村房,真是糟蹋了好房子
- 购房置业|今年起,农村老家的老房子,统统按照“新规”处理,子女提前知晓
- 修建|精选10套三层户型图纸,占地面积均不足百平,尤其适合新农村修建
- 上海市|2022年农村人要“享福了”?实行按户补贴,跟村民们的房子有关
- 洗衣房|这三款农村四合院设计图让不少城里人羡慕,父母看了也欢喜
- 购房置业|农村建新房就选这套四层别墅,占地100多平,8间卧室人人都有地睡
- 别墅|土豪农村盖大别墅,人人羡慕,如今却成为全村人眼中的大笑料
- 李沧|农村建房不能超过几层?面积是怎么规定的?农村建房的流程及条件一览
- x2|三层现代风格别墅 140平米,清新脱俗,是当下年轻人最喜欢的设计
