占地尺寸|农村建房没有堂屋,那还怎么住人8套带堂屋户型30万就能盖( 二 )

户型七:现代开放三合院

占地尺寸:20.24m*15.48m
占地面积:240㎡
建筑面积:447㎡
总高度:10m
建筑情况:共设7室3厅8卫1厨1堂屋1衣帽间6阳台1外廊
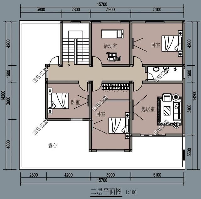
平面设计图:


户型八:美式田园小雅宅

占地尺寸:11.7m*13.2m
建筑面积:154.4㎡
建筑情况:共设6室3厅5卫1厨1堂屋1书房
平面设计图:


看完这8套户型,你最喜欢哪一套呢?
关注本号,1000套农村自建房户型图欣赏。
推荐阅读
- 建房子|面宽11米, 进深16.5米的农村三层别墅, 前后有花院还带车库, 完美!
- 别墅|参观亲戚上海的豪宅,别墅硬是住成农村房,真是糟蹋了好房子
- 购房置业|今年起,农村老家的老房子,统统按照“新规”处理,子女提前知晓
- 修建|精选10套三层户型图纸,占地面积均不足百平,尤其适合新农村修建
- 上海市|2022年农村人要“享福了”?实行按户补贴,跟村民们的房子有关
- 衣柜|定制柚木衣柜,衣柜的黄金尺寸一定要知道
- 洗衣房|这三款农村四合院设计图让不少城里人羡慕,父母看了也欢喜
- 购房置业|农村建新房就选这套四层别墅,占地100多平,8间卧室人人都有地睡
- 别墅|土豪农村盖大别墅,人人羡慕,如今却成为全村人眼中的大笑料
- |占地8.38X9.8米,小宅基地怎么修
