项目介绍
项目:尚枫澜湾
地址:常州
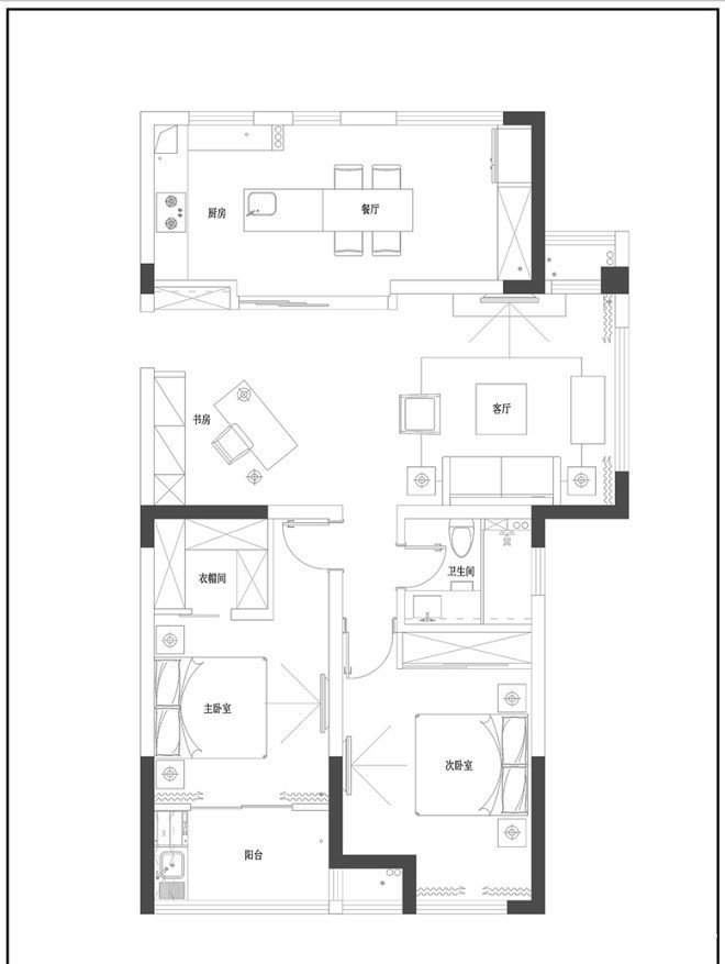
面积:110㎡
风格:美式混搭
业主需求
业主是个一对青年夫妻,对生活的品质要求比较高,要求精细化,而且对家的环境细节要求比较严格,追求高品质的生活情调,希望这个家可以有个高大上的感觉。
在与业主沟通过后,决定以美式混搭的装修风格,将一个100多平米的小房子打造成高端大气温馨的家。

客厅的空间设计以纯净的白色作为主色调,墙面做了浅灰色的半护墙,突出的线条感使空间更加有层次感,搭配复古的墨绿色丝绒沙发,墙上挂上几副简约画,色彩搭配遥相呼应,相互衬托下更加醒目。

电视背景墙没有做过多复杂的处理,白色的蜂窝纹电视柜设计,有一种别致和个性感,方便收纳的同时,桌面摆放一金色的摆设,让整个空间更加有质感,简约的吊灯,空间的时尚感提升一个档次。

白色的大理石纹理茶几,搭配金属质感的支架,富有肌理感的双色窗帘,黑白的地毯遥相呼应,给整个空间加强了色彩层次感。

书房的设计是采用的开放式的,增强整个空间的联动性,不会因为隔断破坏空间整体的美感。墨绿色的坐垫,金色的支架,白色的桌面,复古雕花的镜子,这里既可以沉浸知识的海洋,也可以作为梳妆来用,旁边的柜子,也方便储物,储藏零食,也可作为小小的休闲区来用。

厨房也是做的开放式设计,白色的墙面搭配灰色的柜子,黑色厨具,整个视觉开阔明亮,橱柜简约的线条给空间勾勒出简约的格调。

餐厅与厨房是在同一个空间里,整体的色调沿用了白色的基础色调,白色的大理石搭配几张粉色的餐椅,金属质感简约的吊灯,让整个空间有一种温暖而又高雅的感觉,弥漫着浪漫的气息。


卧室的打造墙面是选用的墨绿色,给人一种复古,追忆往昔的感觉,金色条纹的床架,流畅简洁,搭配金色的简约小吊灯,时尚就是一个轮回,墙面挂上一副肖像画,给整个空间带来一种文艺气息。

次卧的打造则是以浪漫温柔为方向,浅粉色的墙面,搭配软包背景墙,精致的小吊灯,床边摆放白色的床头柜,当放下身心躺在床上,这将是最柔软的时刻,轻柔的旋律与大自然的气息融合,颇具现代浪漫主义情怀。

【 墙面|云合设计——100㎡的房子如何装修出高大上的感觉?】
推荐阅读
- 万科|首付745万的房没了还要赔500万!买二手房签合同时注意这8个细节
- 棚户区改造|开盘预告|合肥又有6盘要加推,均价1.39-2.54万/㎡全都有
- 卫生间|什么才叫好户型?来看看这5个标准,你家房子符不符合?
- 修建|精选10套三层户型图纸,占地面积均不足百平,尤其适合新农村修建
- 住房公积金|什么才叫好户型?来看看这5个标准,你家房子符不符合?
- 地产|宜和宜美与金科服务强强联合,创造“定制精装房”新赛道!
- 洗衣房|这三款农村四合院设计图让不少城里人羡慕,父母看了也欢喜
- 墙面|过道能''挤''出空间 5种方式帮你充分利用每一寸,档次蹭蹭上涨
- 宁波|珠海商业不足后遗症:商业综合体扎堆,243万人需要多少商业体?
- 购房置业|180混凝土拌合站
