为什么农村都爱盖欧式别墅?其实不是觉得欧式好看,而是建传统的中式太费钱了,而且一般的农村朋友也没有那么大的宅基地。所以在农村建传统的中式合院基本成了土豪专享。今天小编给大家推荐一款欧式别墅,占地百平小面宽,极致高雅雍容华贵。别墅设计:占地百平小面宽,高端欧式别墅,极致高雅雍容华贵

清新淡雅的欧式别墅,无论是立柱还是窗框设计,都是那么的秀丽文雅。奶白色的墙面与蓝色坡屋顶无形中透露出一股高级感。别墅多穿多露台的设计采光和通风都是极好的。一栋这样的豪宅隐于乡间,是多么享受的一个居所啊。

传统的飞檐翘角,木质围栏、窗柩,很好的保留了欧式韵味,使得别墅外观有一种简洁大气的美感。门头选用方柱贯穿至顶层,方柱自身的大气配合竖向空间拉伸增强入户仪式感。一层通过拱形门洞配合欧式经典线脚展现精美和大气,并柔和线条。雨棚上方作为阳台,利用石膏护栏和空间变化让建筑整体性更好。

主体配色选用相对淡雅的颜色,整体颜色变化较少,通过空间展现层次感。屋顶部分选用较深的蓝色,与下方浅色形成对比,在碰撞中突出建筑。接下来我们来看看别墅的平面设计图。
【 雍容华贵|别墅设计占地百平小面宽,高端欧式别墅,极致高雅雍容华贵!】
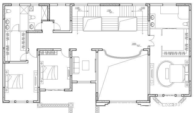
一层平面设计图:厨房、客厅、餐厅、卧室、卫生间。客卧公用一间卫生间,其余空间作为通道和室外阳台使用,西南角露台业主可根据日后需求进行规划。
推荐阅读
- 屋主|56㎡小户型老房改造,小而美的设计!
- 餐边柜要做成什么样子才实用又好看看看这几款餐边柜设计
- 收纳|去邻居家参观才知道,卫生间不装柜子这样设计,防潮耐脏好清洁
- 建房子|面宽11米, 进深16.5米的农村三层别墅, 前后有花院还带车库, 完美!
- 别墅|参观亲戚上海的豪宅,别墅硬是住成农村房,真是糟蹋了好房子
- 简单感|现实的平衡取舍,才是生活之道!143平现代风格设计欣赏!
- 木纹板|装修案例欣赏:小北欧风格的居家设计,简洁的同时又不失温馨感!
- 家庭成员|卫生间进门洗漱台,中间马桶,里面淋浴,怎么装?有哪些设计方案?
- 洗衣房|这三款农村四合院设计图让不少城里人羡慕,父母看了也欢喜
- 鞋柜|我家无玄关的玄关设计超赞!左邻右舍来参观,看完都要回家照着装
