
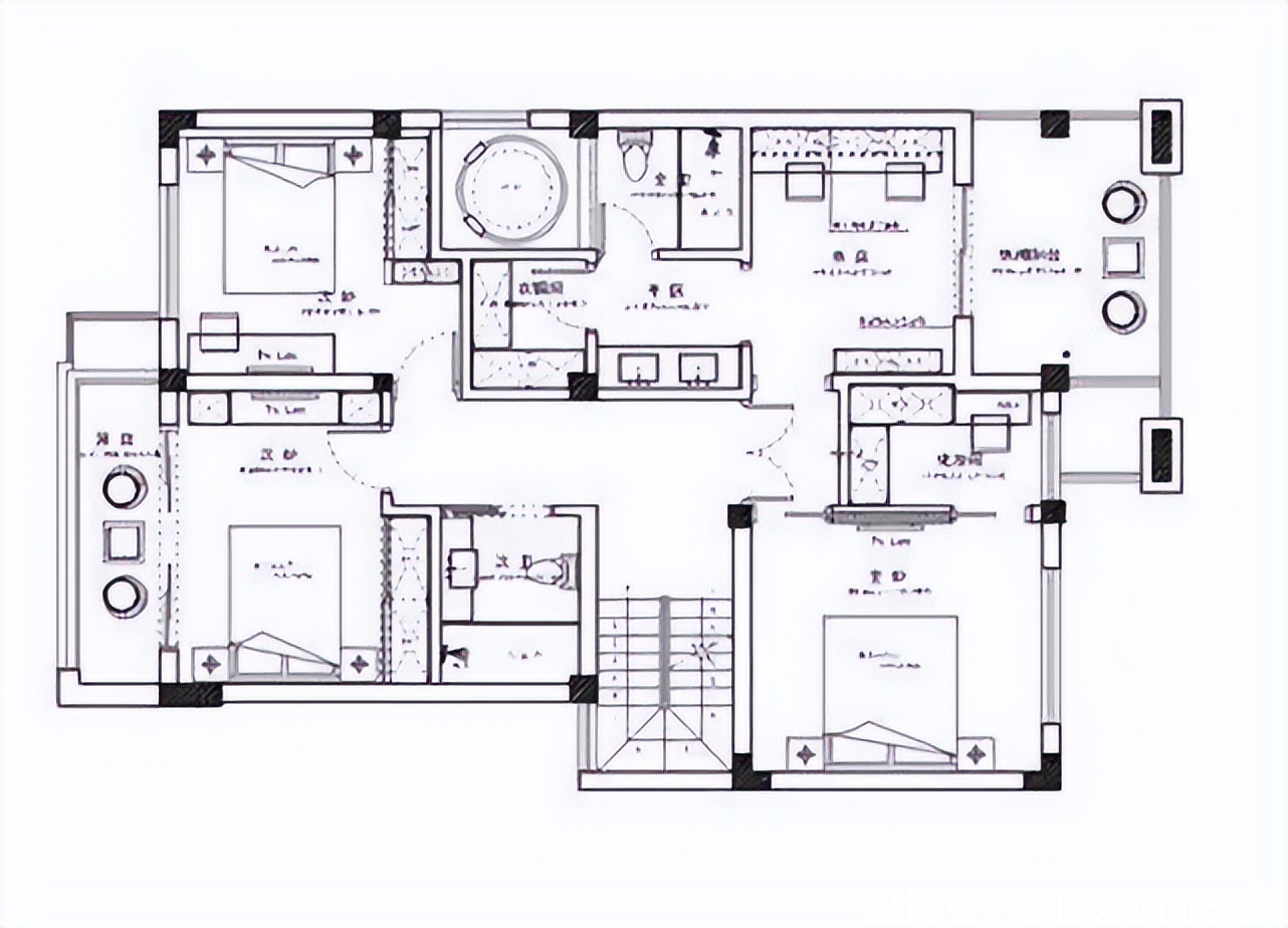
【户型图】屋主将空间分配为一主卧、一儿童房,一书房,厨餐厅一体,节省空间,简化了的欧式装修风格,但是又秉承了传统欧式的精致、华美,同时糅合简约主义的爽朗、利落,使整个空间更加清新舒适,又不失品味。
推荐阅读
- 装饰|156平现代风三居室,清新高雅,给人感觉有档次也十分舒服
- 深圳市|深圳租户认为房东拆迁自己也应有份,要求分自己一套七十平米价值三百多万的房子才肯搬走。
- 别墅|如果房价真能跌到3000到5000/平的话,我们的生活会有哪些不一样
- 氛围感|80平现代三居室,无主灯设计突出客餐厅氛围感和层次感
- 挂历|84平北欧风三居室,餐边挂历一副特别的画
- 慵懒度|180平现代风四居,将小阳台都扩展到客餐厅中有280㎡的既视感
- 武汉|103967平米!大兴这镇迎来好消息
- 二手房|6.3折!北区网红盘惨遭拍卖,起拍价低至9532元/平的现房竟没人要
- 杭州|杭州楼市爆料:临平区成立了,房价涨了
- 二手房|90%得房率 1000万买150平 东坝是真洼地
