这个180平根据业主对朝向、空间延伸感及储物等需求,将客餐厅原有的小阳台都扩展到了客餐厅中,使客餐厅的给人的视野感远远超过整体户型280㎡的视角,让人对整体户型空间的遐想远超过实际户型面积。

全屋采用无主灯形式,让顶面更加简洁干净,视觉上显得层高更高,光线更加均匀,配合了一些灯带可以更加有层次的利用光线,适当增加一些壁灯、落地灯、台灯、小吊灯等,既能补充光源,又可以营造多种照明氛围。

设计上采用了现代简约风,让忙碌一天的业主回到家能摆脱掉所有繁琐,以轻松简约的方式享受到回家的舒适之中。
【 慵懒度|180平现代风四居,将小阳台都扩展到客餐厅中有280㎡的既视感】
根据客户需求,将原有带阳台的房间缩小,扩大了主卧的空间,并改造成了敞开式的储物间,大大提高了业主对衣帽间南北通透,通风采光等需求。房间使用了很多智能化的设备,比如电动窗帘,感应灯,业主在回家之后能享受到极大的舒适慵懒度。

次卧的女儿房也是设计色调温馨,并且有独立的书桌兼化妆桌,让功能布局更加的的广泛,简单和色调的搭配让空间视觉更加的宽敞。

因为无主灯形式,因此餐厅需要一个主灯来点缀一下,设计师将所有门套的高度加到了,从视觉上更强程度的增加了层高的高度。

业主家里一家四口,两个小男孩的感情很好。餐厅是比较传统的设计,很正。有句老话说“吃饭大过皇帝”,说的吃饭是生活中很具仪式感、很重要的事,所以要“吃端碗,停放筷”。

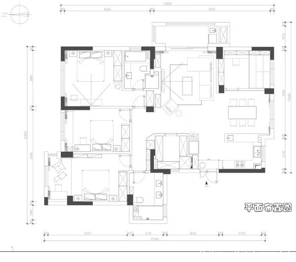
?户型图
推荐阅读
- 湖州|反转!湖州楼市周度成交四连涨!
- 豪宅|1800万的房子秒光!为什么楼市越差,有钱人越买房?
- 克而瑞|房产市场“新规”下,预售制度或将面临“取消”?部分省市已试行
- 贷款额度|精装房盘点!哈尔滨这30盘可“拎包入住” 6字头起购 拿捏了!
- 自如|定了!成都公积金新政出炉!最低首付款比例、贷款额度都有变
- 公积金|广东清远:7月至年末住房公积金贷款额度上调至最高60万元
- 压缩机|老装修升级计划 篇一百一十二:梅雨季节湿度大,618盘点德业电器哪些除湿机值得买
- 制度|海南“土地超市”平台正式上线 已完成3个首单
- 贝壳|【贝壳成都科普】什么是房地产经纪人员职业资格制度
- 商住|毛坯限价9180元/㎡!泉州这块商住地将于6.23推出...
