一套108平米的房子受到了大家的广泛推崇,原因是这套房子设计新颖独特,功能间齐全,能满足日常生活的方方面面。本套房子的设计风格采用的是美式风格,户型是标准的三居室。房子装修完只花了12万。接下来,我们一起来看看这套房子的效果图。
业主是一位阿姨,老公在少年宫教书法课,有个女儿已经出嫁,周末带孩子回家小住,功能上满足两个常用房间+一个功能性完整的书房,满足女儿带外孙回家休息,和叔叔平时写写字,看看书,比较喜欢简美,整体以暖色调为主。

【 套房子|108平简美风设计暖色调为主,悬空的鞋帽柜太方便了】沙发背景用简化的手法、现代的材料和加工技术去追求传统样式的去除繁杂的造型,保留美式风格家具轮廓特点。两侧选用点光源搭配,使色彩层次发生不同的变化。

利用简单的太阳线修饰,增加背景墙的层次,既美观又不会为后期打扫卫生浪费太多精力,满足客户安逸的生活需求

采用有客厅沙发背景相同的处理手法,墙面乳胶漆调色,保留美式家具餐桌!
卧室的装修并非只是摆设一张床这么简单的事情,在卧室装修中,有很多需要注意的地方。现在的卧室,室内功能越来越完善,舒适度也越来越高,基本可以满足主人的任何生活需求。

增加床头壁灯,以满足客户对于不同灯光的需求
餐厅装修风格是让很多人头疼的问题,其实流行风格每年都会变化,选择自己最喜欢的即可。我们在餐厅装修的时候可以简单装饰,像装饰画、挂盘都可以使用,不需要花费多大力气。如果餐厅的桌椅家具都买齐了,就差点不知道怎么弄了,这种做法是最适合的。

门口的一个鞋柜,悬空的鞋帽柜,增加空间的灵动性,书房连接餐厅部分利用墙体宽度增加整体储物空间

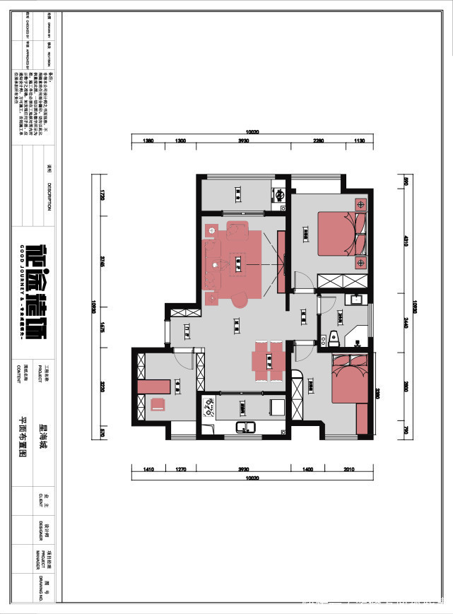
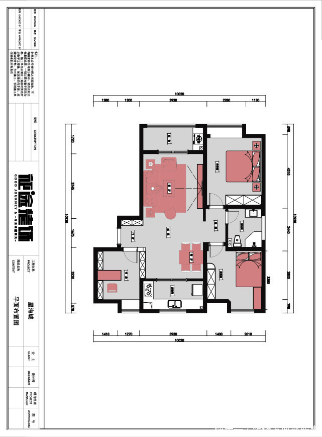
108平-简美风格-平面布置图

108平-简美风格-原始结构图
推荐阅读
- 小区|海口龙华区八灶棚改片区最大回迁小区交房 共有回迁安置房2800余套
- 购房置业|澳洲又一建筑巨头陷入财务困境,将进行危机谈判!4000套房在建中
- 房贷利率|农村将迎来“统一搬迁”,选房子还是选钱?这3类房子没有补偿
- 5月15日北京期房住宅认购47套 网签38套|每日网签| 网签
- 商品住房|2022年4月商品住房成交价格略降 住宅成交3681套
- 栖霞建设|第一套房怎么买?内行人都这样选房!
- 碧桂园|买对一套房,胜过十年忙,2022年十条买房建议,希望对你所帮助!
- 别墅|弟弟成为中国首富,许家钦靠弟弟公司工程赚了2套别墅,如今全卖了
- 在异地买房子是否可以把户口迁过来
- 房价|还记得那位一口气买了十套房,月供百万差点破产的女孩吗?她现状成这样
