
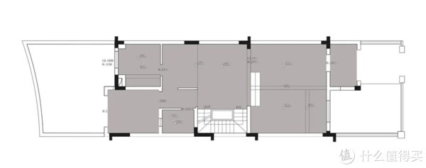
一层原始结构

一层平面布置
改造重点:
1.空间虽较规整,但采光是一大难点,将一楼设计为开放式区域,垫高餐厨区,划分客餐厅,隔而未断;
2.餐厅过于狭长,细分为餐厅、西厨、中厨等;
3.挑空区域现场浇筑,解决了层高过高的问题,二层多了一个儿童房;
改造前一层客厅



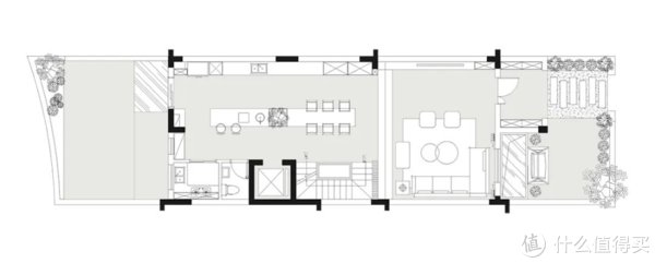
对于挑空区域,采用现浇一层楼板的方式来强化空间的结构,二层变为儿童房,最大化利用层高的优势挖掘功能性,改造后客厅变成这样
改造后一层客厅

客厅保留了原始窗户的拱形造型,实现功能优化、空间结构优化和采光等问题,设计师强调空间与自然的融合,原木格栅、原木地板,搭配简约而又不失设计感的功能性布艺沙发、风扇,营造出家的随性自在与轻松感。

客厅并非下沉式设计,台阶自然划分客厅、餐区,设计师为了增加楼梯区域的光线,墙面设计成7字形,既空间互通,又以绿植做装饰,空间的自然气息瞬间浓郁起来......

餐厅改造前后对比图
从客厅自然过渡到餐区,餐厅设在楼梯旁,拆除了原本的结构,更换为落地玻璃门窗,瞬间畅通、通透,空间开阔且不凌乱。

楼梯的曲线与空间的简约的设计成为一大特色,可以说,7字墙的结构设计具有透景的效果,简单却不失格调,拱形窗户的复古与光影交错,让生活多几分雅致。
改造后餐厨空间

因为屋主一家日常以轻食、西餐为主,所以,中厨则选择为封闭式设计,且面积较小,重点空间让位给了西厨,餐厅与西厨串联开放式的布局,自然而然空间功能互交,成为家的社交中心。
7米长的餐厅,分为餐桌、岛台,高低差异化的设计既强调了所谓的“生活功能”,也营造了层次,收纳为主的设计以整体厨柜的平衡,满足主人另一个诉求:简单、干净。

通过吸顶轨道灯来进行空间照明,与极简的设计和玻璃廊道结合,这样的空间既可让一家人互动,又可保持应有的整洁。
白色吧台延伸出原木色餐桌,一体式设计与整墙的橱柜+嵌入式蒸、烤箱、冰箱等,能更好地满足用食、社交、学习,玩乐、品茗等需求,生活&互动,通通OK。
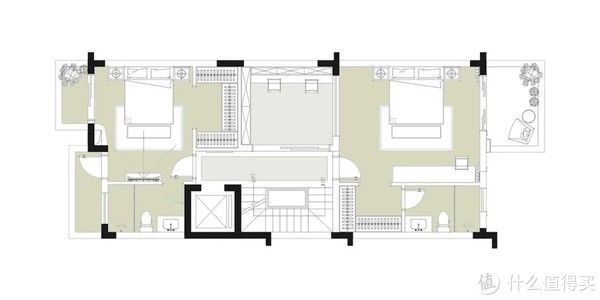
.03二楼改造后,多了一间空中儿童房
原始结构

平面布置
改造重点:
1.巧改挑空区域,现浇施工后重新建构二楼,儿童房对应一楼的客厅;
2.重新划分区域,并合理利用露台面积;
推荐阅读
- 购房置业|2014年,农村夫妇花280万买到市值500万的房子,没想到是“凶宅”
- 按揭|房贷断供本人:月收入低于1万,千万不要按揭月供超过2500以上的房子
- 和尚品|2021家居定制报告:9家企业总市值缩水近500亿元
- 上海市|把60平米的上海房子卖了500万,去东北花5万买了一套房,太完美了
- 卫生间|甘肃网友卖别墅从500万一路直降,年轻买家只给200万,最终成交
- 楼市|珍惜1500万的刚需
- 荔湾|甘肃网友卖别墅从500万一路直降,年轻买家只给200万,最终成交
- 晋安|5000万光棍,3亿育龄妇女,未来10年,中国楼市恐怕是另一番景象
- 近500平的梦幻别墅,用艺术打造心灵的庇护所|杜特设计 | 户外花园
- 楼市|要是有机会,谁不想抓住?房价5000+才是普通人的“真爱”
