
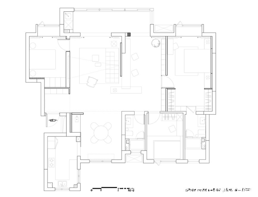
「前言」
在低调且精巧的美学空间,风格并不是强行赋予的,而是一种与空间的对话,将每一件物件都融入空间,打造美好回忆和宝贵的时光空间。
本案屋主的诉求是自由,希望拥有更开阔的居住空间。对于一对新婚夫妇来说,渴望获得开阔且舒适的公共空间及安谧温柔的卧房空间。
设计师选择将客厅与书房相结合营造开放式办公及会客空间;同时主卧房也通过收纳空间调整让主卧室使用面积更加舒适。


玄关

玄关作为屋内和屋外的缓冲区域,这里承载着一切从屋外进来首要处理事情的功能。
地面用地砖与其它区域分隔开,便于门厅部位的卫生清理;同时在雨天时雨伞上的水,鞋子上的污泥都能够更加方便的清理,相比地板会更加耐用;顶面光源经过设计更加明亮通透。
客厅

奶白色沙发选用混纺面料,质地柔软又不易变形能够提供更好地支撑作用。体量偏大的沙发放置在开放式空间中丝毫不觉得拥挤。

经过较为狭小的门厅进入客厅之后会有一种豁然开朗的感觉;
天然优势的大落地窗,给室内提供了充足的采光,经过功能布局的改动,将两个空间打开让视野更加开阔。
客厅整体白色涂料在充足的光线环境下显得纯净安逸。

顶面采用无主灯设计,给全无提供充足照明的同时,让顶面与整体空间更加协调统一。

电视背景异形处理,将电视嵌入进墙体,把所有杂乱无章的线路全部隐藏起来;次卧式的隐形门跟墙体很好的融为一体。
书房
Study

一间完全开放式的书房,利用半高隔墙的设计在空间形式上将其与客厅分开,室外自然景观一览无余。

收纳系统作为居家必不可缺的组成部分,将卫生间及卧房的门与收纳柜整体结合,减法的设计更加符合现代人的审美需求。精简工整的悬挑书桌轻薄又具有刚性更加适应使用者的习惯。

过道的收纳柜处在整个空间的中心位置,隔而不断,平面上空间看似分离,空间上却又整合一体,且满足了客厅大部分的收纳功能。

橡木格栅地柜具有强大的收纳功能,虚实结合的整体收纳系统,丰富了空间层次与调性。
餐厅
Dining room

餐厅设计赋予了更多可能性,除去必要的功能性家具给未来留有更多的发挥空间,随意放置的装饰画成了空间的点睛之处。

推荐阅读
- 闽侯|从1.5万/㎡降到9字头,价格下跌逾6千/㎡?闽侯某楼盘开启促销模式!
- 简约|89㎡新中式,简约清雅演绎质感生活
- 重庆|回乡下自建632㎡的别墅,花费不超百万元,省下的钱留着养老不香?
- 新会|三天成交186套,新会均价强势破1.2万/㎡?还有3大新盘出击!
- 佛山讯|69859元/㎡!保利天悦一套188㎡三房以1316万卖出!成交周期74天
- 呼吸感|90平北欧风二居室,餐厅看向客厅明亮而惬意,黑色线条灯具呼应
- 光尘樾|限价上涨700-2000元/㎡!实探良渚新城5宗「定品质」地块
- 装修|44㎡长条形复古风小户型装修,时尚大气,很多人见了都羡慕!
- 隔断门|115㎡现代北欧风格新房装修,阳台客厅打通太舒服!
- 北欧风|110平北欧风二居室,将阳台书房设置成半开放式增加客厅采光
