如今,时代在不断的进步,对于装修风格的来说,大家有了更高的要求,同时也有了更多的选择,对于装修,你知道装修多少钱一平么。今天就跟小编来看看,71平米的二居室是怎样玩转简约风格的吧。
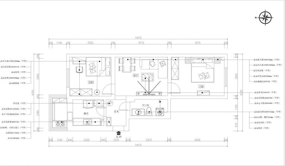
房间的整体为简欧风格。入户左侧有块区域放入鞋柜,使业主方便进入放东西。厨房区域利用空间最大合理化,所以把门洞的位置,放了一张岛台,便于炒菜时方便拿放。

客厅活动空间较大,整体布局较简单,用石膏线做简约的电视背景墙。

【 业主|71平简约风二居室,客餐厅一体小型餐桌椅很合适】
次卧室加入了一张书桌,便于孩子学习与放书籍。

主卧室给业主搭配粉色墙漆,业主喜欢粉色所以在简欧的风格上增加了一些粉色。

卫生间长方形的格局,使用面积增大。

餐厅区域因空间小,所以放了小型的餐桌椅。

户型:两室一厅一厨一卫各个房间户型方正,宽敞不拥挤,各个房间采光通风均优良。
推荐阅读
- 二居室|68平复古二居室,装修完之后邻居纷纷来效仿
- 华润置地|沈阳新房成交面积环比下降98% 和平区均价排名首位
- 北欧|92平灰色北欧风二居室,无一不尽显业主的品味
- 国产品牌|装修一百平的房子预算十万左右能行吗?
- 北欧风|110平北欧风二居室,将阳台书房设置成半开放式增加客厅采光
- 四居室|146平现代风四居室,在灰白黑中那个红色的玩偶椅子格外抢眼
- 北欧风|76平米紧凑小三房,舒适温馨北欧风100个赞
- 上城|住170平以上的大平层大户型什么感觉?
- 现代风|174平现代风别墅设计,自然的元素在室内空间无限蔓延
- 二居室|91平现代风二居室,删减掉过多的装饰,简约与实用并重
