【 小户型|75平米北欧风小户型,清新加温馨小家就是这样啦】今天分享的是一套建筑面积75平米的北欧风小户型二居室案例,房子整体以简洁的北欧风作为基调,加入了一些鲜艳色彩的软装作为点缀,整个空间展现出一种轻松舒适的感觉,整体的搭配也是非常的优雅和清新。下面就一起来看看吧!

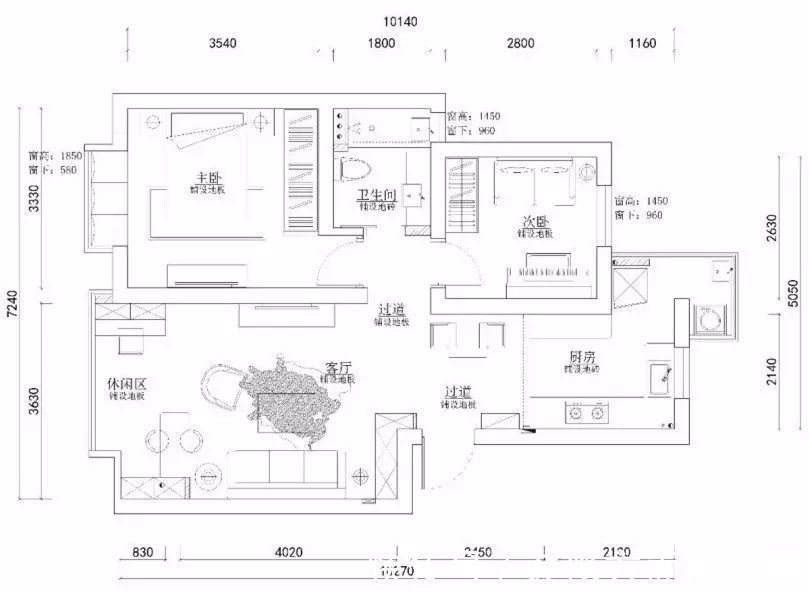
平面布置图

入户的玄关对着餐厅,在入户门靠近厨房的一侧摆放了斗柜,另一侧和客厅相连,做上了嵌入式的柜子,柜子一直延伸到客厅处,储物空间更为充足。

简洁的餐桌椅靠着墙面摆放,在墙上还挂了一幅大面积的装饰画作为点缀,顶部的吊顶用于隐藏空调和电线管路。

客厅整体的搭配是非常喜欢的,灰色、绿色和白色的结合,在客厅外还有一个书房休闲区,做上吧台和柜子之后非常实用。

客厅的顶部只在四周做了吊顶,中间选择了用多个筒灯来代替主灯的设计,让客厅看起来更加简洁一些。地面铺贴的木地板给客厅带来了温馨质感。

厨房位于入户门的另一侧,由于厨房还通往了生活阳台,所以选择了L形加上一字形的橱柜布局方案,整体以白色为主,加入水泥质感的地面,看起来简单又轻松。

主卧室的配色也是比较素雅的,不能砸的飘窗被设计成了一个休闲区,搭配舒适的坐垫和窗帘,看起来非常惬意、舒服。

卧室内的衣柜选择了做成嵌入式的,然后用帘子来代替门,这样拿取衣服也会更方便一些,加上帘子之后也不用太担心落灰的问题。

次卧被屋主作为书房来使用,目前是做上了一个木制的书柜和摆放了一张沙发床,书柜加上了部分的玻璃柜门,更为实用一些。

卫生间内做了干湿分离的设计,马桶和洗手台对着摆放,淋浴房靠着窗户。大面积的镜柜可以让卫生间看起来更加宽敞一些。
推荐阅读
- 中岛台|78平小复式,客厅挑空设计,楼梯不装扶手,一看业主就很有品位!
- 北欧风|北欧风的婚房装修效果图,92㎡够温暖的,小夫妻生活好幸福
- 深圳市|中小城市还在默认的限跌状态
- 小户型|60㎡现代小二房,小户型想住得舒适,每一处都要合理设计
- 小阳春|限购限贷松绑第一城,政策实施满月,楼市火了吗?
- 淋浴房|卫生间再小,该用的东西也不会少!收纳如何做好?
- 飘窗|谁说小户型就要将就?快来看看这套70平的设计,满屋子都是亮点
- 客厅|10×8米小宅基地这样设计?也能拥有6.5米超大客厅
- 建筑|兄弟俩回乡建房,是建单户型好还是双拼房好?
- 原木|79平北欧风二居室,小清新、文艺范十足
