充满空灵感的室内装修总是带着简约的风情,在室内的大面积格局里呈现出非同凡响的宽宏和视觉效果。就算是小户型也能够展现出大户型的装修态度,在空间里灵活地使用每一个格局的活动范围,使其增强到最大化,在室内享有宽敞的生活空间。


案例:55平欧式简约时尚空间居住成员:大人x2房屋面积:55㎡房屋类型:小户型空间格局:厨房、卫生间、卧室X2、客厅、阳台主要建材:瓷砖、系统柜、木皮、油漆、铁件、玻璃、大理石、石材、喷漆、镀钛铁件

室内的活动空间被分割成几个部分阳台的区域更多了,一些绿植的装点,这样整个画室都搬到阳台上,充分的感受阳光的洗礼,而客厅的位置大量的留白更能够彰显出空间本身的空旷。这样精致的处理方式更能够让室内的环境变得整洁一些。
【 装饰|55㎡现代简约风装出大户型的“态度”,坐拥美爆厨房、独立浴缸】
简约风格的装饰特色就是在于绿植和一些细小的装饰品搭配呈现在空间的状态,是那种让人觉得精致而又不过于花哨的。选择我路比较繁琐但线条感更为流畅的沙发,搭配这样的空间是最为合理的。

在一些细节的中式上,老旧的木质家具能够跟室内的空间形成一种呼应,大盆的绿色植物并不需要职业多么繁茂,仙人掌这种科目的装饰品就能够呈现给空间最好的态度。在一些装饰绘画和一些干花的搭配上,应该选择满天星或者是勿忘我之类的。

墙壁上的一些空白区域可以选择小型的绘画作为装点,更能够凸显出家具的品味,也更预示着主人非常注重细节。

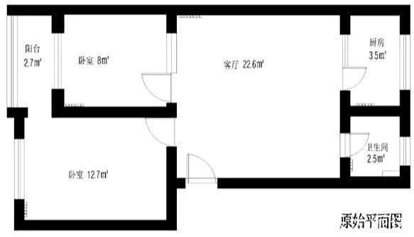
室内的格局主张南北通透的光线元素,所以在中间不需要加深太多的格挡,反而是应该更注重室内空间的合理运用,在边角处和凹槽处增添一些功能区域。

像餐厅的部分放在一个空当的隔断区域,调整整体的室内格局,让餐厅看起来更加宽敞,每天家人休息放假的时候上班累了一天,回到家里聚餐的时候就是一家人最欢乐的时光。

这个区域的使用方式一定要着重每个人的感受,宽大的餐桌搭配舒适的餐桌椅,黑白双色的经典搭配是恒久不变的时尚元素,加上一些墙壁装饰和柔软的布艺,作为室内的主要装饰特点,更能够呈现温馨时尚的家居氛围。

厨房的区域木色的装饰搭配灰色的墙壁贴死整体的空间,呈现出一种商务之中透露着温馨的质感,隔断的地方放上一个水池用来沏茶或事当做茶水台都非常的方便。

冰箱嵌入橱柜的设计风格非常符合当下需求的空间,在空隙的地方可以增加几组墙壁,嵌入式的操作台。内部存放一些生活用品或者是收纳一些大型的物件都是非常不错的选择。
推荐阅读
- 整洁|小夫妻的40㎡小公寓:不敢浪费半平米,日子过得简单温馨又幸福!
- 简约风|60㎡简约风小户型,客厅藏张床打开秒变3居室,太机智了!
- 装饰画|75平用黑板墙+收纳书架是代替餐厅背景墙,浪漫又舒适
- |香港一家三口的30㎡蜗居:两室一厅虽狭窄逼仄,却一住就是7年
- 主卧室|独居女孩的精致生活,住176㎡平层,把日子过成众人羡慕的样子
- |售价7万/㎡+,这个盘一线望江最具性价比?
- |300㎡墨西哥度假住宅:锯齿形退让,打造粗犷的可持续空间
- |绿城新兴玉园140平米现代简约-带你领略真正现代感
- 碧桂园|110㎡起,大校场润淮府马上加入战团
- 常州|香港30岁的独居青年,买下仅18㎡双阳台“纳米楼”,网友:太小了
