
而实木楼梯踏步也做成抽屉和储物柜,让温馨舒适的卧室收纳力满满。

卫生间
卫生间在厨房旁的黑色边框玻璃门内,整体灰色墙面与黑色地砖搭配,营造出时尚和高级感。

淋浴间安装了不锈钢挂杆,放上浴帘就实现干湿分离设计,让整洁明亮的卫浴空间让实用舒适。

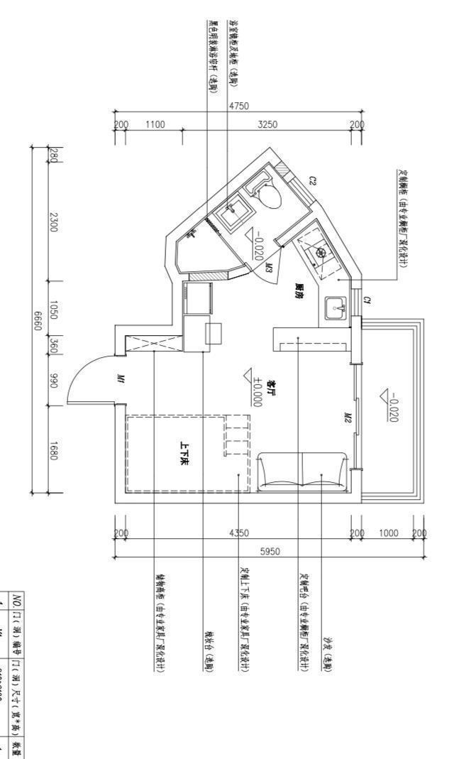
平面布置图
看过女孩这个奇葩小公寓的装修改造设计,不知你喜欢吗?
推荐阅读
- 南宁|2723元/㎡起!郴州尚品福城房产司法拍卖
- 客厅|220㎡原木风设计,4室2厅3卫,一进门,就被客厅迷住了!
- 香港|他住进香港“怪兽大厦”,在10㎡劏房里生活2年,网友:太逼仄了
- |她85㎡新家,直接颠覆了我对“断舍离”的认知,全屋收纳太强大了
- 保利|金山保利云湖壹号已取证,76-151㎡上车盘,均价21074元/㎡
- 实用性|30㎡的单身公寓这样装,实用性不输大户型,一个人住太舒服了!
- 电视背景墙|北漂夫妻的64㎡公寓:满屋的高级灰,装修简单,却是理想中的家
- 集成灶|榨干每一寸,我的4㎡小厨房也要应有尽有!
- 两居室|82㎡两居室北欧风,清新舒适的环境,简直赶上了样板间效果
- 布置|900㎡现代轻奢,蓝绿色墙面+端庄软装,诗意档次!豪宅有人看吗?
