对于现代人来说,家并不只是一个居住之地。它更像是一个灵魂的栖息之地,随时随地都能安放你躁动的身体和心灵。本案设计是一处220㎡的双层空间设计,4室2厅3卫,打造三代同堂的宜居之美,一进门,就被客厅迷住了,太惬意了。

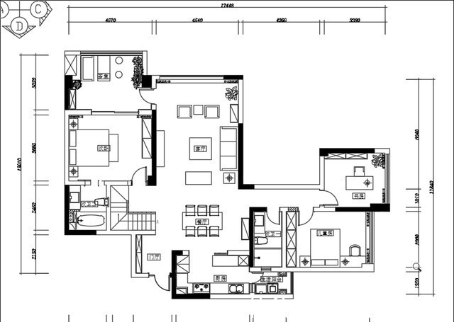
▼一层平面布局设计从入户时,便是一面定制式鞋柜,满足一家人的鞋物收纳。而餐厅采用了“回字形”设计,增加了空间的流动性。次卧被设计成为了父母房,并带独卫,方便老人晚上如厕。次卧的阳台,结合了茶室和晾晒功能。而儿童房与书房进行了空间上的连通,方便家里的大人,辅导小孩做作业和上网课。

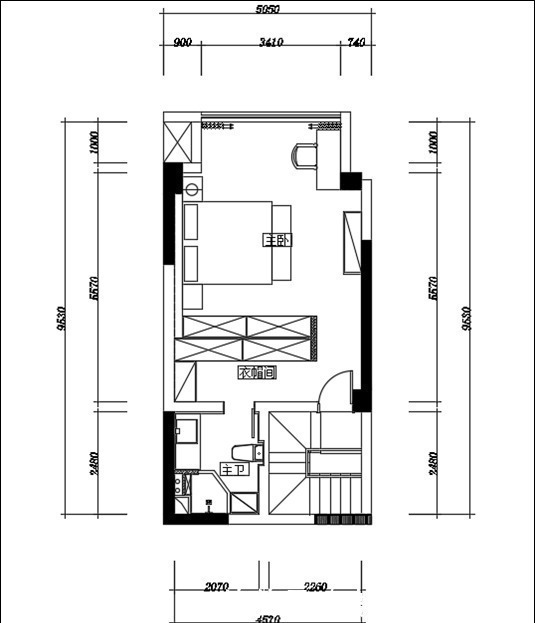
▼二层平面布局设计二层空间,则是一处完整的主卧空间设计。设计师利用了定制式的衣柜,分隔出了衣帽间和卧室,整个主卧显得空间开敞,居住感也十分宜人。

▼客厅设计,返璞归真从入户开始,便被客厅迷住了。设计师以“返璞归真”为设计理念,让家回归本真。信步客厅之中,处处呈现的是质朴和轻简之美。原木色的家具,以自然的质感,予人以舒惬的共鸣。从阳台上倾斜而下的阳光,肆无忌惮地洒落在室内,或许这样的客厅才是我们追求的美好。


▼晨起时,风吹客厅,白纱舞动,白墙与沙发遥相呼应,整个客厅看似空白,却予人无尽的诗意和素雅。

▼一幅挂画,一组案几,一张地毯,一盏天灯,简雅的空间氛围,便被营造而出。

▼餐厅设计,人间烟火餐厅之中,似乎更具一派人间烟火味。每一次出门,都算作一场“流浪”,而每一次回家,都算拥抱自我。餐厅空间,似乎更能拥抱你流浪的心情,予你身心上的温暖。


▼餐厅之中,以几盏灯饰,拉开微醺的氛围。楼道之中的红砖墙纸,一改白墙的素雅,显得尤为出彩,在这样优雅而温暖的氛围之中,一家人享受一日三餐,别提多温暖了。

▼楼梯设计,温和柔软楼梯空间的设计,不同于北欧风和现代风,设计师以更为温和的色调,利用了白墙与原木的珠联璧合,打造了柔软的氛围。

▼主卧设计,静谧清新对于现代人来说,主卧空间不需要华丽,舒适才是主题。所以设计师在主卧空间打造之时,融入了更多的静谧清新之感,并无过多元素的渲染,质疑简约的软装,刻画更丰富的空间层次感。
推荐阅读
- 香港|他住进香港“怪兽大厦”,在10㎡劏房里生活2年,网友:太逼仄了
- |她85㎡新家,直接颠覆了我对“断舍离”的认知,全屋收纳太强大了
- 保利|金山保利云湖壹号已取证,76-151㎡上车盘,均价21074元/㎡
- 实用性|30㎡的单身公寓这样装,实用性不输大户型,一个人住太舒服了!
- 电视背景墙|北漂夫妻的64㎡公寓:满屋的高级灰,装修简单,却是理想中的家
- 集成灶|榨干每一寸,我的4㎡小厨房也要应有尽有!
- 两居室|82㎡两居室北欧风,清新舒适的环境,简直赶上了样板间效果
- 三居室|新房入住一年,忍不住晒晒,入户鞋柜最实用了,客厅大气漂亮!
- 布置|900㎡现代轻奢,蓝绿色墙面+端庄软装,诗意档次!豪宅有人看吗?
- 小户型|他家仅41㎡,装修效果却清爽敞亮很实用,家有小户型的可以参考下
