别墅|两款占地90平左右二层别墅,造价20来万,农村人人都盖得起
大家都知道,现在国家对农村土地的管控越来越严格。新申请的宅基地往往面积都不大,基本都在100平左右,日后小户型或将成为农村主流。
其实只要设计的好,小面积也能建出大气别墅。今天就给大家推荐两款二层别墅,看看是不是你喜欢的!
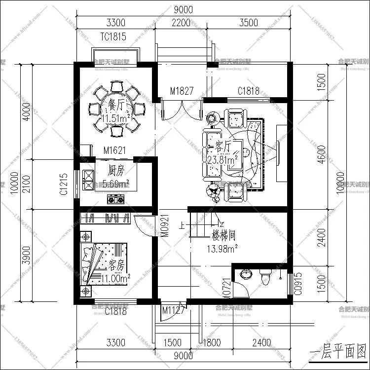
图纸编号:TC-056

开间:9米进深:10米
占地面积:90平方米
建筑面积:180平方米
建筑层数:2层
建筑结构:砖混结构
主体造价:27万元(仅供参考)


设计说明这款别墅的外观为简欧设计,一个“简”字贯穿整个建筑。房屋外立面真石漆着色,大气自然就是美。这款别墅更加符合乡村房屋风格,户型简单,易于施工。


图纸编号:TC-080

开间:10.2米进深:8.5米
占地面积:86平方米
建筑面积:173.4平方米
建筑层数:2层
建筑结构:砖混结构
主体造价:25万元


设计说明这款别墅为中式风格,造型比较方正,效果图一出,大家一定被其设计风格惊艳到。多窗户设计,不仅为整体外观加分,也保证了室内采光和居住的舒适度,在众多乡村欧式中让人眼前一亮。

【 别墅|两款占地90平左右二层别墅,造价20来万,农村人人都盖得起】
推荐阅读
- 现代风格|现代风格占地面积相对较小,但布局合理,空间利用率高
- 山水|疫情后的置业观:城市山水别墅备受青睐
- 别墅|20万盖不了豪宅,那就选择好看的一层户型,也相当体面
- 别墅|在县城上班,离老家20多公里,每天回村里住别墅感觉挺好
- 预算|10套高颜值二层别墅,附带详细的平面方案,你更喜欢哪一套?
- 占地面积|卫生间的门到底要不要打开?不是迷信,非常重要,了解不吃亏
- 小别墅|精致大气的欧式小别墅,布局合理,建在村里就是亮点。
- 书房|这款现代自建别墅,外观简洁大方,整体功能分区合理。
- 别墅|别墅花园设计:花园单调无味?偷偷加入这些小品,美出另一个境界
- 别墅|买不起别墅,也必须买一个顶层带露台的房子,建个空中花园太美啦
