遇到过很多小户型,为了显的空间大选择现代简约风。其实呀,看惯了千篇一律寡淡简约风,轻奢风也是一种不错的选择。今天小编推荐的案例,只有66平米,轻奢风,完工后看起来像100多平的房子,豪宅也被秒成渣!

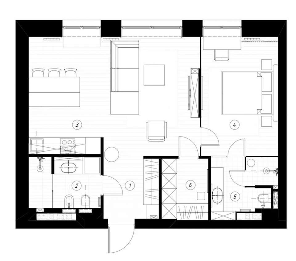
01、玄关

只有5㎡的玄关,右侧做了顶天立地的鞋柜,换鞋凳上方可以挂衣服包包,下面放拖鞋。
右边是一面落地镜,出门的一系列准备都可以在玄关完成。


门口的软凳子,其实承接一部分换鞋登的功能,既可以坐在这里换鞋,也可以在门口处换鞋。
02、客餐厅


整个客厅,餐厅,厨房全部打通,整个空间宽敞通透明亮。两个大窗户,这样的自然采光、通风,可以说是最棒的装修了。



墨绿色电视背景墙和整个空间呼应,同时还兼有收纳功能。

厨房的餐桌,一面是厨房的操作台,一面是夫妻2人吃饭的地方。


利用一个窗户,还做了一个飘窗,完美的阅读角。
03、主卧


【 玄关|别再盯着北欧风啦,看看人家66㎡小户型轻奢风,豪宅也被秒成渣】床头不想挂画,若是大白墙又显得太单调,此时除了用彩色墙,拼接彩色墙,或者像图中的护墙板也是不错的选择。

主卧的一面墙,有2扇大玻璃,白天时采光极好,晚上睡觉可以拉起帘子遮挡隐私。

底部镂空的床头柜,显得干净利落,整个空间不会太拥挤,压抑。

04、主卫

主卫卫生间用玻璃隔断隔开,采光问题顺利解决,如果不习惯用玻璃,也可也用磨砂玻璃等材质。

推荐阅读
- 榻榻米|76㎡小三居,经典黑白灰+飘窗榻榻米,从玄关美到卧室
- 玄关处|21㎡超小户型,被同事嘲笑像“巴掌大”!完工后却吓得合不拢嘴
- 玄关|家里进门一地鞋,又丑又乱?玄关试试这么装,简单又实用!
- 断桥铝|封阳台别再犯傻了,这些猫腻都不懂,难怪比别人多花几千块!
- 办公室|别再做“人体净化器”了
- 玄关|虽是二手房,经过他的翻新改造后,瞬间圈粉无数
- 别墅|租农舍,住别墅日入百万,这对装穷的夫妻被官媒点评:别再演戏了。
- 西安|西安楼市预警!买房别再摇摆,坚持摇号!4万亿大水灌溉说明一切
- 装修|第二次装修,在玄关做这些减少家务的设计,夫妻吵架次数少一半
- 聪明人|客厅别再傻傻装柜子了,聪明人流行这样做收纳,美观实用还不占地
