改造|190 ㎡底跃复式改造,现代风五居室简直是绝美( 二 )

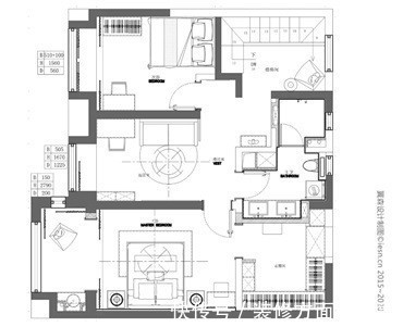
从功用角度来说,原始的次卧被改为衣帽间,并拆除部分墙体使其与主卧连通,解决了储物问题的同时方便活动。

入户设计我们强调整体的便利性、舒适性,进门右手边定制了高2.5m宽60cm的储物柜,内设挂衣区、小格储物区,方便屋主进门放置钥匙、文件包、外套等。

1.拆除原厨房处墙体,巧用推拉玻璃门,让空间更通透2.将原楼梯间移位到客卧处,使得动线合理,空间整体采光更好3.拆除原走廊部分墙体,用木格栅做分隔处理,极具设计感4.楼梯间墙体拆除,改造为西厨区部分岛台

1.主卧、卫生间、走廊部分墙体拆除,使得空间利用最大化2.在原楼上位置规划起居室,方便居住者在二楼活动休闲3.考虑到公区面积小,无法满足一家人洗漱需求,将墙体后移,扩大空间面积4.二楼主卧无卫生间,便利用原下水在阳台处规划洗漱台,方便屋主洗漱5.考虑到原次卧狭小,便将主次卧打通定制超大衣帽间,满足储物需求
推荐阅读
- 书房|虽只75㎡三口之家,却拥有两间卧室+一个书房,我看出了豪宅样子
- 走廊|被她家的76㎡新房惊艳了,电视墙改造成收纳柜,走廊砌吧台藏冰箱
- 改造|农村370㎡破旧祖屋改造豪华大别墅,村民纷纷踏破门槛来参观
- 阳台|仅8㎡的日本“麻雀房”,客厅厨房卧室卫生间一应俱全,真够牛的
- 司法拍卖|发现苏州60岁退休阿姨的家:57㎡,那叫一个漂亮,拍照给大家看看
- 黑白配|100㎡现代简约,自然舒适木质感,结合时尚的黑白配,高级端庄
- 空间|115㎡现代轻奢,配色稳重优雅,材质华丽高级,风格很独特
- 木屋|1200㎡乡野别墅,非一般的豪华,打造“野奢”美学
- 教师|退休教师69㎡的家意外走红:装修得比年轻人还时髦,每处都超高级
- 深绿色|80㎡现代简约小两居,复古绿+胡桃木格调满满,独立衣帽间超实用
