【 齐家青青|138平米现代港式风三居室装修,好想拥有这么美的家啊~】今天齐家青青要介绍的这套新房是采用较多的木质色调,比如客厅电视墙,走廊,主卧,还有厨房等,营造出一种休闲、惬意的氛围,而这样的居家环境是常在快节奏都市生活的人的一个港湾,也许是我们大多数人的港湾,下面跟齐家青青一起来欣赏下~

玄关

客厅

客厅

餐厅

主卧

书房

厨房

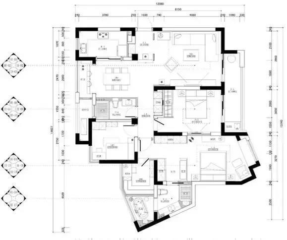
平面设计图
(本文由齐家青青整理编辑,图片来源网络,如有侵权告知删!)
推荐阅读
- 齐家|96平米原木风让人如沐春风,清爽温馨,再过20年也不会过时!
- 齐家|你以为的那些“小钱”,其实是装修隐形增项,能让你多花好几万块
- 齐家云云|客厅隔断只能砌墙?教你把洗漱台延长,既能当隔断还能干湿分离
- 齐家奶茶|越来越多人不买床,自己动手用红砖砌床,效果完胜成品床
- 齐家|还在抱怨你家小户型餐厅不够坐?好多人都装餐厅卡座了,美观实用
- 齐家|下水管能这样装?头一次见这么实用好看的!
- 齐家|被嫌弃的长板凳,现在又成为了小户型新宠,你喜欢吗?
- 齐家云云|有创意的转角楼梯装修设计,能提升装修档次!复式空间学起来
- 齐家具|268㎡欧式别墅完工实景,上齐家具美得跟样板间一样,晒晒!
- 齐家安安|客厅瓷砖怎么选?想要既体面又温馨?这些要点要知道!
