
户型6:诗情画意的中式之美,砖混结构,毛坯造价18万起

占地尺寸:13.24m×24.24m
占地面积:176㎡
建筑面积:176㎡
建筑高度:6.2m
建筑情况:设5室 2厅 4卫 1厨 1茶室

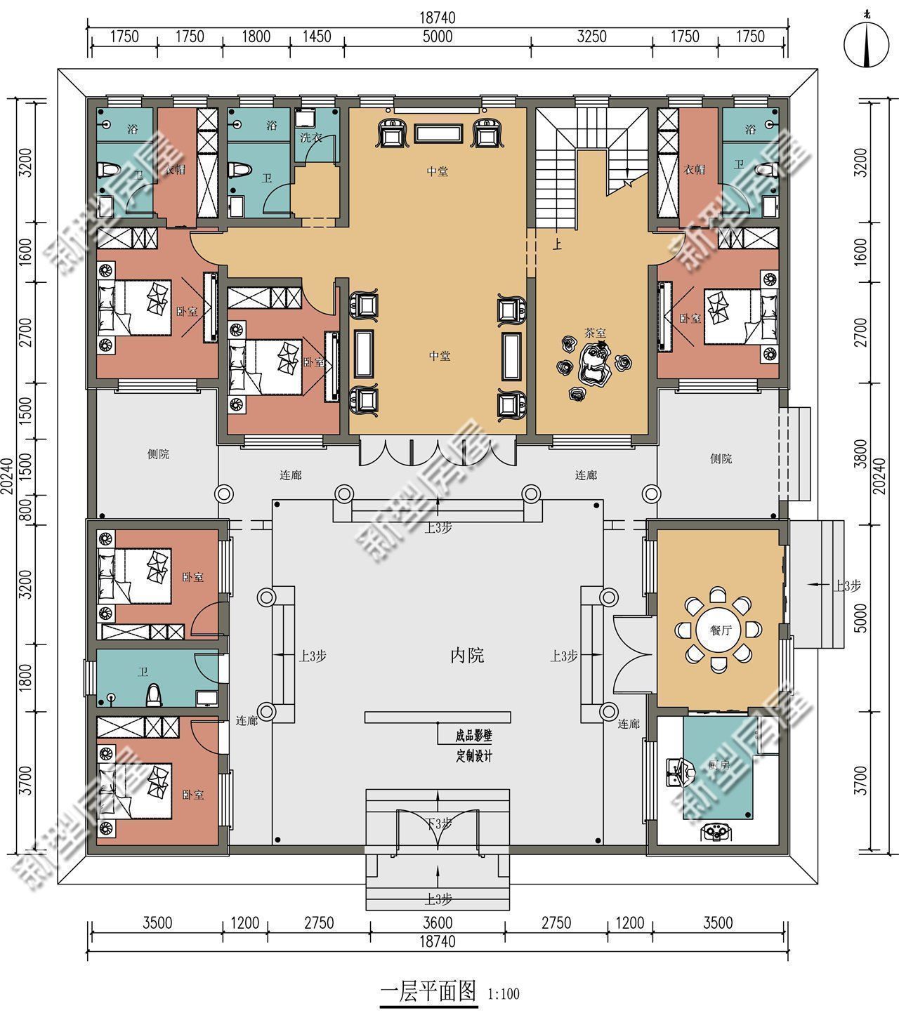
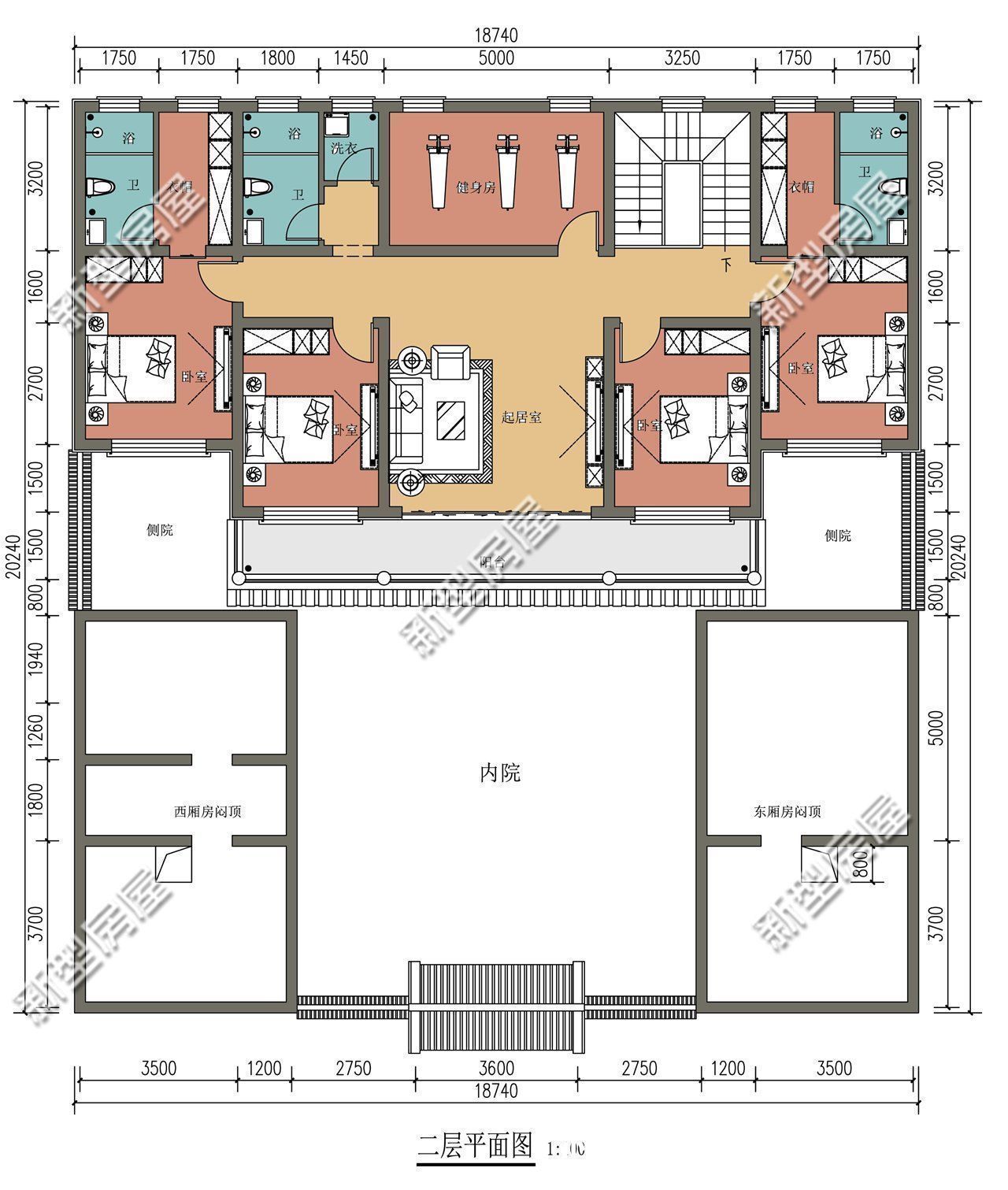
户型7:苏派三合院,砖混结构,毛坯造价45万起

占地尺寸:18.74m×20.24m
占地面积:257㎡
建筑面积:428㎡
建筑高度:9.6m
建筑情况:9卧 1厨 1餐 1中堂 1茶室 1健身房 7卫 1洗衣房 4衣帽间 1大阳台


户型8:素雅中式合院,砖混结构,毛坯造价25万起

占地尺寸:13×15m
占地面积:195㎡
建筑面积:219㎡
建筑高度:9.3m
建筑情况:4室 2厅 1厨 1餐厅 2卫 1茶室


【 占地|8套中式别墅合集:我理想的农村养老住宅,还得是中式】关注新型房屋,还有更多中式别墅图纸分享。
推荐阅读
- 仿古|从砖雕大门的挂件装饰了解中国中式仿古院子
- 占地面积|买车是迟早的,车库是必要的,不在建房时建,后期再建让你头疼
- 番禺|2月13日广州新房网签208套,番禺以95套四连蝉联!
- 家具|让人怀疑人生的10大鸡肋家电家具!送人都送不出去,嫌占地碍事
- 中式|走进她家,才知大平顶配大白墙有多清爽,一人独居过得轻松又舒适!
- 隐形门靠谱吗?过来人良心推荐:不占地且颜值翻倍|小小屋装修网| 私密性
- 小户型|新年新气象,提升幸福感的小件家具来一套!实用性强、占地空间小!
- 自然资源和规划局|桥西发布新项目方案公示,占地约41亩拟建住宅、共建配套等
- 图纸|国人理想住宅,还得是中式小院!8套精品图纸,送给要建房的你
- 大姐|百里挑2,大姑选欧式自建房,小姑选新中式,谁的好看,喜欢收藏
