别墅|乡住免费图纸 面宽16.8m×进深10.5m 湖北襄阳三层现代风格别墅
【 别墅|乡住免费图纸 面宽16.8m×进深10.5m 湖北襄阳三层现代风格别墅】

项目概况项目位置丨湖北襄阳图纸编号丨000237建筑尺寸丨面宽16.8m,进深10.5m建筑面积丨303.00㎡占地面积丨150.00㎡官方指导价 | 土建60.9万建筑高度丨10.2m建筑风格丨现代结构形式丨砖混结构01.
丨建筑效果图丨

△东侧效果图

△南侧效果图

△鸟瞰图

△露台效果图
02.
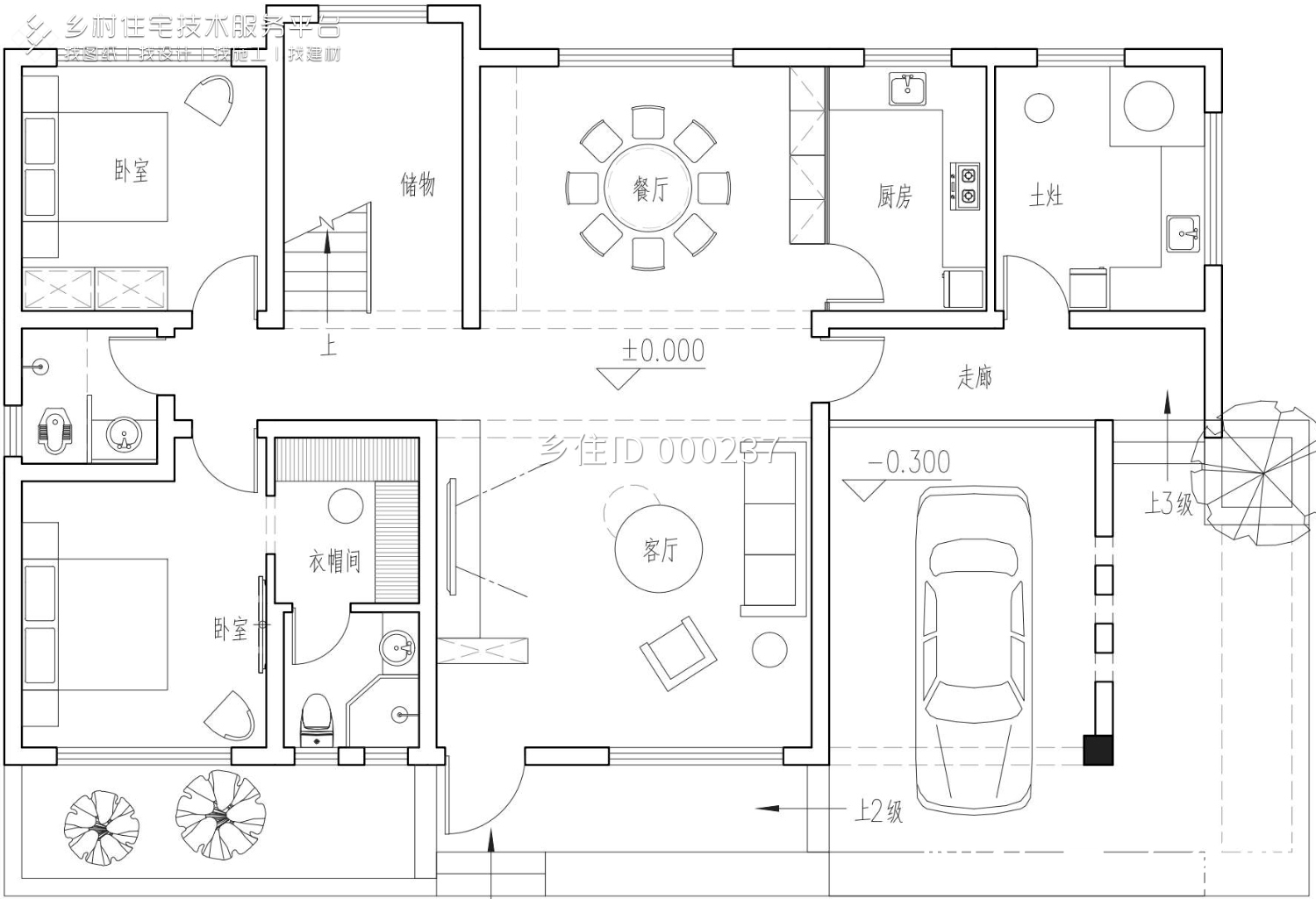
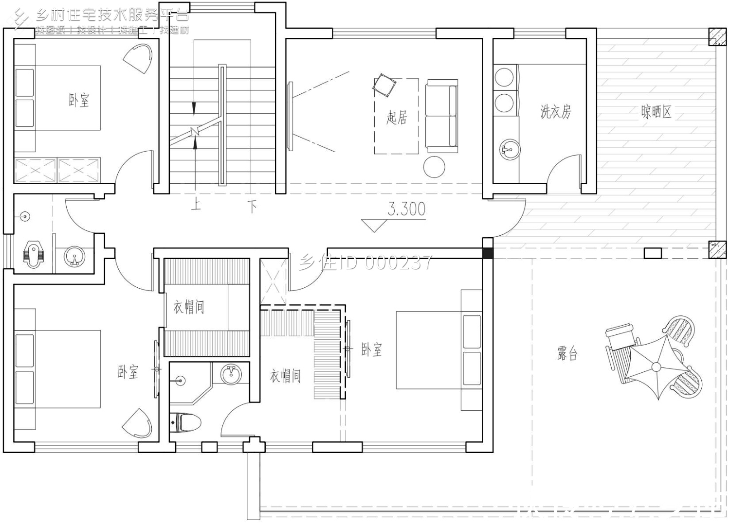
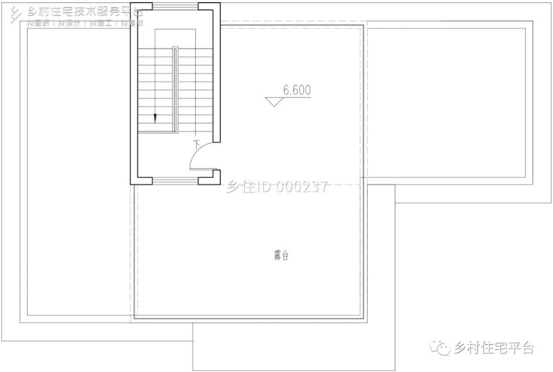
丨平面布局图丨
建筑布局:五室、二厅、四卫、一厨房、一土灶、一储物、一洗衣、三衣帽、二露台、一车库

△一层平面图
△二层平面图
△三层平面图03.
丨项目点评丨
适宜地域南方
适用指数高
适用家庭家中有老人和孩子,喜欢现代风格
别墅户型5室、2厅、4卫
图纸内容建筑、结构、给排水、电气
建筑共有三层,一层主要为接待功能,餐厨、土灶布置在北侧,并通过走廊与次入口相连,无形中扩展了使用空间。卧室单独布置在西南侧,保证了居住空间的私密性,动静分区合理有序。二层主要为居住功能,设置3间卧室和起居室,右侧的洗衣房旁边预留了晾晒区域,保证充足采光的同时,提升了生活空间的品质。休闲露台设置在东侧,可从过厅直达露台,保证了西南侧的居住空间不受干扰。三层中部预留大面积的露台空间,丰富建筑功能的同时,为立面造型带来了更多变化。建筑为现代风格,整体造型简洁大气,配色较为淡雅,充分展现了材质的质感和特点。设计师采用虚实结合的设计手法,丰富了立面的结构与层次。屋顶露台的设计弱化了室内外的分界感,在这里,设计师创造了建筑内外的融合心理和艺术感受,实现了人们渴望自然的心理回归。
推荐阅读
- 新房|过新年来参观未入住的新房,特开心,家人都很期待入住那天的到来
- 不动产登记|第二批共有产权住房17日18日集中签合同
- 市场化|换汤不换药!宁波女子为了居住品质换了套商品房,可素质依旧不行
- 别墅|面宽16.5米,6室1厅带车库露台,农村老家盖套这样的房子好看又实用
- 洗手盆|一个家是否住得舒适,跟房子大小无关,主要看这8个小细节!28
- 住房|上海“保租房”配套细则出台!哪些人可以申请?租金多少?
- 别墅|走进全智贤在韩国的豪宅,居住环境跟公园一样,家里还配有园丁
- 别墅|为什么很多人都选择从别墅搬回到高层?房产中介,说出了“隐情”
- 警告|装修信了1回亲戚,入住即见10大败笔,扔3万来警告:别信这些忽悠
- 装修|装修万万不要这样开槽布线,懊悔当初没察觉,住进去才知麻烦不断
