现在越来越多的中老年人不习惯和孩子住,渴望有一个自己的温馨小窝,是自己喜欢的风格,是自己喜欢的装修,是摆满了自己喜欢的家具。有许多人在将就,有许多人把生活过成了自己喜欢的模样。
本期案例的业主是一位48岁的阿姨,和前夫离婚后,孩子跟着爸爸,她没有选择再婚,自己独居在一套套内面积30平米的小公寓里。
在家庭装修中冷色调看起来稳重又简单,但看起来沉闷,暖色调过多又会显得花里胡哨,所以冷暖搭配看起来恰到好处。
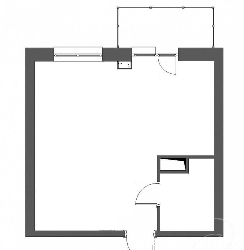
平面图

户型说明:公寓的户型方正,有一个阳台,原房屋内除了卫生间外,空间是完全开放的。
业主需求:①独立的卧室②厨房③客餐厅④卫生间⑤办公区⑥晾晒区和休闲区⑦充足的收纳空间
平面布置图

设计说明:
1.设计师在入户门左侧新建与卫生间齐平的墙面,规划出入户玄关和独立的卧室。
2.卫生间做了干湿分离设计,并在卫生间内隔出了一个摆放洗衣机柜的空间。
3.根据烟道位置,沿墙体设计了L型厨房,厨房做了开放式布局。
4.沙发和餐桌挨着摆放在室内中心位置,厨房、餐厅、客厅做了横厅布局。
5.客厅电视背景墙设计了电视柜和书柜。
6.开放式阳台主要作为衣服晾晒区和日常的休闲区域。
玄关

一进门是暖色调的地板,墙上冷色调的画又衬托出女主人低调沉稳的风格。
玄关一排到顶鞋柜,将收纳发挥到了极致,入户的换鞋凳方便女主人坐着换鞋。
一进门的全身镜与造型的金属条结合,出门前整理整理妆容、穿着,够别致。
卫生间

卫生间虽小却也做了干湿分离,避免渗漏霉变。
实木洗漱台下是个收纳区,收纳篮,洗脸盆都可以放下面。大圆镜子的实木边框配上白色壁灯和湖蓝色背景墙,看起来十分有氛围感。挂墙式置物架,不占地方又方便,平时毛巾浴巾,洗澡时衣物随手搭。
白色防滑垫铺在洗澡间外,安全又可以光脚。马桶的正确选择没有了卫生死角,打扫起来更方便。镜子旁设计了嵌入式柜子,放一些备用牙刷牙杯,洗发水沐浴露,整洁舒心。
卫生间右侧的淋浴房让卫生间实现干湿分离,靠近卫生间门一侧的百叶窗门内,是洗衣机柜,下方嵌入洗衣机,方便使用,上方做收纳,增加收纳空间。
厨房和餐厅

这边是L型厨房,厨房没有单独隔开,装上了一台大吸力吸油烟机,家里也没有多少油烟的问题。墙面是和客厅同色系的花纹瓷砖,溅上油点好清理。利用一平米打造长柜,杂物全入柜,再也不用乱糟糟,舒心。

组合柜嵌入冰箱、烤箱、微波炉,节省空间又应有尽有,物尽其用,这样的设计美观又实用。下面橱柜做到底,不留踢脚线,不藏蟑螂。大橱柜大到能放锅,方便收纳,使开放式厨房干净整洁。
餐桌设计在沙发后面,既不拥挤,看起来又有空间,安排的恰到好处。映入眼帘的我们可以看到设计感十足的几何不规则形状的吊灯。遮光采取的是遮光板与窗帘结合,深蓝与天蓝的搭配看起来毫无违和感。
推荐阅读
- 秘诀|入住5年,卫生间保持干净清爽的秘诀,都在这12个家居细节里
- 小林制药|建议大家:若不差钱,给卫生间添置3种“高级货”,档次感更强!
- 装修|卫生间贴砖,若发觉墙上“留白”,说明装修工靠谱,记得塞包烟!
- 马桶|老公非要全屋贴瓷砖,卫生间不装马桶,完工后很大气,非常喜欢
- 设计|卫生间别再装置物架了,现在都流行这种设计,后悔没早点知道
- 潮湿|卫生间最不能''这样''的门,以过来人的惨痛经验告诉你,超后悔
- 占地|头次见有人在卫生间这样做收纳,省钱实用不占地,后悔我家错过了
- 公共卫生间|买房最不该选双卫生间户型一听过来人的话,我就后悔入住才察觉
- 水电|卫生间水管万万要装这个东西,我家没装入住才知坑,后悔听说晚了
- 卫生间|56㎡小户型经过专业设计,一家三口都有自己独立的生活空间!
